Рейтинг@Mail.ru
Переверните экран
Новостройки Квартиры Ипотека Новостройки Москвы Новостройки Подмосковья Новостройки Новой Москвы Готовые новостройки Новостройки на карте Акции от застройщиков Коммерческие помещения Продавцы и застройщики Панорамы новостроек Видеообзор новостроек Экспертиза новостроек Экология Москвы и Подмосковья Студии 1-комнатные 2-комнатные 3-комнатные Квартиры на карте Ипотечный калькулятор Семейная ипотека Военная ипотека Банки и программы Медиа Новости недвижимости Мнение эксперта Аналитика рынка Покупателю Экспертиза новостроек Эксперты и авторы О проекте Контакты Реклама на сайте Vk Youtube Telegram Дзен Машиноместа Апартаменты #траншевая ипотека #рассрочка ИТ-ипотека Квартиры со скидками до 40% Видео 360° новостроек Субсидированная застройщиком Rutube Поиск дома в Москве Программа реновации в Москве Новостройки премиум-класса Новостройки бизнес-класса Рассрочка Траншевая ипотека Дома и коттеджи Коттеджные поселки в Новой Москве Готовые коттеджные поселки Строящиеся коттеджные поселки Коттеджные поселки в лесу Коттеджные поселки у водоема Коттеджные поселки в ипотеку Бизнес-центры Коттеджи Ипотека со ставкой 0,1%
1-комн. квартира, 30.80 м2, 12 этаж
Срок сдачи 2 квартал 2029 года
10 207 402 
331 409 2
обновлено 30 апреля

Описание 1-комн. квартиры

Застройщик
СЗ ИНВЕСТ ХИМКИ
Срок ГК
2 квартал 2029 года
Стадия строительства
котлован/фундамент
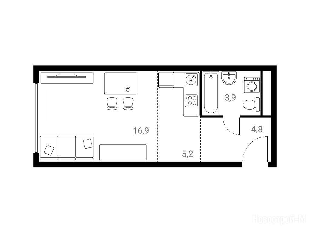
Общая площадь
30.80 м2
Жилая площадь
16.90 м2
Площадь кухни
22.10 м2
Этаж
12 / 25

Расположение 1-комн. квартиры

Метро
Станция МЦД
Химки
12 мин.
Дом
1
Адрес
Куркинское шоссе, корп. 1, секция 1

Особенности

Продается однокомнатная квартира в новостройке ЖК «Лесная Коллекция» по адресу Московская область, Химки городской округ, Химки, Куркинское шоссе, корп. 1. Общая площадь квартиры - 30.8 кв. м. Тип проекта, по которому построен дом — Монолитно-кирпичный, компания-застройщик — ООО «ГК «Град», СЗ ИНВЕСТ ХИМКИ. Стоимость квартиры — 10 207 402 руб. Способы оплаты можно уточнить у продавца. Срок сдачи — 2 квартал 2029. Более подробная информация по телефону.
Инфоцентр новостроек
Инфоцентр новостроек
Время работы 9:00 — 21:00
Выбирайте квартиру в ЖК «Лесная Коллекция» по ценам от застройщика

Похожие квартиры в ЖК «Лесная Коллекция»

22 этаж
из 25 2 квартал 2029
Московская область, Химки городской округ
Планерная
16 мин.
1
Корпус
нет данных
Отделка
2.70 м
Потолки
ЖК «Лесная Коллекция»
11 722 629
1-комн. квартира 30,10 м2 11 389 310
Этаж 12/25
МО, ЖК «Лесная Коллекция»
Планерная
16 мин.
Строится
1-комн. квартира 30,30 м2 11 535 969
Этаж 7/25
МО, ЖК «Лесная Коллекция»
Планерная
16 мин.
Строится
1-комн. квартира 30,80 м2 11 722 629
Этаж 22/25
МО, ЖК «Лесная Коллекция»
Планерная
16 мин.
Строится
1-комн. квартира 38,00 м2 14 609 138
Этаж 9/25
МО, ЖК «Лесная Коллекция»
Планерная
16 мин.
Строится
Посмотреть 146 квартир в ЖК «Лесная Коллекция»
2-комн. квартира 47,10 м2 14 416 593
Этаж 7/25
МО, ЖК «Лесная Коллекция»
Планерная
16 мин.
Строится
2-комн. квартира 50,40 м2 20 221 053
Этаж 25/25
МО, ЖК «Лесная Коллекция»
Планерная
16 мин.
Строится
2-комн. квартира 52,00 м2 15 526 749
Этаж 7/25
МО, ЖК «Лесная Коллекция»
Планерная
16 мин.
Строится
2-комн. квартира 52,10 м2 15 754 407
Этаж 7/25
МО, ЖК «Лесная Коллекция»
Планерная
16 мин.
Строится
Посмотреть 53 квартиры в ЖК «Лесная Коллекция»
3-комн. квартира 76,10 м2 23 784 469
Этаж 3/25
МО, ЖК «Лесная Коллекция»
Планерная
16 мин.
Строится
3-комн. квартира 77,00 м2 25 023 427
Этаж 4/25
МО, ЖК «Лесная Коллекция»
Планерная
16 мин.
Строится
3-комн. квартира 79,90 м2 25 103 701
Этаж 17/25
МО, ЖК «Лесная Коллекция»
Планерная
16 мин.
Строится
Посмотреть 5 квартир в ЖК «Лесная Коллекция»

Скидки и спецпредложения от застройщиков

ЖК «Лесная Коллекция» на карте

Выгодные предложения на новостройки

Отзывы о ЖК «Лесная Коллекция»

Самый полезный отзыв
ВК
21 октября 2025
Оценка:
Достоинства
Планировки
Способы покупки
Внешний вид фасада
Двор, окружение
Расположение
Хорошее место, удобный выезд на Путилковское шоссе, рядом метро «Планерная», закрытая благоустроенная внутренняя территория, свой детский сад, что тоже огромный плюс
Ответить
Самый новый отзыв
ЮС
10 марта
Оценка:
Достоинства
Экология
Социальная инфраструктура
Планировки
Двор, окружение
Расположение
Недостатки
Готовность
Скорость строительства
Выбирал квартиру для семьи и остановился на ЖК «Лесная коллекция». Привлекло сочетание природы и городской инфраструктуры. Пока это стройка, но видно, что работы ведутся активно. Понимаю, что до сдачи ещё есть время, поэтому рассчитываю сроки с запасом. По стоимости на этапе строительства предложение выглядит разумным. Если всё реализуют так, как обещают, проект будет достойный.
Ответить

Оставить отзыв

Добавьте отзыв, заполнив личные данные, или сначала войдите на сайт, тогда информация будет автоматически взята из личного профиля.
Оценка*