Рейтинг@Mail.ru
Переверните экран
Новостройки Квартиры Ипотека Новостройки Москвы Новостройки Подмосковья Новостройки Новой Москвы Готовые новостройки Новостройки на карте Акции от застройщиков Коммерческие помещения Продавцы и застройщики Панорамы новостроек Видеообзор новостроек Экспертиза новостроек Экология Москвы и Подмосковья Студии 1-комнатные 2-комнатные 3-комнатные Квартиры на карте Ипотечный калькулятор Семейная ипотека Военная ипотека Банки и программы Медиа Новости недвижимости Мнение эксперта Аналитика рынка Покупателю Экспертиза новостроек Эксперты и авторы О проекте Контакты Реклама на сайте Vk Youtube Telegram Дзен Машиноместа Апартаменты #траншевая ипотека #рассрочка IT-ипотека Квартиры со скидками до 40% Видео 360° новостроек Субсидированная застройщиком Rutube Поиск дома в Москве Программа реновации в Москве Новостройки премиум-класса Новостройки бизнес-класса Рассрочка Траншевая ипотека ГАЛС Дома и коттеджи Бизнес-центры Бизнес-центры в Москве Бизнес-центры рядом с метро Строящиеся бизнес-центры Бизнес-центры класса A Бизнес-центры класса B ЛСР
Данное предложение на 13.12.2025 неактуально. Пожалуйста, ознакомьтесь с другими похожими предложениями в ЖК «Императорские Мытищи» .
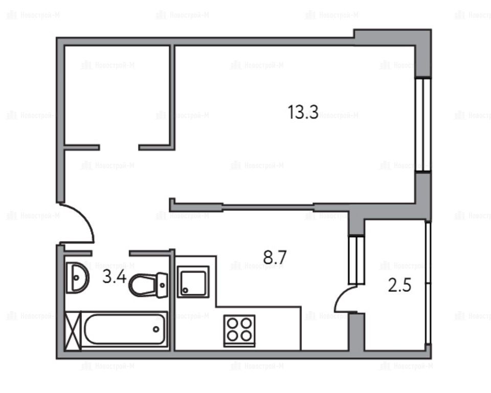
1-комн. квартира, 35.40 м2, 2 этаж
Сдан
7 616 316 
215 150 2
обновлено 26 сентября

Описание 1-комн. квартиры

Застройщик
Срок ГК
Дом сдан
Стадия строительства
Общая площадь
35.40 м2
Жилая площадь
13.30 м2
Площадь кухни
8.70 м2
Этаж
2 / 6
Отделка
чистовая
Стоимость эксплуатации
~ 90 руб./м2

Расположение 1-комн. квартиры

Метро
Ж/Д-станция
Мытищи
16 мин.
Дом
7
Адрес
Тенистый бульвар, 9, секция 1

Особенности

Продается однокомнатная квартира в новостройке ЖК «Императорские Мытищи» по адресу Московская область, Мытищи городской округ, Мытищи, Тенистый бульвар, 9. Общая площадь квартиры - 35.4 кв. м. Тип проекта, по которому построен дом — Монолитно-кирпичный, компания-застройщик — ГК «Гранель». Стоимость квартиры — 7 616 316 руб. Способы оплаты можно уточнить у продавца. Более подробная информация по телефону.
ГК «Гранель»
ГК «Гранель»
Сданных 16
|
Строящихся 16
Время работы 09:00 — 21:00
Онлайн-сделка
Выбирайте квартиру в ЖК «Императорские Мытищи» по ценам от застройщика
Посмотреть все спецпредложения
студия 28,17 м2 6 293 642
Этаж 9/12
МО, ЖК «Императорские Мытищи»
Медведково
15 мин.
Строится
студия 28,76 м2 6 397 214
Этаж 5/12
МО, ЖК «Императорские Мытищи»
Медведково
15 мин.
Строится
студия 28,81 м2 6 351 750
Этаж 3/12
МО, ЖК «Императорские Мытищи»
Медведково
15 мин.
Строится
студия 29,15 м2 8 087 063
Этаж 11/12
МО, ЖК «Императорские Мытищи»
Медведково
15 мин.
Строится
Посмотреть 35 квартир в ЖК «Императорские Мытищи»
1-комн. квартира 32,70 м2 7 096 984
Этаж 5/12
МО, ЖК «Императорские Мытищи»
Медведково
15 мин.
Строится
1-комн. квартира 34,48 м2 7 110 831
Этаж 5/12
МО, ЖК «Императорские Мытищи»
Медведково
15 мин.
Строится
1-комн. квартира 34,81 м2 7 110 517
Этаж 2/12
МО, ЖК «Императорские Мытищи»
Медведково
15 мин.
Строится
1-комн. квартира 35,74 м2 7 300 484
Этаж 3/12
МО, ЖК «Императорские Мытищи»
Медведково
15 мин.
Строится
Посмотреть 51 квартира в ЖК «Императорские Мытищи»
2-комн. квартира 50,26 м2 9 377 992
Этаж 6/12
МО, ЖК «Императорские Мытищи»
Медведково
15 мин.
Строится
2-комн. квартира 50,50 м2 9 472 367
Этаж 9/12
МО, ЖК «Императорские Мытищи»
Медведково
15 мин.
Строится
2-комн. квартира 51,28 м2 9 467 595
Этаж 2/12
МО, ЖК «Императорские Мытищи»
Медведково
15 мин.
Строится
2-комн. квартира 51,30 м2 9 622 425
Этаж 9/12
МО, ЖК «Императорские Мытищи»
Медведково
15 мин.
Строится
Посмотреть 63 квартиры в ЖК «Императорские Мытищи»
3-комн. квартира 67,86 м2 16 960 374
Этаж 2/12
МО, ЖК «Императорские Мытищи»
Медведково
15 мин.
Строится
3-комн. квартира 68,89 м2 13 699 824
Этаж 12/12
МО, ЖК «Императорские Мытищи»
Медведково
15 мин.
Строится
3-комн. квартира 69,91 м2 14 589 219
Этаж 12/12
МО, ЖК «Императорские Мытищи»
Медведково
15 мин.
Строится
3-комн. квартира 76,69 м2 16 832 556
Этаж 8/12
МО, ЖК «Императорские Мытищи»
Медведково
15 мин.
Строится
Посмотреть 20 квартир в ЖК «Императорские Мытищи»

Скидки и спецпредложения от застройщиков

ЖК «Императорские Мытищи» на карте

Выгодные предложения на новостройки

Самый полезный отзыв
П
16 февраля 2018
Оценка:
Комплекс подкупил своим внешним видом. Интересная архитектура вписывается в общее окружение. Этот тихий район прекрасно подойдет для семейных пар. Он будет с бассейнами, школами, детскими садами и торговыми центрами – все что нужно, для отдыха от городской суеты. Наша семья покорена комплексом и с большим нетерпением ждем свою квартиру.
Ответить
Полезный отзыв?
Самый новый отзыв
Н
06 января
Оценка:
Из необычного - планировки тут есть в том числе двухуровневые. Не знаю, продают ли сейчас подобные квартиры, но когда мы покупали и выбирали, да, такие квартиры были.
Ответить
Полезный отзыв?
Добавьте отзыв, заполнив личные данные, или сначала войдите на сайт, тогда информация будет автоматически взята из личного профиля.
Оценка*