Рейтинг@Mail.ru
Переверните экран
Новостройки Квартиры Ипотека Новостройки Москвы Новостройки Подмосковья Новостройки Новой Москвы Готовые новостройки Новостройки на карте Акции от застройщиков Коммерческие помещения Продавцы и застройщики Панорамы новостроек Видеообзор новостроек Экспертиза новостроек Экология Москвы и Подмосковья Студии 1-комнатные 2-комнатные 3-комнатные Квартиры на карте Ипотечный калькулятор Семейная ипотека Военная ипотека Банки и программы Медиа Новости недвижимости Мнение эксперта Аналитика рынка Покупателю Экспертиза новостроек Эксперты и авторы О проекте Контакты Реклама на сайте Vk Youtube Telegram Дзен Машиноместа Апартаменты #траншевая ипотека #рассрочка IT-ипотека Квартиры со скидками до 40% Видео 360° новостроек Субсидированная застройщиком Rutube Поиск дома в Москве Программа реновации в Москве Новостройки премиум-класса Новостройки бизнес-класса Рассрочка Траншевая ипотека ГАЛС Дома и коттеджи Бизнес-центры Бизнес-центры в Москве Бизнес-центры рядом с метро Строящиеся бизнес-центры Бизнес-центры класса A Бизнес-центры класса B ЛСР
Данная квартира является лидером продаж среди однокомнатных квартир в ЖК «G3 Театральный» по данным Росреестра
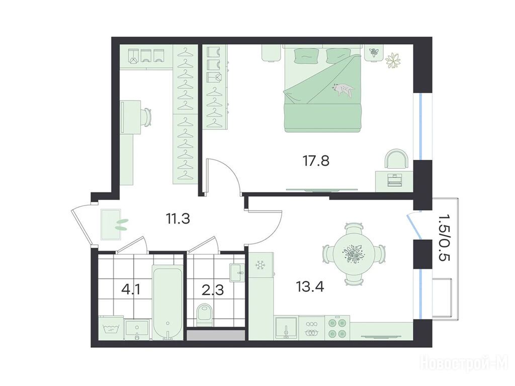
1-комн. квартира, 49.40 м2, 2 этаж
Срок сдачи 2 квартал 2026 года
10 190 793 
206 291 2
обновлено 5 декабря

Описание 1-комн. квартиры

Новостройка
Застройщик
Срок ГК
2 квартал 2026 года
Стадия строительства
отделка фасада и внутренние работы
Общая площадь
49.40 м2
Жилая площадь
17.80 м2
Площадь кухни
13.40 м2
Этаж
2 / 5

Расположение 1-комн. квартиры

Метро
Станция МЦД
Ж/Д-станция
Дом
2
Адрес
ул. Театральная, корп. 2, секция 6

Способы покупки

Особенности

Продается однокомнатная квартира в новостройке ЖК «G3 Театральный» по адресу Московская область, Раменский район, Ильинский Г/П, ул. Театральная, корп. 2. Общая площадь квартиры - 49.4 кв. м. Тип проекта, по которому построен дом — Монолитно-каркасный, компания-застройщик — G3 GROUP. Стоимость квартиры — 10 190 793 руб. Способы оплаты можно уточнить у продавца. Срок сдачи — 2 квартал 2026. Более подробная информация по телефону.
Инфоцентр новостроек
Инфоцентр новостроек
+7 (499) 705-91-41
Время работы 9:00 — 21:00
Посмотреть все спецпредложения
Этаж 2/4
МО, ЖК «G3 Театральный»
Ильинская
7 мин.
Строится
Этаж 2/4
МО, ЖК «G3 Театральный»
Ильинская
7 мин.
Строится
Этаж 2/4
МО, ЖК «G3 Театральный»
Ильинская
7 мин.
Строится
Этаж 2/5
МО, ЖК «G3 Театральный»
Ильинская
7 мин.
Строится
Посмотреть 52 квартиры в ЖК «G3 Театральный»
Этаж 3/4
МО, ЖК «G3 Театральный»
Ильинская
7 мин.
Строится
Этаж 2/4
МО, ЖК «G3 Театральный»
Ильинская
7 мин.
Строится
Этаж 2/5
МО, ЖК «G3 Театральный»
Ильинская
7 мин.
Строится
Этаж 2/4
МО, ЖК «G3 Театральный»
Ильинская
7 мин.
Строится
Посмотреть 18 квартир в ЖК «G3 Театральный»
Этаж 2/5
МО, ЖК «G3 Театральный»
Ильинская
7 мин.
Строится
Этаж 3/4
МО, ЖК «G3 Театральный»
Ильинская
7 мин.
Строится
Этаж 2/5
МО, ЖК «G3 Театральный»
Ильинская
7 мин.
Строится
Этаж 2/4
МО, ЖК «G3 Театральный»
Ильинская
7 мин.
Строится
Посмотреть 34 квартиры в ЖК «G3 Театральный»
Этаж 4/5
МО, ЖК «G3 Театральный»
Ильинская
7 мин.
Строится
Этаж 2/4
МО, ЖК «G3 Театральный»
Ильинская
7 мин.
Строится
Этаж 2/4
МО, ЖК «G3 Театральный»
Ильинская
7 мин.
Строится
Этаж 2/4
МО, ЖК «G3 Театральный»
Ильинская
7 мин.
Строится
Посмотреть 32 квартиры в ЖК «G3 Театральный»
Этаж 1/4
МО, ЖК «G3 Театральный»
Ильинская
7 мин.
Сдан
Этаж 4/4
МО, ЖК «G3 Театральный»
Ильинская
7 мин.
Сдан
Этаж 4/5
МО, ЖК «G3 Театральный»
Ильинская
7 мин.
Строится
Этаж 2/5
МО, ЖК «G3 Театральный»
Ильинская
7 мин.
Строится
Посмотреть 7 квартир в ЖК «G3 Театральный»

Скидки и спецпредложения от застройщиков

ЖК «G3 Театральный» на карте

Выгодные предложения на новостройки

Отзывы о ЖК «G3 Театральный»

Самый полезный отзыв
С
26 декабря 2023
Оценка:
Планировки
Способы покупки
Внешний вид фасада
Входные группы
Двор, окружение
Расположение
Взял квартиру на четвертном этаже, так как будет расположен дымоход для камина. Осталось приобрести кресло-качалку и жизнь удалась. Вообще комплекс мне нравится.
Ответить
Полезный отзыв?
Самый новый отзыв
СП
28 ноября
Оценка:
Социальная инфраструктура
Двор, окружение
Расположение
Моей семье G3 Театральный удобен- на территории свой муниципальный детский сад только для жителей комплекса, школы и другие сады близко, передвижение без лишних пересадок.
Ответить
Полезный отзыв?
Добавьте отзыв, заполнив личные данные, или сначала войдите на сайт, тогда информация будет автоматически взята из личного профиля.
Оценка*