Рейтинг@Mail.ru
Переверните экран
Новостройки Квартиры Ипотека Новостройки Москвы Новостройки Подмосковья Новостройки Новой Москвы Готовые новостройки Новостройки на карте Акции от застройщиков Коммерческие помещения Продавцы и застройщики Панорамы новостроек Видеообзор новостроек Экспертиза новостроек Экология Москвы и Подмосковья Студии 1-комнатные 2-комнатные 3-комнатные Квартиры на карте Ипотечный калькулятор Семейная ипотека Военная ипотека Банки и программы Медиа Новости недвижимости Мнение эксперта Аналитика рынка Покупателю Экспертиза новостроек Эксперты и авторы О проекте Контакты Реклама на сайте Vk Youtube Telegram Дзен Машиноместа Апартаменты #траншевая ипотека #рассрочка ИТ-ипотека Квартиры со скидками до 40% Видео 360° новостроек Субсидированная застройщиком Rutube Поиск дома в Москве Программа реновации в Москве Новостройки премиум-класса Новостройки бизнес-класса Рассрочка Траншевая ипотека Дома и коттеджи Коттеджные поселки в Новой Москве Готовые коттеджные поселки Строящиеся коттеджные поселки Коттеджные поселки в лесу Коттеджные поселки у водоема Коттеджные поселки в ипотеку Бизнес-центры Коттеджи Ипотека со ставкой 0,1%
1-комн. квартира, 48.60 м2, 9 этаж
Сдан
39 152 160 
41 212 800
805 600 2
обновлено 13 мая

Описание 1-комн. квартиры

Новостройка
Застройщик
Срок ГК
Дом сдан
Стадия строительства
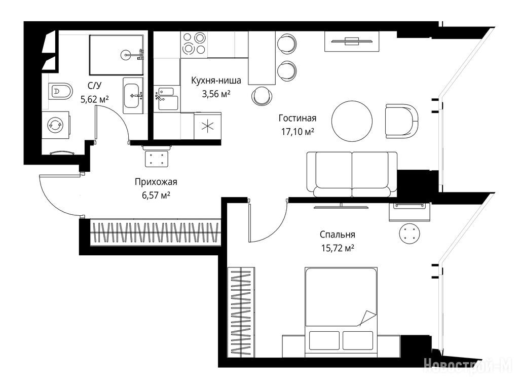
Общая площадь
48.60 м2
Жилая площадь
15.72 м2
Площадь кухни
20.66 м2
Этаж
9 / 57
Отделка
предчистовая

Расположение 1-комн. квартиры

Локация
Метро
Дом
Famous
Адрес
Багратионовский пр-д, 5А, корп. 2, секция 1

Особенности

Продается однокомнатная квартира в новостройке ЖК «Феймос» по адресу Москва, ЗАО, Филевский Парк, Багратионовский пр-д, 5А, корп. 2. Общая площадь квартиры - 48.6 кв. м. Тип проекта, по которому построен дом — Монолитно-кирпичный, компания-застройщик — MR Group (МР Групп), ООО «Латириус». Стоимость квартиры — 39 152 160 руб. Способы оплаты можно уточнить у продавца. Более подробная информация по телефону.
Инфоцентр новостроек
Инфоцентр новостроек
+7 (499) 705-91-41
Время работы 9:00 — 21:00
1-комн. квартира 38,20 м2 32 298 100
Этаж 2/57
Москва, ЖК «Феймос»
Фили
8 мин.
Сдан
1-комн. квартира 39,20 м2 32 277 280
Этаж 3/57
Москва, ЖК «Феймос»
Фили
8 мин.
Сдан
1-комн. квартира 39,90 м2 34 000 785
Этаж 5/57
Москва, ЖК «Феймос»
Фили
8 мин.
Сдан
1-комн. квартира 40,20 м2 34 332 810
Этаж 7/57
Москва, ЖК «Феймос»
Фили
8 мин.
Сдан
Посмотреть 22 квартиры в ЖК «Феймос»
2-комн. квартира 58,00 м2 40 553 600
Этаж 2/57
Москва, ЖК «Феймос»
Фили
8 мин.
Сдан
2-комн. квартира 58,60 м2 42 587 550
Этаж 2/57
Москва, ЖК «Феймос»
Фили
8 мин.
Сдан
2-комн. квартира 59,70 м2 43 386 975
Этаж 3/57
Москва, ЖК «Феймос»
Фили
8 мин.
Сдан
2-комн. квартира 59,80 м2 43 573 270
Этаж 5/57
Москва, ЖК «Феймос»
Фили
8 мин.
Сдан
Посмотреть 31 квартира в ЖК «Феймос»
3-комн. квартира 82,40 м2 58 475 160
Этаж 5/57
Москва, ЖК «Феймос»
Фили
8 мин.
Сдан
3-комн. квартира 84,10 м2 58 029 000
Этаж 9/57
Москва, ЖК «Феймос»
Фили
8 мин.
Сдан
3-комн. квартира 86,80 м2 61 845 000
Этаж 14/57
Москва, ЖК «Феймос»
Фили
8 мин.
Сдан
3-комн. квартира 88,20 м2 62 842 500
Этаж 17/57
Москва, ЖК «Феймос»
Фили
8 мин.
Сдан
Посмотреть 27 квартир в ЖК «Феймос»

Скидки и спецпредложения от застройщиков

ЖК «Феймос» на карте

Выгодные предложения на новостройки

Отзывы о ЖК «Феймос»

Самый полезный отзыв
В
12 сентября 2022
Оценка:
Мне понравилось расположение комплекса. Привычка жить высоко осталась, но жить в Сити честно устала, муравейник, честное слово, а Фили район зеленый и поток людей тут все же не такой. Я художник и мне важно, чтобы одна из комнат, в итоге, была мастерской с панорамными окнами на всю Москву и Феймос в этом плане прям запал в душу. Хорошие отделки от бюро Клодта, даже подумываю не брать White Box, а взять Ready и доработать под студию. Ну и плюсом большим явялется, что не нужно никуда выходить, спа-центр, ресторан, свой сад, где можно сидеть рисовать и вдохновляться. В общем, советую всем почитать и посмотреть концепцию башни, для людей эмоциональных, как я, самое то.
Ответить
Самый новый отзыв
Л
29 апреля
Оценка:
Достоинства
Расположение
Я думала, это дом моей мечты. Но очень сильно разочаровалась. Я копила на эту квартиру 17 лет. Получила 2 высших образования, работала без выходных и праздников. Думала там премиум будет, но по факту отношение как к эконому. Лифты не работают и ближайший год их не включат. Управляющая компания говорит, что она их не приняла ещё у застройщика. Поэтому все претензии ему. Лифт не работает но за обслуживание берут плату каждый месяц. На вопрос к Председателю управляющей компании, почему мы платим за лифт, а он не работает, он ответил : «ну это же копейки». Квартплата в 5 раз больше, чем в соседнем доме. 286р за 1м, хотя у нас сейчас 66, и мы живем недалеко от феймоса , в таком же новом доме. Это только содержание жилья столько стоит. Дальше - заливной пол неровный, фасады бракованные, вызывали специалиста, есть сколы от оборудования. С потолка течёт в 3 местах, причём мы уже жалуемся туда 1,5 месяца, сказали, что все отопление поменяли в верхней квартире, но у нас все равно капает. Нам заселяться через 3 недели, как на лифте детям ездить не знаю. Будем жаловаться в жилищную инспекцию, прокуратуру и Роспотребнадзор.
Ответить

Оставить отзыв

Добавьте отзыв, заполнив личные данные, или сначала войдите на сайт, тогда информация будет автоматически взята из личного профиля.
Оценка*