Рейтинг@Mail.ru
Переверните экран
Новостройки Квартиры Ипотека Новостройки Москвы Новостройки Подмосковья Новостройки Новой Москвы Готовые новостройки Новостройки на карте Акции от застройщиков Коммерческие помещения Продавцы и застройщики Панорамы новостроек Видеообзор новостроек Экспертиза новостроек Экология Москвы и Подмосковья Студии 1-комнатные 2-комнатные 3-комнатные Квартиры на карте Ипотечный калькулятор Семейная ипотека Военная ипотека Банки и программы Медиа Новости недвижимости Мнение эксперта Аналитика рынка Покупателю Экспертиза новостроек Эксперты и авторы О проекте Контакты Реклама на сайте Vk Youtube Telegram Дзен Машиноместа Апартаменты #траншевая ипотека #рассрочка IT-ипотека Квартиры со скидками до 35% Видео 360° новостроек Субсидированная застройщиком Rutube Поиск дома в Москве Программа реновации в Москве Новостройки премиум-класса Новостройки бизнес-класса Рассрочка Траншевая ипотека Дома и коттеджи Бизнес-центры Бизнес-центры в Москве Бизнес-центры рядом с метро Строящиеся бизнес-центры Бизнес-центры класса A Бизнес-центры класса B
Данная квартира является лидером продаж среди однокомнатных квартир в Жилом районе ÁLIA (АЛИА) по данным Росреестра
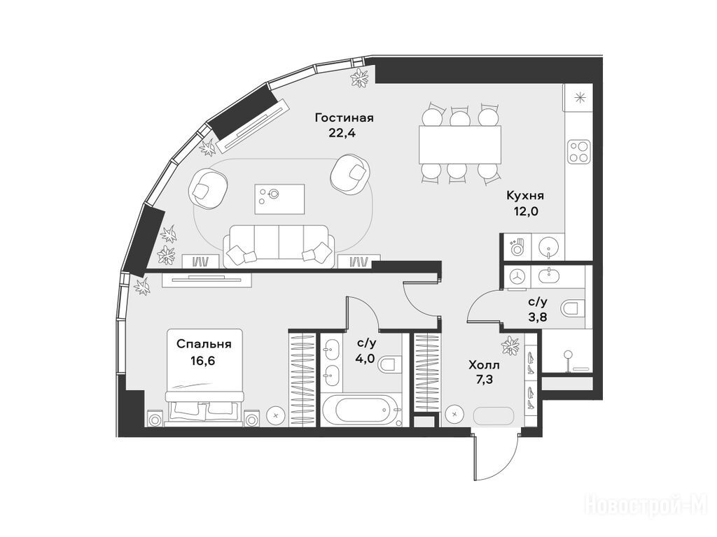
1-комн. квартира, 66.00 м2, 2 этаж
Срок сдачи 2 квартал 2028 года
34 107 600 
42 634 500
516 782 2
обновлено 5 февраля

Описание 1-комн. квартиры

Срок ГК
2 квартал 2028 года
Стадия строительства
котлован/фундамент
Тип проекта
Общая площадь
66.00 м2
Жилая площадь
39.00 м2
Площадь кухни
12.00 м2
Этаж
2 / 42
Грузовой лифт
есть

Расположение 1-комн. квартиры

Локация
Метро
Станция МЦД
Станция МЦК
Дом
River 1: Lighthouse 1 (к.1)
Адрес
Лётная улица, 95Б, секция 1

Способы покупки

Особенности

Продается однокомнатная квартира в новостройке Жилой район ÁLIA (АЛИА) по адресу Москва, СЗАО, Покровское-Стрешнево, Лётная улица, 95Б. Общая площадь квартиры - 66 кв. м. Тип проекта, по которому построен дом — Монолит, компания-застройщик — ООО «Специализированный застройщик «Резиденс». Стоимость квартиры — 34 107 600 руб. Способы оплаты можно уточнить у продавца. Срок сдачи — 2 квартал 2028. Более подробная информация по телефону.

Правовые документы

ASTERUS (АСТЕРУС)
ASTERUS (АСТЕРУС)
Сданных 0
|
Строящихся 1
Время работы 09:00 — 21:00
Выбирайте квартиру в Жилой район ÁLIA (АЛИА) по ценам от застройщика
Посмотреть все спецпредложения
Этаж 7/30
Москва, Жилой район ÁLIA (АЛИА)
Спартак
7 мин.
Строится
студия 26,00 м2 19 280 004
Этаж 2/28
Москва, Жилой район ÁLIA (АЛИА)
Спартак
7 мин.
Строится
Этаж 11/30
Москва, Жилой район ÁLIA (АЛИА)
Спартак
7 мин.
Строится
студия 29,00 м2 19 951 420
Этаж 20/28
Москва, Жилой район ÁLIA (АЛИА)
Спартак
7 мин.
Строится
Посмотреть 10 квартир в Жилом районе ÁLIA (АЛИА)
1-комн. квартира 34,00 м2 24 648 840
Этаж 15/18
Москва, Жилой район ÁLIA (АЛИА)
Спартак
7 мин.
Строится
1-комн. квартира 35,00 м2 23 751 000
Этаж 15/18
Москва, Жилой район ÁLIA (АЛИА)
Спартак
7 мин.
Строится
1-комн. квартира 36,00 м2 24 339 150
Этаж 26/30
Москва, Жилой район ÁLIA (АЛИА)
Спартак
7 мин.
Строится
1-комн. квартира 37,00 м2 28 683 160
Этаж 19/28
Москва, Жилой район ÁLIA (АЛИА)
Спартак
7 мин.
Строится
Посмотреть 78 квартир в Жилом районе ÁLIA (АЛИА)
2-комн. квартира 49,00 м2 29 504 010
Этаж 2/28
Москва, Жилой район ÁLIA (АЛИА)
Спартак
7 мин.
Строится
2-комн. квартира 50,00 м2 29 666 780
Этаж 2/30
Москва, Жилой район ÁLIA (АЛИА)
Спартак
7 мин.
Строится
2-комн. квартира 51,00 м2 36 619 110
Этаж 12/28
Москва, Жилой район ÁLIA (АЛИА)
Спартак
7 мин.
Строится
2-комн. квартира 53,00 м2 32 635 080
Этаж 19/28
Москва, Жилой район ÁLIA (АЛИА)
Спартак
7 мин.
Строится
Посмотреть 63 квартиры в Жилом районе ÁLIA (АЛИА)
3-комн. квартира 74,00 м2 42 564 060
Этаж 26/28
Москва, Жилой район ÁLIA (АЛИА)
Спартак
7 мин.
Строится
3-комн. квартира 79,00 м2 43 081 038
Этаж 21/30
Москва, Жилой район ÁLIA (АЛИА)
Спартак
7 мин.
Строится
3-комн. квартира 81,00 м2 52 555 230
Этаж 23/30
Москва, Жилой район ÁLIA (АЛИА)
Спартак
7 мин.
Строится
3-комн. квартира 83,00 м2 53 501 040
Этаж 36/40
Москва, Жилой район ÁLIA (АЛИА)
Спартак
7 мин.
Строится
Посмотреть 21 квартира в Жилом районе ÁLIA (АЛИА)
4-комн. квартира 103,00 м2 73 446 300
Этаж 22/22
Москва, Жилой район ÁLIA (АЛИА)
Спартак
7 мин.
Строится
4-комн. квартира 107,00 м2 68 901 075
Этаж 32/40
Москва, Жилой район ÁLIA (АЛИА)
Спартак
7 мин.
Строится
4-комн. квартира 109,00 м2 67 096 125
Этаж 37/42
Москва, Жилой район ÁLIA (АЛИА)
Спартак
7 мин.
Строится
4-комн. квартира 113,00 м2 72 694 095
Этаж 5/9
Москва, Жилой район ÁLIA (АЛИА)
Спартак
7 мин.
Строится
Посмотреть 7 квартир в Жилом районе ÁLIA (АЛИА)
5-комн. квартира 141,00 м2 90 410 360
Этаж 25/25
Москва, Жилой район ÁLIA (АЛИА)
Спартак
7 мин.
Сдан

Скидки и спецпредложения от застройщиков

Жилой район ÁLIA (АЛИА) на карте

Выгодные предложения на новостройки

Отзывы о Жилом районе ÁLIA (АЛИА)

Самый полезный отзыв
Я
27 августа 2019
Оценка:
Внешний вид фасада
Двор, окружение
Видел макет этого проекта, выглядит впечатляюще конечно. Наконец-то в этом районе построят приличный ЖК. Буду следить за строительством, если проблем не будет, то задумаюсь о покупке.
Ответить
Полезный отзыв?
Самый новый отзыв
К
29 января
Оценка:
Социальная инфраструктура
Скорость строительства
Внешний вид фасада
Комплекс - сам райончик- очень компактный, в двух шагах от метро: это его самое главное преимущество, молодежный, много семей с детьми. Инфраструктура - развитая, всего достаточно. Двор просто супер, теперь я знаю что такое дворы без машин!
Ответить
Полезный отзыв?
Добавьте отзыв, заполнив личные данные, или сначала войдите на сайт, тогда информация будет автоматически взята из личного профиля.
Оценка*