Рейтинг@Mail.ru
Переверните экран
Новостройки Квартиры Ипотека Новостройки Москвы Новостройки Подмосковья Новостройки Новой Москвы Готовые новостройки Новостройки на карте Акции от застройщиков Коммерческие помещения Продавцы и застройщики Панорамы новостроек Видеообзор новостроек Экспертиза новостроек Экология Москвы и Подмосковья Студии 1-комнатные 2-комнатные 3-комнатные Квартиры на карте Ипотечный калькулятор Семейная ипотека Военная ипотека Банки и программы Медиа Новости недвижимости Мнение эксперта Аналитика рынка Покупателю Экспертиза новостроек Эксперты и авторы О проекте Контакты Реклама на сайте Vk Youtube Telegram Дзен Машиноместа Апартаменты #траншевая ипотека #рассрочка IT-ипотека Квартиры со скидками до 40% Видео 360° новостроек Субсидированная застройщиком Rutube Поиск дома в Москве Программа реновации в Москве Новостройки премиум-класса Новостройки бизнес-класса Рассрочка Траншевая ипотека ГАЛС Дома и коттеджи Бизнес-центры Бизнес-центры в Москве Бизнес-центры рядом с метро Строящиеся бизнес-центры Бизнес-центры класса A Бизнес-центры класса B ЛСР
Данная квартира является лидером продаж среди однокомнатных квартир в ЖК «Белый Град» по данным Росреестра
1-комн. квартира, 41.40 м2, 3 этаж
Срок сдачи 3 квартал 2026 года
8 380 000 
202 415 2
обновлено 5 декабря

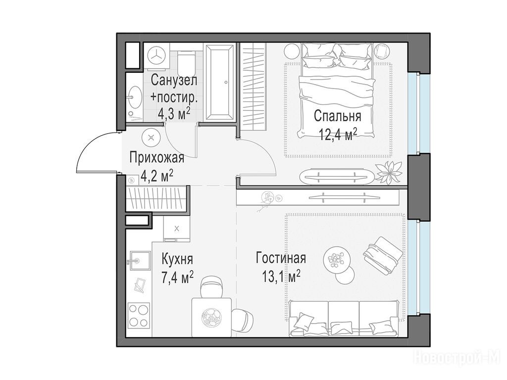
Описание 1-комн. квартиры

Новостройка
Застройщик
Срок ГК
3 квартал 2026 года
Стадия строительства
отделка фасада и внутренние работы
Общая площадь
41.40 м2
Жилая площадь
25.50 м2
Площадь кухни
20.50 м2
Высота потолков
2.76
Этаж
3 / 23
Отделка
нет
Тип санузла
раздельный

Расположение 1-комн. квартиры

Метро
Станция МЦК
Ж/Д-станция
Дом
12.2
Адрес
жилой комплекс Белый Grad, 12.2, секция 3

Способы покупки

Особенности

Продается однокомнатная квартира в новостройке ЖК «Белый Град» по адресу Московская область, Мытищи городской округ, Мытищи, жилой комплекс Белый Grad, 12.2. Общая площадь квартиры - 41.4 кв. м. Тип проекта, по которому построен дом — Монолитно-кирпичный, компания-застройщик — Ingrad (Инград). Стоимость квартиры — 8 380 000 руб. Способы оплаты можно уточнить у продавца. Срок сдачи — 3 квартал 2026. Более подробная информация по телефону.

Правовые документы

Инфоцентр новостроек
Инфоцентр новостроек
+7 (499) 705-91-41
Время работы 9:00 — 21:00

Похожие квартиры в ЖК «Белый Град»

2 этаж
из 23 3 квартал 2026
Московская область, Мытищи городской округ
Медведково
18 мин.
12.2
Корпус
нет
Отделка
2.76 м
Потолки
ЖК «Белый Град»
8 340 000
Альфа-Банк, СберБанк, Сургутнефтегазбанк, Банк Санкт-Петербург, Металлинвестбанк, Абсолют Банк, ДОМ.РФ, Т-Банк, Банк Россия, Уралсиб, Промсвязьбанк, Московский Кредитный Банк, Совкомбанк, МТС Банк
6.00%
Ставка
30.10%
Первый взнос
от 50 003 /мес.
Все варианты
2 этаж
из 23 3 квартал 2026
Московская область, Мытищи городской округ
Медведково
18 мин.
12.2
Корпус
нет
Отделка
2.76 м
Потолки
ЖК «Белый Град»
8 340 000
Альфа-Банк, СберБанк, Сургутнефтегазбанк, Банк Санкт-Петербург, Металлинвестбанк, Абсолют Банк, ДОМ.РФ, Т-Банк, Банк Россия, Уралсиб, Промсвязьбанк, Московский Кредитный Банк, Совкомбанк, МТС Банк
6.00%
Ставка
30.10%
Первый взнос
от 50 003 /мес.
Все варианты
3 этаж
из 23 3 квартал 2026
Московская область, Мытищи городской округ
Медведково
18 мин.
12.2
Корпус
нет
Отделка
2.76 м
Потолки
ЖК «Белый Град»
8 380 000
Альфа-Банк, СберБанк, Сургутнефтегазбанк, Банк Санкт-Петербург, Металлинвестбанк, Абсолют Банк, ДОМ.РФ, Т-Банк, Банк Россия, Уралсиб, Промсвязьбанк, Московский Кредитный Банк, Совкомбанк, МТС Банк
6.00%
Ставка
30.10%
Первый взнос
от 50 242 /мес.
Все варианты
4 этаж
из 23 3 квартал 2026
Московская область, Мытищи городской округ
Медведково
18 мин.
12.2
Корпус
нет
Отделка
2.76 м
Потолки
ЖК «Белый Град»
8 460 000
Альфа-Банк, СберБанк, Сургутнефтегазбанк, Банк Санкт-Петербург, Металлинвестбанк, Абсолют Банк, ДОМ.РФ, Т-Банк, Банк Россия, Уралсиб, Промсвязьбанк, Московский Кредитный Банк, Совкомбанк, МТС Банк
6.00%
Ставка
30.10%
Первый взнос
от 50 722 /мес.
Все варианты
4 этаж
из 23 3 квартал 2026
Московская область, Мытищи городской округ
Медведково
18 мин.
12.2
Корпус
нет
Отделка
2.76 м
Потолки
ЖК «Белый Град»
8 460 000
Альфа-Банк, СберБанк, Сургутнефтегазбанк, Банк Санкт-Петербург, Металлинвестбанк, Абсолют Банк, ДОМ.РФ, Т-Банк, Банк Россия, Уралсиб, Промсвязьбанк, Московский Кредитный Банк, Совкомбанк, МТС Банк
6.00%
Ставка
30.10%
Первый взнос
от 50 722 /мес.
Все варианты
6 этаж
из 23 3 квартал 2026
Московская область, Мытищи городской округ
Медведково
18 мин.
12.2
Корпус
нет
Отделка
2.76 м
Потолки
ЖК «Белый Град»
8 530 000
Альфа-Банк, СберБанк, Сургутнефтегазбанк, Банк Санкт-Петербург, Металлинвестбанк, Абсолют Банк, ДОМ.РФ, Т-Банк, Банк Россия, Уралсиб, Промсвязьбанк, Московский Кредитный Банк, Совкомбанк, МТС Банк
6.00%
Ставка
30.10%
Первый взнос
от 51 142 /мес.
Все варианты
6 этаж
из 23 3 квартал 2026
Московская область, Мытищи городской округ
Медведково
18 мин.
12.2
Корпус
нет
Отделка
2.76 м
Потолки
ЖК «Белый Град»
8 530 000
Альфа-Банк, СберБанк, Сургутнефтегазбанк, Банк Санкт-Петербург, Металлинвестбанк, Абсолют Банк, ДОМ.РФ, Т-Банк, Банк Россия, Уралсиб, Промсвязьбанк, Московский Кредитный Банк, Совкомбанк, МТС Банк
6.00%
Ставка
30.10%
Первый взнос
от 51 142 /мес.
Все варианты
10 этаж
из 23 3 квартал 2026
Московская область, Мытищи городской округ
Медведково
18 мин.
12.2
Корпус
нет
Отделка
2.76 м
Потолки
ЖК «Белый Град»
8 530 000
Альфа-Банк, СберБанк, Сургутнефтегазбанк, Банк Санкт-Петербург, Металлинвестбанк, Абсолют Банк, ДОМ.РФ, Т-Банк, Банк Россия, Уралсиб, Промсвязьбанк, Московский Кредитный Банк, Совкомбанк, МТС Банк
6.00%
Ставка
30.10%
Первый взнос
от 51 142 /мес.
Все варианты
10 этаж
из 23 3 квартал 2026
Московская область, Мытищи городской округ
Медведково
18 мин.
12.2
Корпус
нет
Отделка
2.76 м
Потолки
ЖК «Белый Град»
8 530 000
Альфа-Банк, СберБанк, Сургутнефтегазбанк, Банк Санкт-Петербург, Металлинвестбанк, Абсолют Банк, ДОМ.РФ, Т-Банк, Банк Россия, Уралсиб, Промсвязьбанк, Московский Кредитный Банк, Совкомбанк, МТС Банк
6.00%
Ставка
30.10%
Первый взнос
от 51 142 /мес.
Все варианты
11 этаж
из 23 3 квартал 2026
Московская область, Мытищи городской округ
Медведково
18 мин.
12.2
Корпус
нет
Отделка
2.76 м
Потолки
ЖК «Белый Град»
8 570 000
Альфа-Банк, СберБанк, Сургутнефтегазбанк, Банк Санкт-Петербург, Металлинвестбанк, Абсолют Банк, ДОМ.РФ, Т-Банк, Банк Россия, Уралсиб, Промсвязьбанк, Московский Кредитный Банк, Совкомбанк, МТС Банк
6.00%
Ставка
30.10%
Первый взнос
от 51 381 /мес.
Все варианты
11 этаж
из 23 3 квартал 2026
Московская область, Мытищи городской округ
Медведково
18 мин.
12.2
Корпус
нет
Отделка
2.76 м
Потолки
ЖК «Белый Град»
8 570 000
Альфа-Банк, СберБанк, Сургутнефтегазбанк, Банк Санкт-Петербург, Металлинвестбанк, Абсолют Банк, ДОМ.РФ, Т-Банк, Банк Россия, Уралсиб, Промсвязьбанк, Московский Кредитный Банк, Совкомбанк, МТС Банк
6.00%
Ставка
30.10%
Первый взнос
от 51 381 /мес.
Все варианты
12 этаж
из 23 3 квартал 2026
Московская область, Мытищи городской округ
Медведково
18 мин.
12.2
Корпус
нет
Отделка
2.76 м
Потолки
ЖК «Белый Град»
8 650 000
Альфа-Банк, СберБанк, Сургутнефтегазбанк, Банк Санкт-Петербург, Металлинвестбанк, Абсолют Банк, ДОМ.РФ, Т-Банк, Банк Россия, Уралсиб, Промсвязьбанк, Московский Кредитный Банк, Совкомбанк, МТС Банк
6.00%
Ставка
30.10%
Первый взнос
от 51 861 /мес.
Все варианты
12 этаж
из 23 3 квартал 2026
Московская область, Мытищи городской округ
Медведково
18 мин.
12.2
Корпус
нет
Отделка
2.76 м
Потолки
ЖК «Белый Град»
8 650 000
Альфа-Банк, СберБанк, Сургутнефтегазбанк, Банк Санкт-Петербург, Металлинвестбанк, Абсолют Банк, ДОМ.РФ, Т-Банк, Банк Россия, Уралсиб, Промсвязьбанк, Московский Кредитный Банк, Совкомбанк, МТС Банк
6.00%
Ставка
30.10%
Первый взнос
от 51 861 /мес.
Все варианты
13 этаж
из 23 3 квартал 2026
Московская область, Мытищи городской округ
Медведково
18 мин.
12.2
Корпус
нет
Отделка
2.76 м
Потолки
ЖК «Белый Град»
8 690 000
Альфа-Банк, СберБанк, Сургутнефтегазбанк, Банк Санкт-Петербург, Металлинвестбанк, Абсолют Банк, ДОМ.РФ, Т-Банк, Банк Россия, Уралсиб, Промсвязьбанк, Московский Кредитный Банк, Совкомбанк, МТС Банк
6.00%
Ставка
30.10%
Первый взнос
от 52 101 /мес.
Все варианты
13 этаж
из 23 3 квартал 2026
Московская область, Мытищи городской округ
Медведково
18 мин.
12.2
Корпус
нет
Отделка
2.76 м
Потолки
ЖК «Белый Град»
8 690 000
Альфа-Банк, СберБанк, Сургутнефтегазбанк, Банк Санкт-Петербург, Металлинвестбанк, Абсолют Банк, ДОМ.РФ, Т-Банк, Банк Россия, Уралсиб, Промсвязьбанк, Московский Кредитный Банк, Совкомбанк, МТС Банк
6.00%
Ставка
30.10%
Первый взнос
от 52 101 /мес.
Все варианты
14 этаж
из 23 3 квартал 2026
Московская область, Мытищи городской округ
Медведково
18 мин.
12.2
Корпус
нет
Отделка
2.76 м
Потолки
ЖК «Белый Град»
8 730 000
Альфа-Банк, СберБанк, Сургутнефтегазбанк, Банк Санкт-Петербург, Металлинвестбанк, Абсолют Банк, ДОМ.РФ, Т-Банк, Банк Россия, Уралсиб, Промсвязьбанк, Московский Кредитный Банк, Совкомбанк, МТС Банк
6.00%
Ставка
30.10%
Первый взнос
от 52 341 /мес.
Все варианты
14 этаж
из 23 3 квартал 2026
Московская область, Мытищи городской округ
Медведково
18 мин.
12.2
Корпус
нет
Отделка
2.76 м
Потолки
ЖК «Белый Град»
8 730 000
Альфа-Банк, СберБанк, Сургутнефтегазбанк, Банк Санкт-Петербург, Металлинвестбанк, Абсолют Банк, ДОМ.РФ, Т-Банк, Банк Россия, Уралсиб, Промсвязьбанк, Московский Кредитный Банк, Совкомбанк, МТС Банк
6.00%
Ставка
30.10%
Первый взнос
от 52 341 /мес.
Все варианты
8 этаж
из 23 3 квартал 2026
Московская область, Мытищи городской округ
Медведково
18 мин.
12.2
Корпус
нет
Отделка
2.76 м
Потолки
ЖК «Белый Град»
8 770 000
Альфа-Банк, СберБанк, Сургутнефтегазбанк, Банк Санкт-Петербург, Металлинвестбанк, Абсолют Банк, ДОМ.РФ, Т-Банк, Банк Россия, Уралсиб, Промсвязьбанк, Московский Кредитный Банк, Совкомбанк, МТС Банк
6.00%
Ставка
30.10%
Первый взнос
от 52 581 /мес.
Все варианты
8 этаж
из 23 3 квартал 2026
Московская область, Мытищи городской округ
Медведково
18 мин.
12.2
Корпус
нет
Отделка
2.76 м
Потолки
ЖК «Белый Град»
8 770 000
Альфа-Банк, СберБанк, Сургутнефтегазбанк, Банк Санкт-Петербург, Металлинвестбанк, Абсолют Банк, ДОМ.РФ, Т-Банк, Банк Россия, Уралсиб, Промсвязьбанк, Московский Кредитный Банк, Совкомбанк, МТС Банк
6.00%
Ставка
30.10%
Первый взнос
от 52 581 /мес.
Все варианты
15 этаж
из 23 3 квартал 2026
Московская область, Мытищи городской округ
Медведково
18 мин.
12.2
Корпус
нет
Отделка
2.76 м
Потолки
ЖК «Белый Град»
8 800 000
Альфа-Банк, СберБанк, Сургутнефтегазбанк, Банк Санкт-Петербург, Металлинвестбанк, Абсолют Банк, ДОМ.РФ, Т-Банк, Банк Россия, Уралсиб, Промсвязьбанк, Московский Кредитный Банк, Совкомбанк, МТС Банк
6.00%
Ставка
30.10%
Первый взнос
от 52 760 /мес.
Все варианты
15 этаж
из 23 3 квартал 2026
Московская область, Мытищи городской округ
Медведково
18 мин.
12.2
Корпус
нет
Отделка
2.76 м
Потолки
ЖК «Белый Град»
8 800 000
Альфа-Банк, СберБанк, Сургутнефтегазбанк, Банк Санкт-Петербург, Металлинвестбанк, Абсолют Банк, ДОМ.РФ, Т-Банк, Банк Россия, Уралсиб, Промсвязьбанк, Московский Кредитный Банк, Совкомбанк, МТС Банк
6.00%
Ставка
30.10%
Первый взнос
от 52 760 /мес.
Все варианты
19 этаж
из 23 3 квартал 2026
Московская область, Мытищи городской округ
Медведково
18 мин.
12.2
Корпус
нет
Отделка
2.76 м
Потолки
ЖК «Белый Град»
8 840 000
Альфа-Банк, СберБанк, Сургутнефтегазбанк, Банк Санкт-Петербург, Металлинвестбанк, Абсолют Банк, ДОМ.РФ, Т-Банк, Банк Россия, Уралсиб, Промсвязьбанк, Московский Кредитный Банк, Совкомбанк, МТС Банк
6.00%
Ставка
30.10%
Первый взнос
от 53 000 /мес.
Все варианты
16 этаж
из 23 3 квартал 2026
Московская область, Мытищи городской округ
Медведково
18 мин.
12.2
Корпус
нет
Отделка
2.76 м
Потолки
ЖК «Белый Град»
8 840 000
Альфа-Банк, СберБанк, Сургутнефтегазбанк, Банк Санкт-Петербург, Металлинвестбанк, Абсолют Банк, ДОМ.РФ, Т-Банк, Банк Россия, Уралсиб, Промсвязьбанк, Московский Кредитный Банк, Совкомбанк, МТС Банк
6.00%
Ставка
30.10%
Первый взнос
от 53 000 /мес.
Все варианты
16 этаж
из 23 3 квартал 2026
Московская область, Мытищи городской округ
Медведково
18 мин.
12.2
Корпус
нет
Отделка
2.76 м
Потолки
ЖК «Белый Град»
8 840 000
Альфа-Банк, СберБанк, Сургутнефтегазбанк, Банк Санкт-Петербург, Металлинвестбанк, Абсолют Банк, ДОМ.РФ, Т-Банк, Банк Россия, Уралсиб, Промсвязьбанк, Московский Кредитный Банк, Совкомбанк, МТС Банк
6.00%
Ставка
30.10%
Первый взнос
от 53 000 /мес.
Все варианты
19 этаж
из 23 3 квартал 2026
Московская область, Мытищи городской округ
Медведково
18 мин.
12.2
Корпус
нет
Отделка
2.76 м
Потолки
ЖК «Белый Град»
8 840 000
Альфа-Банк, СберБанк, Сургутнефтегазбанк, Банк Санкт-Петербург, Металлинвестбанк, Абсолют Банк, ДОМ.РФ, Т-Банк, Банк Россия, Уралсиб, Промсвязьбанк, Московский Кредитный Банк, Совкомбанк, МТС Банк
6.00%
Ставка
30.10%
Первый взнос
от 53 000 /мес.
Все варианты
20 этаж
из 23 3 квартал 2026
Московская область, Мытищи городской округ
Медведково
18 мин.
12.2
Корпус
нет
Отделка
2.76 м
Потолки
ЖК «Белый Град»
8 880 000
Альфа-Банк, СберБанк, Сургутнефтегазбанк, Банк Санкт-Петербург, Металлинвестбанк, Абсолют Банк, ДОМ.РФ, Т-Банк, Банк Россия, Уралсиб, Промсвязьбанк, Московский Кредитный Банк, Совкомбанк, МТС Банк
6.00%
Ставка
30.10%
Первый взнос
от 53 240 /мес.
Все варианты
20 этаж
из 23 3 квартал 2026
Московская область, Мытищи городской округ
Медведково
18 мин.
12.2
Корпус
нет
Отделка
2.76 м
Потолки
ЖК «Белый Град»
8 880 000
Альфа-Банк, СберБанк, Сургутнефтегазбанк, Банк Санкт-Петербург, Металлинвестбанк, Абсолют Банк, ДОМ.РФ, Т-Банк, Банк Россия, Уралсиб, Промсвязьбанк, Московский Кредитный Банк, Совкомбанк, МТС Банк
6.00%
Ставка
30.10%
Первый взнос
от 53 240 /мес.
Все варианты
18 этаж
из 23 3 квартал 2026
Московская область, Мытищи городской округ
Медведково
18 мин.
12.2
Корпус
нет
Отделка
2.76 м
Потолки
ЖК «Белый Град»
8 920 000
Альфа-Банк, СберБанк, Сургутнефтегазбанк, Банк Санкт-Петербург, Металлинвестбанк, Абсолют Банк, ДОМ.РФ, Т-Банк, Банк Россия, Уралсиб, Промсвязьбанк, Московский Кредитный Банк, Совкомбанк, МТС Банк
6.00%
Ставка
30.10%
Первый взнос
от 53 480 /мес.
Все варианты
21 этаж
из 23 3 квартал 2026
Московская область, Мытищи городской округ
Медведково
18 мин.
12.2
Корпус
нет
Отделка
2.76 м
Потолки
ЖК «Белый Град»
8 920 000
Альфа-Банк, СберБанк, Сургутнефтегазбанк, Банк Санкт-Петербург, Металлинвестбанк, Абсолют Банк, ДОМ.РФ, Т-Банк, Банк Россия, Уралсиб, Промсвязьбанк, Московский Кредитный Банк, Совкомбанк, МТС Банк
6.00%
Ставка
30.10%
Первый взнос
от 53 480 /мес.
Все варианты
21 этаж
из 23 3 квартал 2026
Московская область, Мытищи городской округ
Медведково
18 мин.
12.2
Корпус
нет
Отделка
2.76 м
Потолки
ЖК «Белый Град»
8 920 000
Альфа-Банк, СберБанк, Сургутнефтегазбанк, Банк Санкт-Петербург, Металлинвестбанк, Абсолют Банк, ДОМ.РФ, Т-Банк, Банк Россия, Уралсиб, Промсвязьбанк, Московский Кредитный Банк, Совкомбанк, МТС Банк
6.00%
Ставка
30.10%
Первый взнос
от 53 480 /мес.
Все варианты
18 этаж
из 23 3 квартал 2026
Московская область, Мытищи городской округ
Медведково
18 мин.
12.2
Корпус
нет
Отделка
2.76 м
Потолки
ЖК «Белый Град»
8 920 000
Альфа-Банк, СберБанк, Сургутнефтегазбанк, Банк Санкт-Петербург, Металлинвестбанк, Абсолют Банк, ДОМ.РФ, Т-Банк, Банк Россия, Уралсиб, Промсвязьбанк, Московский Кредитный Банк, Совкомбанк, МТС Банк
6.00%
Ставка
30.10%
Первый взнос
от 53 480 /мес.
Все варианты
22 этаж
из 23 3 квартал 2026
Московская область, Мытищи городской округ
Медведково
18 мин.
12.2
Корпус
нет
Отделка
2.76 м
Потолки
ЖК «Белый Град»
8 960 000
Альфа-Банк, СберБанк, Сургутнефтегазбанк, Банк Санкт-Петербург, Металлинвестбанк, Абсолют Банк, ДОМ.РФ, Т-Банк, Банк Россия, Уралсиб, Промсвязьбанк, Московский Кредитный Банк, Совкомбанк, МТС Банк
6.00%
Ставка
30.10%
Первый взнос
от 53 720 /мес.
Все варианты
22 этаж
из 23 3 квартал 2026
Московская область, Мытищи городской округ
Медведково
18 мин.
12.2
Корпус
нет
Отделка
2.76 м
Потолки
ЖК «Белый Град»
8 960 000
Альфа-Банк, СберБанк, Сургутнефтегазбанк, Банк Санкт-Петербург, Металлинвестбанк, Абсолют Банк, ДОМ.РФ, Т-Банк, Банк Россия, Уралсиб, Промсвязьбанк, Московский Кредитный Банк, Совкомбанк, МТС Банк
6.00%
Ставка
30.10%
Первый взнос
от 53 720 /мес.
Все варианты
23 этаж
из 23 3 квартал 2026
Московская область, Мытищи городской округ
Медведково
18 мин.
12.2
Корпус
нет
Отделка
2.76 м
Потолки
ЖК «Белый Град»
9 380 000
Альфа-Банк, СберБанк, Сургутнефтегазбанк, Банк Санкт-Петербург, Металлинвестбанк, Абсолют Банк, ДОМ.РФ, Т-Банк, Банк Россия, Уралсиб, Промсвязьбанк, Московский Кредитный Банк, Совкомбанк, МТС Банк
6.00%
Ставка
30.10%
Первый взнос
от 56 238 /мес.
Все варианты
23 этаж
из 23 3 квартал 2026
Московская область, Мытищи городской округ
Медведково
18 мин.
12.2
Корпус
нет
Отделка
2.76 м
Потолки
ЖК «Белый Град»
9 380 000
Альфа-Банк, СберБанк, Сургутнефтегазбанк, Банк Санкт-Петербург, Металлинвестбанк, Абсолют Банк, ДОМ.РФ, Т-Банк, Банк Россия, Уралсиб, Промсвязьбанк, Московский Кредитный Банк, Совкомбанк, МТС Банк
6.00%
Ставка
30.10%
Первый взнос
от 56 238 /мес.
Все варианты
Посмотреть все спецпредложения
1-комн. квартира 41,40 м2 8 340 000
Этаж 2/23
МО, ЖК «Белый Град»
Медведково
18 мин.
Строится
2-комн. квартира 54,20 м2 10 200 000
Этаж 4/23
МО, ЖК «Белый Град»
Медведково
18 мин.
Строится
2-комн. квартира 62,00 м2 12 120 000
Этаж 2/17
МО, ЖК «Белый Град»
Медведково
18 мин.
Строится
3-комн. квартира 76,60 м2 15 090 000
Этаж 4/23
МО, ЖК «Белый Град»
Медведково
18 мин.
Строится
студия 20,70 м2 5 420 000
Этаж 8/20
МО, ЖК «Белый Град»
Медведково
18 мин.
Строится
студия 21,00 м2 5 380 000
Этаж 3/17
МО, ЖК «Белый Град»
Медведково
18 мин.
Строится
студия 21,10 м2 5 430 000
Этаж 8/23
МО, ЖК «Белый Град»
Медведково
18 мин.
Строится
студия 21,20 м2 5 340 000
Этаж 2/20
МО, ЖК «Белый Град»
Медведково
18 мин.
Строится
Посмотреть 203 квартиры в ЖК «Белый Град»
1-комн. квартира 28,90 м2 6 690 000
Этаж 17/20
МО, ЖК «Белый Град»
Медведково
18 мин.
Строится
1-комн. квартира 31,10 м2 6 850 000
Этаж 16/20
МО, ЖК «Белый Град»
Медведково
18 мин.
Строится
1-комн. квартира 31,20 м2 6 850 000
Этаж 13/23
МО, ЖК «Белый Град»
Медведково
18 мин.
Строится
1-комн. квартира 32,50 м2 7 430 000
Этаж 19/20
МО, ЖК «Белый Град»
Медведково
18 мин.
Строится
Посмотреть 765 квартир в ЖК «Белый Град»
2-комн. квартира 45,30 м2 9 380 000
Этаж 15/23
МО, ЖК «Белый Град»
Медведково
18 мин.
Строится
2-комн. квартира 46,70 м2 10 080 000
Этаж 2/20
МО, ЖК «Белый Град»
Медведково
18 мин.
Строится
2-комн. квартира 46,90 м2 10 250 000
Этаж 4/20
МО, ЖК «Белый Град»
Медведково
18 мин.
Строится
2-комн. квартира 48,90 м2 11 990 000
Этаж 20/20
МО, ЖК «Белый Град»
Медведково
18 мин.
Строится
Посмотреть 497 квартир в ЖК «Белый Град»
3-комн. квартира 56,00 м2 11 770 000
Этаж 3/12
МО, ЖК «Белый Град»
Медведково
18 мин.
Строится
3-комн. квартира 70,40 м2 13 260 000
Этаж 4/17
МО, ЖК «Белый Град»
Медведково
18 мин.
Строится
3-комн. квартира 76,50 м2 18 190 000
Этаж 20/23
МО, ЖК «Белый Град»
Медведково
18 мин.
Строится
3-комн. квартира 76,60 м2 15 090 000
Этаж 4/23
МО, ЖК «Белый Град»
Медведково
18 мин.
Строится
Посмотреть 26 квартир в ЖК «Белый Град»
4-комн. квартира 79,50 м2 20 210 000
Этаж 23/23
МО, ЖК «Белый Град»
Медведково
18 мин.
Строится

Скидки и спецпредложения от застройщиков

ЖК «Белый Град» на карте

Выгодные предложения на новостройки

Отзывы о ЖК «Белый Град»

Самый полезный отзыв
А
09 июля 2020
Оценка:
Социальная инфраструктура
Двор, окружение
Расположение
Добрый день, впечатляет масштабом проект - 30 корпусов, свои школы, сады, больницы, с торговыми точками проблем 100% не будет, слышал, что тут выделят жилье для дольщиков обонкротившися строительств, значит пристально будут смотреть на этот комплекс сверху, а для новых дольщиков обезопасят покупку эскроу-счета. Понять бы ценник за квадрат, а так круто размахнулись, конечно
Показать все комментарии
Ответить
Полезный отзыв?
Самый новый отзыв
N
20 ноября
Оценка:
Смотрим за стройкой нашего корпуса, там фасадные работы уже идут. Выбрали этот ЖК из-за лесопарков вокруг. До Мытищинского лесопарка 2.5 км на велосипеде кататься. И свой ФОК с бассейном будет, не надо далеко ездить за спортом
Ответить
Полезный отзыв?
Добавьте отзыв, заполнив личные данные, или сначала войдите на сайт, тогда информация будет автоматически взята из личного профиля.
Оценка*