Рейтинг@Mail.ru
Переверните экран
Новостройки Квартиры Ипотека Новостройки Москвы Новостройки Подмосковья Новостройки Новой Москвы Готовые новостройки Новостройки на карте Акции от застройщиков Коммерческие помещения Продавцы и застройщики Панорамы новостроек Видеообзор новостроек Экспертиза новостроек Экология Москвы и Подмосковья Студии 1-комнатные 2-комнатные 3-комнатные Квартиры на карте Ипотечный калькулятор Семейная ипотека Военная ипотека Банки и программы Медиа Новости недвижимости Мнение эксперта Аналитика рынка Покупателю Экспертиза новостроек Эксперты и авторы О проекте Контакты Реклама на сайте Vk Youtube Telegram Дзен Машиноместа Апартаменты #траншевая ипотека #рассрочка IT-ипотека Квартиры со скидками до 40% Видео 360° новостроек Субсидированная застройщиком Rutube Поиск дома в Москве Программа реновации в Москве Новостройки премиум-класса Новостройки бизнес-класса Рассрочка Траншевая ипотека ГАЛС Дома и коттеджи Бизнес-центры Бизнес-центры в Москве Бизнес-центры рядом с метро Строящиеся бизнес-центры Бизнес-центры класса A Бизнес-центры класса B ЛСР
1-комн. квартира, 96.59 м2, 3 этаж
Срок сдачи 3 квартал 2026 года
270 452 000 
2 800 000 2
обновлено 5 декабря

Описание 1-комн. квартиры

Новостройка
Застройщик
Срок ГК
3 квартал 2026 года
Стадия строительства
монтаж средних этажей
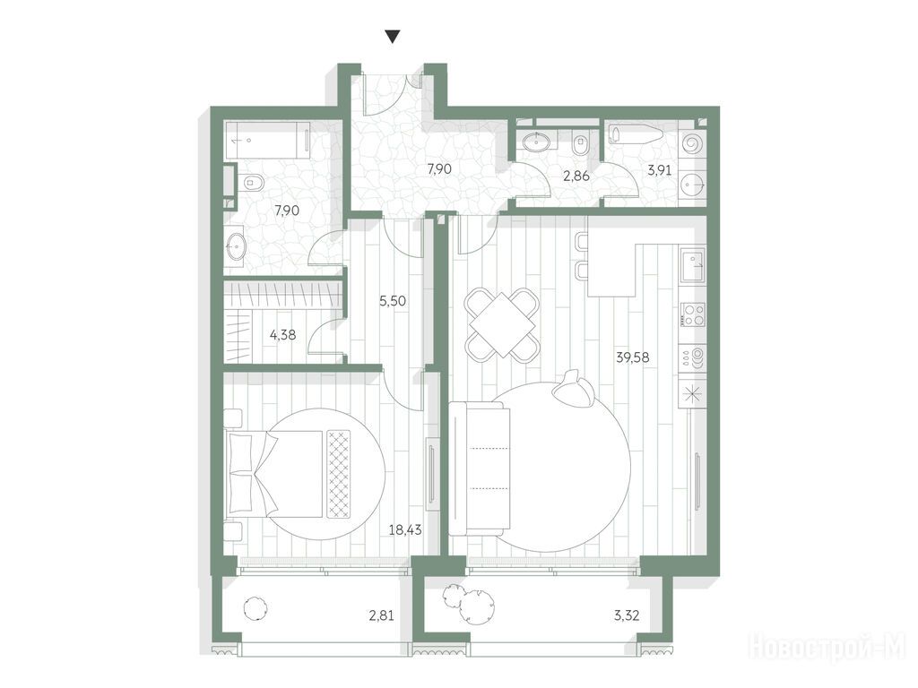
Общая площадь
96.59 м2
Жилая площадь
18.43 м2
Площадь кухни
39.58 м2
Этаж
3 / 7
Отделка
white box

Расположение 1-комн. квартиры

Локация
Дом
1
Адрес
Крестовоздвиженский, 4, секция 1

Особенности

Продается однокомнатная квартира в новостройке Клубный дом LUCE по адресу Москва, ЦАО, Арбат, Крестовоздвиженский, 4. Общая площадь квартиры - 96.59 кв. м. Тип проекта, по которому построен дом — Монолитно-кирпичный, компания-застройщик — MR Group (МР Групп). Стоимость квартиры — 270 452 000 руб. Способы оплаты можно уточнить у продавца. Срок сдачи — 3 квартал 2026. Более подробная информация по телефону.
Инфоцентр новостроек
Инфоцентр новостроек
+7 (499) 705-91-41
Время работы 9:00 — 21:00

Похожие квартиры в Клубном доме LUCE

4 этаж
из 7 3 квартал 2026
Москва, ЦАО
Арбатская
3 мин.
1
Корпус
white box
Отделка
3.90 м
Потолки
Клубный дом LUCE
284 940 500
Посмотреть все спецпредложения
1-комн. квартира 78,34 м2 207 601 000
Этаж 3/7
Москва, Клубный дом LUCE
Арбатская
3 мин.
Строится
1-комн. квартира 79,25 м2 245 675 000
Этаж 5/7
Москва, Клубный дом LUCE
Арбатская
3 мин.
Строится
1-комн. квартира 96,59 м2 284 940 500
Этаж 4/7
Москва, Клубный дом LUCE
Арбатская
3 мин.
Строится
Посмотреть 5 квартир в Клубном доме LUCE
2-комн. квартира 136,32 м2 422 592 000
Этаж 5/7
Москва, Клубный дом LUCE
Арбатская
3 мин.
Строится
2-комн. квартира 136,84 м2 389 994 000
Этаж 4/7
Москва, Клубный дом LUCE
Арбатская
3 мин.
Строится
2-комн. квартира 142,38 м2 355 950 000
Этаж 2/7
Москва, Клубный дом LUCE
Арбатская
3 мин.
Строится
2-комн. квартира 144,00 м2 381 600 000
Этаж 3/7
Москва, Клубный дом LUCE
Арбатская
3 мин.
Строится
Посмотреть 9 квартир в Клубном доме LUCE
3-комн. квартира 193,96 м2 562 484 000
Этаж 4/7
Москва, Клубный дом LUCE
Арбатская
3 мин.
Строится
3-комн. квартира 194,95 м2 497 122 500
Этаж 2/7
Москва, Клубный дом LUCE
Арбатская
3 мин.
Строится
3-комн. квартира 195,76 м2 597 068 000
Этаж 5/7
Москва, Клубный дом LUCE
Арбатская
3 мин.
Строится
3-комн. квартира 198,51 м2 516 126 000
Этаж 3/7
Москва, Клубный дом LUCE
Арбатская
3 мин.
Строится
Посмотреть 14 квартир в Клубном доме LUCE
4-комн. квартира 268,23 м2 871 747 500
Этаж 5/7
Москва, Клубный дом LUCE
Арбатская
3 мин.
Строится
4-комн. квартира 302,61 м2 1 210 440 000
Этаж 6/7
Москва, Клубный дом LUCE
Арбатская
3 мин.
Строится

Скидки и спецпредложения от застройщиков

Клубный дом LUCE на карте

Выгодные предложения на новостройки

Отзывы о Клубном доме LUCE

Самый полезный отзыв
ВЮ
26 апреля 2024
Оценка:
Когда знакомилась с проектом, меня удивила, даже изумила одна вещь – это одно из лобби, которое будет с музыкальной гостиной. Все очень со вкусом!
Ответить
Полезный отзыв?
Самый новый отзыв
А
24 сентября
Оценка:
Виды на город тут будут открываться просто потрясающие: Храм Христа Спасителя, Кремль, Дом Пашкова. Сам проект расположен в престижном районе - на Знаменке. Рядом развитая инфраструктура: рестораны, музеи, театры в шаговой доступности. Отличный вариант как для жизни, так и для инвестиций.
Ответить
Полезный отзыв?
Добавьте отзыв, заполнив личные данные, или сначала войдите на сайт, тогда информация будет автоматически взята из личного профиля.
Оценка*