Рейтинг@Mail.ru
Переверните экран
Новостройки Квартиры Ипотека Новостройки Москвы Новостройки Подмосковья Новостройки Новой Москвы Готовые новостройки Новостройки на карте Акции от застройщиков Коммерческие помещения Продавцы и застройщики Панорамы новостроек Видеообзор новостроек Экспертиза новостроек Экология Москвы и Подмосковья Студии 1-комнатные 2-комнатные 3-комнатные Квартиры на карте Ипотечный калькулятор Семейная ипотека Военная ипотека Банки и программы Медиа Новости недвижимости Мнение эксперта Аналитика рынка Покупателю Экспертиза новостроек Эксперты и авторы О проекте Контакты Реклама на сайте Vk Youtube Telegram Дзен Машиноместа Апартаменты #траншевая ипотека #рассрочка IT-ипотека Квартиры со скидками до 40% Видео 360° новостроек Субсидированная застройщиком Rutube Поиск дома в Москве Программа реновации в Москве Новостройки премиум-класса Новостройки бизнес-класса Рассрочка Траншевая ипотека ГАЛС Дома и коттеджи Бизнес-центры Бизнес-центры в Москве Бизнес-центры рядом с метро Строящиеся бизнес-центры Бизнес-центры класса A Бизнес-центры класса B ЛСР
Данная квартира является лидером продаж среди двухкомнатных квартир в ЖК «Пехра» по данным Росреестра
2-комн. квартира, 61.20 м2, 2 этаж
Сдан
12 461 278 
14 713 316
203 616 2
обновлено 5 декабря

Описание 2-комн. квартиры

Новостройка
Застройщик
Срок ГК
Дом сдан
Стадия строительства
Общая площадь
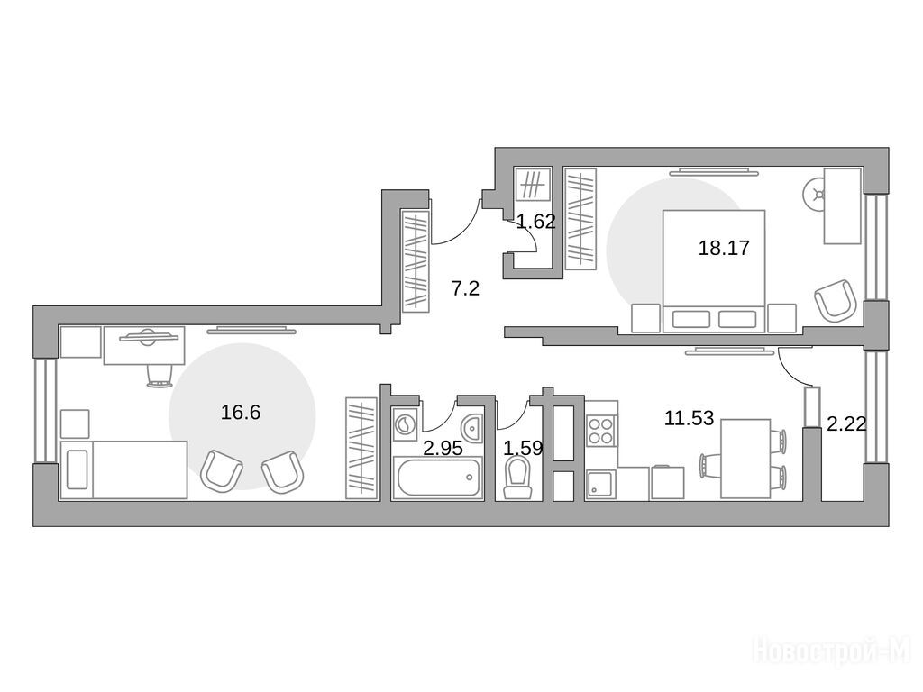
61.20 м2
Жилая площадь
34.77 м2
Площадь кухни
11.55 м2
Этаж
2 / 17
Балкон
лоджия
Отделка
чистовая

Расположение 2-комн. квартиры

Метро
Ж/Д-станция
Дом
5.1
Адрес
ул. Трубецкая, мкр.39, влад.2Б, корп. 5.1, секция 3

Способы покупки

Особенности

Продается двухкомнатная квартира в новостройке ЖК «Пехра» по адресу Московская область, Балашиха городской округ, Балашиха, ул. Трубецкая, мкр.39, влад.2Б, корп. 5.1. Общая площадь квартиры - 61.2 кв. м. Тип проекта, по которому построен дом — Монолит, компания-застройщик — ГК «Гранель». Стоимость квартиры — 12 461 278 руб. Способы оплаты можно уточнить у продавца. Более подробная информация по телефону.

Правовые документы

ГК «Гранель»
ГК «Гранель»
Сданных 16
|
Строящихся 16
Время работы 09:00 — 21:00
Онлайн-сделка
Выбирайте квартиру в ЖК «Пехра» по ценам от застройщика
Посмотреть все спецпредложения
студия 21,28 м2 5 214 059
Этаж 14/15
МО, ЖК «Пехра»
Щелковская
29 мин.
Строится
студия 21,41 м2 5 245 912
Этаж 2/15
МО, ЖК «Пехра»
Щелковская
29 мин.
Строится
студия 23,40 м2 6 193 105
Этаж 6/25
МО, ЖК «Пехра»
Щелковская
29 мин.
Строится
студия 23,50 м2 6 453 250
Этаж 2/14 лоджия
МО, ЖК «Пехра»
Щелковская
29 мин.
Сдан
Посмотреть 124 квартиры в ЖК «Пехра»
1-комн. квартира 32,68 м2 7 959 165
Этаж 17/17 лоджия
МО, ЖК «Пехра»
Щелковская
29 мин.
Строится
1-комн. квартира 34,12 м2 8 309 875
Этаж 2/17 лоджия
МО, ЖК «Пехра»
Щелковская
29 мин.
Строится
1-комн. квартира 34,20 м2 6 817 983
Этаж 3/15 лоджия
МО, ЖК «Пехра»
Щелковская
29 мин.
Строится
1-комн. квартира 34,30 м2 7 146 764
Этаж 4/9 лоджия
МО, ЖК «Пехра»
Щелковская
29 мин.
Сдан
Посмотреть 31 квартира в ЖК «Пехра»
2-комн. квартира 51,67 м2 12 076 726
Этаж 17/17 лоджия
МО, ЖК «Пехра»
Щелковская
29 мин.
Строится
2-комн. квартира 52,73 м2 12 324 478
Этаж 2/17 лоджия
МО, ЖК «Пехра»
Щелковская
29 мин.
Строится
2-комн. квартира 53,10 м2 10 709 288
Этаж 16/16 лоджия
МО, ЖК «Пехра»
Щелковская
29 мин.
Сдан
2-комн. квартира 53,50 м2 10 777 757
Этаж 16/16 лоджия
МО, ЖК «Пехра»
Щелковская
29 мин.
Сдан
Посмотреть 68 квартир в ЖК «Пехра»
3-комн. квартира 72,75 м2 13 860 169
Этаж 15/15 лоджия
МО, ЖК «Пехра»
Щелковская
29 мин.
Строится

Скидки и спецпредложения от застройщиков

ЖК «Пехра» на карте

Выгодные предложения на новостройки

Отзывы о ЖК «Пехра»

Самый полезный отзыв
ТГ
04 июня 2018
Оценка:
Транспортная доступность
Расположение
Готовность
Документы по объекту уже выложили. Значит, уже можно всерьез эту стройку воспринимать. Студии тут есть махонькие совсем, но и цена за них всего 1, 53 млн. Кажется, это самая низкая цены на студии в заявленном классе комфорт в ближнем Подмосковье. Я ниже не нашел.
Показать все комментарии
Ответить
Полезный отзыв?
Самый новый отзыв
ЕВ
09 августа
Оценка:
Планировки
Способы покупки
Внешний вид фасада
Двор, окружение
Расположение
Балашиха - мой родной район, привыкла к нему, поэтому новую квартиру только тут и смотрела, из всех вариантов Пехра понравился больше всего, плюс застройщик надежный, в офисе встретили приветливо, помогли подобрать подходящий вариант, скидочку сделали, помогли оформить все запросы в банк и так на все вопросы дали пояснения, мне кажется, что я не пожалею
Ответить
Полезный отзыв?
Добавьте отзыв, заполнив личные данные, или сначала войдите на сайт, тогда информация будет автоматически взята из личного профиля.
Оценка*