Рейтинг@Mail.ru
Переверните экран
Новостройки Квартиры Ипотека Новостройки Москвы Новостройки Подмосковья Новостройки Новой Москвы Готовые новостройки Новостройки на карте Акции от застройщиков Коммерческие помещения Продавцы и застройщики Панорамы новостроек Видеообзор новостроек Экспертиза новостроек Экология Москвы и Подмосковья Студии 1-комнатные 2-комнатные 3-комнатные Квартиры на карте Ипотечный калькулятор Семейная ипотека Военная ипотека Банки и программы Медиа Новости недвижимости Мнение эксперта Аналитика рынка Покупателю Экспертиза новостроек Эксперты и авторы О проекте Контакты Реклама на сайте Vk Youtube Telegram Дзен Машиноместа Апартаменты #траншевая ипотека #рассрочка ИТ-ипотека Квартиры со скидками до 40% Видео 360° новостроек Субсидированная застройщиком Rutube Поиск дома в Москве Программа реновации в Москве Новостройки премиум-класса Новостройки бизнес-класса Рассрочка Траншевая ипотека Дома и коттеджи Коттеджные поселки в Новой Москве Готовые коттеджные поселки Строящиеся коттеджные поселки Коттеджные поселки в лесу Коттеджные поселки у водоема Коттеджные поселки в ипотеку Бизнес-центры Коттеджи Ипотека со ставкой 0,1%
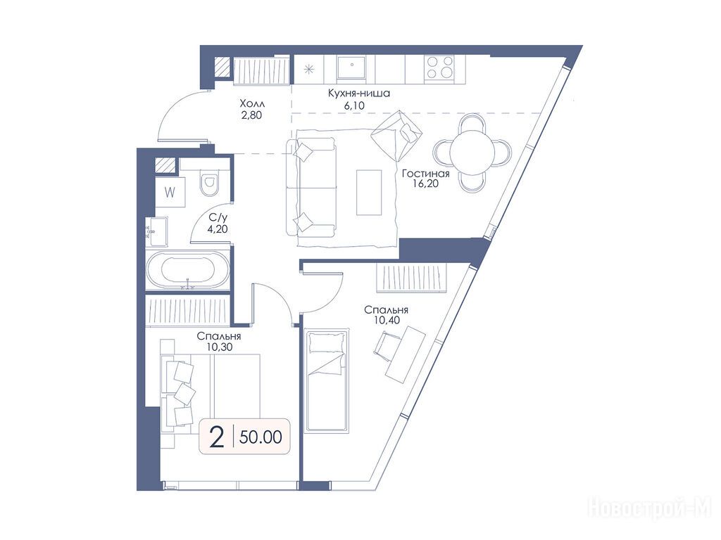
2-комн. квартира, 50.00 м2, 26 этаж
Срок сдачи 4 квартал 2028 года
36 850 000 
737 000 2
обновлено 1 мая

Описание 2-комн. квартиры

Новостройка
Срок ГК
4 квартал 2028 года
Стадия строительства
котлован/фундамент
Общая площадь
50.00 м2
Жилая площадь
20.70 м2
Площадь кухни
22.30 м2
Этаж
26 / 42

Расположение 2-комн. квартиры

Локация
Метро
Станция МЦК
ЗИЛ
20 мин.
Дом
1
Адрес
ул. Автозаводская, вл. 22к1, секция 2

Особенности

Продается двухкомнатная квартира в новостройке ЖК «А22» по адресу Москва, ЮАО, Даниловский, ул. Автозаводская, вл. 22к1. Общая площадь квартиры - 50 кв. м. Тип проекта, по которому построен дом — Монолитно-кирпичный, компания-застройщик — ООО СЗ «Автозаводская 22», ГК «Консоль». Стоимость квартиры — 36 850 000 руб. Способы оплаты можно уточнить у продавца. Срок сдачи — 4 квартал 2028. Более подробная информация по телефону.
Инфоцентр новостроек
Инфоцентр новостроек
Время работы 9:00 — 21:00
Выбирайте квартиру в ЖК «А22» по ценам от застройщика
студия 28,70 м2 20 692 700
Этаж 6/34
Москва, ЖК «А22»
Тульская
17 мин.
Строится
студия 28,90 м2 20 143 300
Этаж 8/42
Москва, ЖК «А22»
Тульская
17 мин.
Строится
студия 29,60 м2 20 601 600
Этаж 9/42
Москва, ЖК «А22»
Тульская
17 мин.
Строится
студия 30,60 м2 22 491 000
Этаж 17/34
Москва, ЖК «А22»
Тульская
17 мин.
Строится
Посмотреть 20 квартир в ЖК «А22»
1-комн. квартира 35,20 м2 22 704 000
Этаж 6/34
Москва, ЖК «А22»
Тульская
17 мин.
Строится
1-комн. квартира 37,10 м2 23 150 400
Этаж 8/42
Москва, ЖК «А22»
Тульская
17 мин.
Строится
1-комн. квартира 37,20 м2 23 547 600
Этаж 6/34
Москва, ЖК «А22»
Тульская
17 мин.
Строится
1-комн. квартира 37,30 м2 23 312 500
Этаж 9/42
Москва, ЖК «А22»
Тульская
17 мин.
Строится
Посмотреть 92 квартиры в ЖК «А22»
2-комн. квартира 49,60 м2 34 868 800
Этаж 22/42
Москва, ЖК «А22»
Тульская
17 мин.
Строится
2-комн. квартира 53,30 м2 35 657 700
Этаж 17/34
Москва, ЖК «А22»
Тульская
17 мин.
Строится
2-комн. квартира 54,50 м2 34 389 500
Этаж 6/34
Москва, ЖК «А22»
Тульская
17 мин.
Строится
2-комн. квартира 56,80 м2 40 839 200
Этаж 31/34
Москва, ЖК «А22»
Тульская
17 мин.
Строится
Посмотреть 31 квартира в ЖК «А22»
3-комн. квартира 76,00 м2 56 012 000
Этаж 6/34
Москва, ЖК «А22»
Тульская
17 мин.
Строится
3-комн. квартира 81,60 м2 61 363 200
Этаж 22/42
Москва, ЖК «А22»
Тульская
17 мин.
Строится
3-комн. квартира 82,20 м2 64 609 200
Этаж 28/42
Москва, ЖК «А22»
Тульская
17 мин.
Строится
3-комн. квартира 88,70 м2 63 686 600
Этаж 17/34
Москва, ЖК «А22»
Тульская
17 мин.
Строится
Посмотреть 11 квартир в ЖК «А22»

Скидки и спецпредложения от застройщиков

ЖК «А22» на карте

Выгодные предложения на новостройки

Самый полезный отзыв
С
16 июля 2025
Оценка:
Достоинства
Внешний вид фасада
Двор, окружение
Расположение
Бизнес-класс в престижном Даниловском районе ЮАО Москвы - достойный вариант. Ценник, конечно, соответствующий, надо еще подумать.
Ответить
Самый новый отзыв
Л
02 апреля
Оценка:
Недостатки
Транспортная доступность
Социальная инфраструктура
Двор, окружение
Расположение
Абсолютно негуманная стройка: этот громадный ЖК со всех сторон вплотную опоясан пытхтящим ТТК и двумя другими ЖК - Форст и вида комфорт-общежития INSIDER. Школ и садов на линии горизонта нет, хотя и горизонт у половины этажей - окно соседа. Машиномест до смешного мало, чтобы говорить о преимуществах ТТК. Разве что к этим «элитным» корпусам поставят поближе остановку электробуса и пустят их вереницей для всех тысяч жильцов до Тульской / Автозаводской. Застройщик и муниципалитет, прислушайтесь к отзывам и низкому спросу и не душите район прибыльным освоением этих жалких метров. Потенциальные покупатели, просто попробуйте приехать сюда в час пик и можете даже не представлять, что будет, когда это все заселится. Хотя в этот «бизнес-класс» под боком у массово посещаемого ТЦ-гиганта у вас будет пробка на заселение от самого метро.
Ответить

Оставить отзыв

Добавьте отзыв, заполнив личные данные, или сначала войдите на сайт, тогда информация будет автоматически взята из личного профиля.
Оценка*