Рейтинг@Mail.ru
Переверните экран
Новостройки Квартиры Ипотека Новостройки Москвы Новостройки Подмосковья Новостройки Новой Москвы Готовые новостройки Новостройки на карте Акции от застройщиков Коммерческие помещения Продавцы и застройщики Панорамы новостроек Видеообзор новостроек Экспертиза новостроек Экология Москвы и Подмосковья Студии 1-комнатные 2-комнатные 3-комнатные Квартиры на карте Ипотечный калькулятор Семейная ипотека Военная ипотека Банки и программы Медиа Новости недвижимости Мнение эксперта Аналитика рынка Покупателю Экспертиза новостроек Эксперты и авторы О проекте Контакты Реклама на сайте Vk Youtube Telegram Дзен Машиноместа Апартаменты #траншевая ипотека #рассрочка ИТ-ипотека Квартиры со скидками до 40% Видео 360° новостроек Субсидированная застройщиком Rutube Поиск дома в Москве Программа реновации в Москве Новостройки премиум-класса Новостройки бизнес-класса Рассрочка Траншевая ипотека Дома и коттеджи Коттеджные поселки в Новой Москве Готовые коттеджные поселки Строящиеся коттеджные поселки Коттеджные поселки в лесу Коттеджные поселки у водоема Коттеджные поселки в ипотеку Бизнес-центры Коттеджи Ипотека со ставкой 0,1%
2-комн. квартира, 61.60 м2, 2 этаж
Сдан
22 681 120 
368 200 2
обновлено 11 мая
74.240.319.8636352.686.841.619.842.442.340.383.4

Описание 2-комн. квартиры

Новостройка
Застройщик
ЛЗСМиК
Срок ГК
Дом сдан
Стадия строительства
Общая площадь
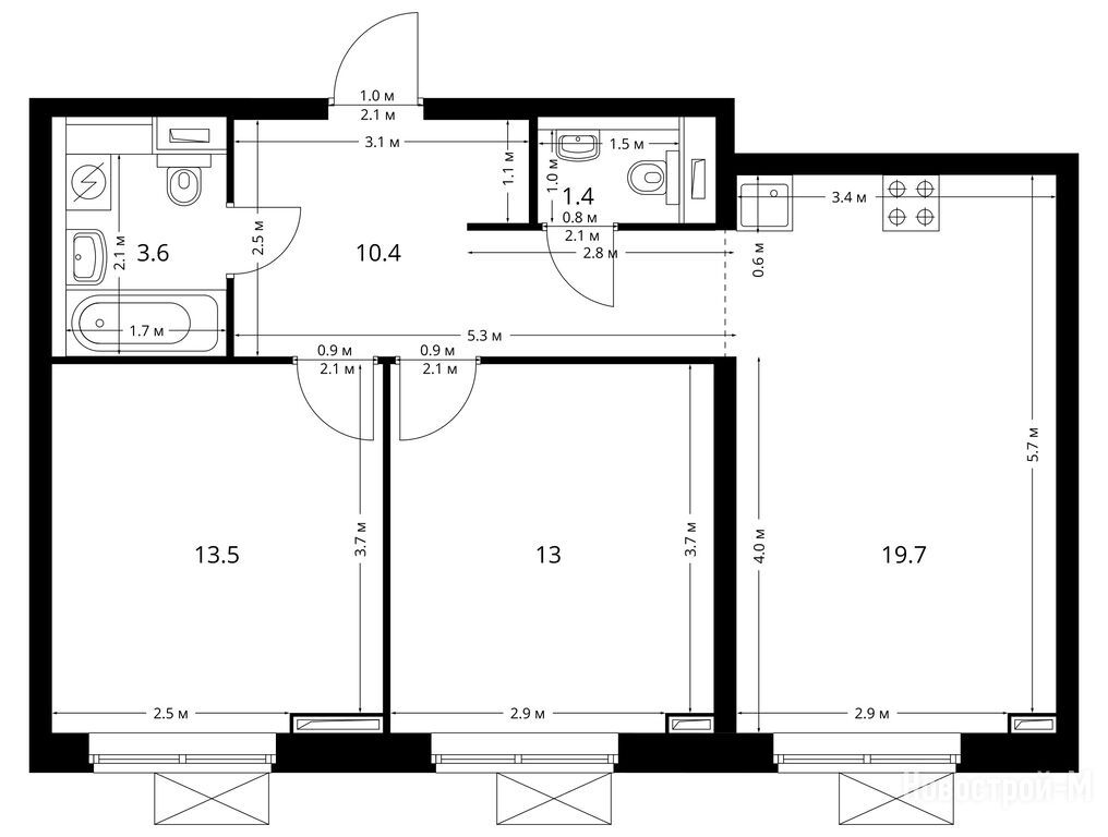
61.60 м2
Этаж
2 / 33
Отделка
чистовая
Грузовой лифт
есть

Расположение 2-комн. квартиры

Локация
Метро
Станция МЦД
Станция МЦК
Дом
2.2
Адрес
ул. Полярная, вл. 25, корп. 2.2, секция 1

Особенности

Продается двухкомнатная квартира в новостройке Полярная 25 по адресу Москва, СВАО, Южное Медведково, ул. Полярная, вл. 25, корп. 2.2. Общая площадь квартиры - 61.6 кв. м. Тип проекта, по которому построен дом — Монолитно-кирпичный,Панельный,Монолитно-панельный, компания-застройщик — ЛЗСМиК, ПИК. Стоимость квартиры — 22 681 120 руб. Способы оплаты можно уточнить у продавца. Более подробная информация по телефону.

Правовые документы

Этаж 2/15
Москва, Полярная 25
Медведково
25 мин.
Сдан
2-комн. квартира 61,60 м2 22 681 120
Этаж 2/33
Москва, Полярная 25
Медведково
25 мин.
Сдан

Скидки и спецпредложения от застройщиков

Полярная 25 на карте

Выгодные предложения на новостройки

Отзывы о Полярная 25

Самый полезный отзыв
К
25 июня 2018
Оценка:
Нравится идея про кладовки в ЖК. Как ни крути, но у семей всегда есть потребность в таких помещениях, особенно с появлением детей. С ними, кстати, планируем гонять на великах рядом, хорошо что все к этому располагает. И все то, что раньше захламляло балкон, теперь смело можно отправить в кладовку. Красота.
Показать все комментарии
Ответить
Самый новый отзыв
РИ
12 сентября 2024
Оценка:
Достоинства
Транспортная доступность
Социальная инфраструктура
Планировки
Двор, окружение
Одним из главных преимуществ ЖК является его удобное расположение — рядом находятся магазины, салоны красоты, аптеки и детские кружки и секции. Также стоит отметить, что двор закрыт для автомобилей, что обеспечивает безопасность и спокойствие для жильцов. В скором времени в районе появится новая школа, что станет ещё одним плюсом для тех, кто выбирает этот жилой комплекс. Уже сейчас работает современный детский сад, который соответствует всем необходимым стандартам качества.
Ответить

Оставить отзыв

Добавьте отзыв, заполнив личные данные, или сначала войдите на сайт, тогда информация будет автоматически взята из личного профиля.
Оценка*