Рейтинг@Mail.ru
Переверните экран
Новостройки Квартиры Ипотека Новостройки Москвы Новостройки Подмосковья Новостройки Новой Москвы Готовые новостройки Новостройки на карте Акции от застройщиков Коммерческие помещения Продавцы и застройщики Панорамы новостроек Видеообзор новостроек Экспертиза новостроек Экология Москвы и Подмосковья Студии 1-комнатные 2-комнатные 3-комнатные Квартиры на карте Ипотечный калькулятор Семейная ипотека Военная ипотека Банки и программы Медиа Новости недвижимости Мнение эксперта Аналитика рынка Покупателю Экспертиза новостроек Эксперты и авторы О проекте Контакты Реклама на сайте Vk Youtube Telegram Дзен Машиноместа Апартаменты #траншевая ипотека #рассрочка IT-ипотека Квартиры со скидками до 35% Видео 360° новостроек Субсидированная застройщиком Rutube Поиск дома в Москве Программа реновации в Москве Новостройки премиум-класса Новостройки бизнес-класса Рассрочка Траншевая ипотека Дома и коттеджи Бизнес-центры Бизнес-центры в Москве Бизнес-центры рядом с метро Строящиеся бизнес-центры Бизнес-центры класса A Бизнес-центры класса B
Данная квартира является лидером продаж среди четырехкомнатных квартир в ЖК «Родина Переделкино» по данным Росреестра
4-комн. квартира, 98.90 м2, 30 этаж
Срок сдачи 4 квартал 2027 года
42 273 920 
427 441 2
обновлено 5 февраля

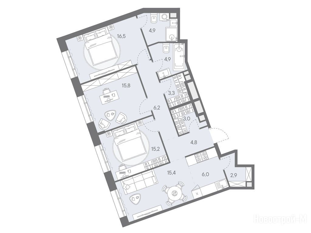
Описание 4-комн. квартиры

Застройщик
Срок ГК
4 квартал 2027 года
Стадия строительства
монтаж средних этажей
Общая площадь
98.90 м2
Жилая площадь
47.50 м2
Площадь кухни
21.40 м2
Этаж
30 / 30
Грузовой лифт
есть

Расположение 4-комн. квартиры

Локация
Станция МЦД
Дом
2
Адрес
Боровское ш., вл. 51, корп. 2, секция 1

Особенности

Продается четырехкомнатная квартира в новостройке ЖК «Родина Переделкино» по адресу Москва, ЗАО, Ново-Переделкино, Боровское ш., вл. 51, корп. 2. Общая площадь квартиры - 98.9 кв. м. Тип проекта, по которому построен дом — Монолитно-кирпичный, компания-застройщик — ГРУППА РОДИНА. Стоимость квартиры — 42 273 920 руб. Способы оплаты можно уточнить у продавца. Срок сдачи — 4 квартал 2027. Более подробная информация по телефону.
Инфоцентр новостроек
Инфоцентр новостроек
+7 (499) 705-91-41
Время работы 9:00 — 21:00

Похожие квартиры в ЖК «Родина Переделкино»

30 этаж
из 30 4 квартал 2027
Москва, ЗАО
Новопеределкино
3 мин.
2
Корпус
нет данных
Отделка
2.80 м
Потолки
ЖК «Родина Переделкино»
41 425 040
Посмотреть все спецпредложения
студия 24,10 м2 14 627 800
Этаж 2/30
Москва, ЖК «Родина Переделкино»
Новопеределкино
3 мин.
Строится
студия 24,70 м2 15 388 750
Этаж 3/30
Москва, ЖК «Родина Переделкино»
Новопеределкино
3 мин.
Строится
студия 25,00 м2 15 833 820
Этаж 13/30
Москва, ЖК «Родина Переделкино»
Новопеределкино
3 мин.
Строится
Этаж 22/30
Москва, ЖК «Родина Переделкино»
Новопеределкино
3 мин.
Строится
Посмотреть 10 квартир в ЖК «Родина Переделкино»
1-комн. квартира 33,60 м2 18 294 660
Этаж 6/30
Москва, ЖК «Родина Переделкино»
Новопеределкино
3 мин.
Строится
1-комн. квартира 37,50 м2 19 622 290
Этаж 3/30
Москва, ЖК «Родина Переделкино»
Новопеределкино
3 мин.
Строится
1-комн. квартира 37,70 м2 19 651 400
Этаж 6/30
Москва, ЖК «Родина Переделкино»
Новопеределкино
3 мин.
Строится
1-комн. квартира 38,00 м2 20 050 100
Этаж 13/30
Москва, ЖК «Родина Переделкино»
Новопеределкино
3 мин.
Строится
Посмотреть 14 квартир в ЖК «Родина Переделкино»
2-комн. квартира 45,40 м2 21 633 910
Этаж 6/30
Москва, ЖК «Родина Переделкино»
Новопеределкино
3 мин.
Строится
2-комн. квартира 45,60 м2 21 731 170
Этаж 6/30
Москва, ЖК «Родина Переделкино»
Новопеределкино
3 мин.
Строится
2-комн. квартира 45,80 м2 21 852 440
Этаж 15/30
Москва, ЖК «Родина Переделкино»
Новопеределкино
3 мин.
Строится
2-комн. квартира 46,20 м2 23 164 160
Этаж 22/30
Москва, ЖК «Родина Переделкино»
Новопеределкино
3 мин.
Строится
Посмотреть 23 квартиры в ЖК «Родина Переделкино»
3-комн. квартира 63,30 м2 28 318 100
Этаж 2/30
Москва, ЖК «Родина Переделкино»
Новопеределкино
3 мин.
Строится
3-комн. квартира 63,80 м2 28 610 700
Этаж 6/30
Москва, ЖК «Родина Переделкино»
Новопеределкино
3 мин.
Строится
3-комн. квартира 64,10 м2 29 168 410
Этаж 18/30
Москва, ЖК «Родина Переделкино»
Новопеределкино
3 мин.
Строится
3-комн. квартира 64,20 м2 29 583 630
Этаж 10/30
Москва, ЖК «Родина Переделкино»
Новопеределкино
3 мин.
Строится
Посмотреть 42 квартиры в ЖК «Родина Переделкино»
Этаж 3/30
Москва, ЖК «Родина Переделкино»
Новопеределкино
3 мин.
Строится
4-комн. квартира 82,10 м2 34 054 128
Этаж 28/30
Москва, ЖК «Родина Переделкино»
Новопеределкино
3 мин.
Строится
Этаж 30/30
Москва, ЖК «Родина Переделкино»
Новопеределкино
3 мин.
Строится
4-комн. квартира 82,70 м2 34 396 110
Этаж 8/30
Москва, ЖК «Родина Переделкино»
Новопеределкино
3 мин.
Строится
Посмотреть 33 квартиры в ЖК «Родина Переделкино»

Скидки и спецпредложения от застройщиков

ЖК «Родина Переделкино» на карте

Выгодные предложения на новостройки

Отзывы о ЖК «Родина Переделкино»

Самый полезный отзыв
ЕЛ
07 ноября 2024
Оценка:
Транспортная доступность
Экология
Готовность
Давно хотели переехать в Москву, думали об этом целый год и ни кому не говорили, что бы не сглазить. И вот хотим вложится в квартиру в Переделкино. О проекте узнали с рекламного забора, когда рядом приезжали. Какой то кибер спортивный дом обещали, но я не вникала сильно. Главное, что рядом есть все необходимое для детей, я на это смотрю в основном. А, что касается того, что не в центре ничего страшного - метро прям за калиткой считай будет. Ждем старта продаж чтобы прицениттся.
Ответить
Полезный отзыв?
Самый новый отзыв
В
15 сентября 2025
Оценка:
Транспортная доступность
Экология
Планировки
Способы покупки
Двор, окружение
Готовность
Взяли квартиру в “Переделкино” на старте продаж, пч условия по ипотеке были очень выгодными, плюс большой выбор планировок. Район нам понравился своей экологией: много зелёных зон, рядом лес, воздух чистый. Двор планируется просторный с детскими и спортивными площадками. Пока, конечно, стройка не закончена, и хочется быстрее увидеть готовые дома, но процесс идёт довольно активно.
Ответить
Полезный отзыв?
Добавьте отзыв, заполнив личные данные, или сначала войдите на сайт, тогда информация будет автоматически взята из личного профиля.
Оценка*