Рейтинг@Mail.ru
Переверните экран
Новостройки Квартиры Ипотека Новостройки Москвы Новостройки Подмосковья Новостройки Новой Москвы Готовые новостройки Новостройки на карте Акции от застройщиков Коммерческие помещения Продавцы и застройщики Панорамы новостроек Видеообзор новостроек Экспертиза новостроек Экология Москвы и Подмосковья Студии 1-комнатные 2-комнатные 3-комнатные Квартиры на карте Ипотечный калькулятор Семейная ипотека Военная ипотека Банки и программы Медиа Новости недвижимости Мнение эксперта Аналитика рынка Покупателю Экспертиза новостроек Эксперты и авторы О проекте Контакты Реклама на сайте Vk Youtube Telegram Дзен Машиноместа Апартаменты #траншевая ипотека #рассрочка IT-ипотека Квартиры со скидками до 40% Видео 360° новостроек Субсидированная застройщиком Rutube Поиск дома в Москве Программа реновации в Москве Новостройки премиум-класса Новостройки бизнес-класса Рассрочка Траншевая ипотека ГАЛС Дома и коттеджи Бизнес-центры Бизнес-центры в Москве Бизнес-центры рядом с метро Строящиеся бизнес-центры Бизнес-центры класса A Бизнес-центры класса B ЛСР
4-комн. квартира, 184.50 м2, 27 этаж
Срок сдачи 4 квартал 2025 года
136 823 439 
741 590 2
обновлено 5 декабря

Описание 4-комн. квартиры

Застройщик
СЗ «ЗИЛ-ЮГ»
Срок ГК
4 квартал 2025 года
Стадия строительства
отделка фасада
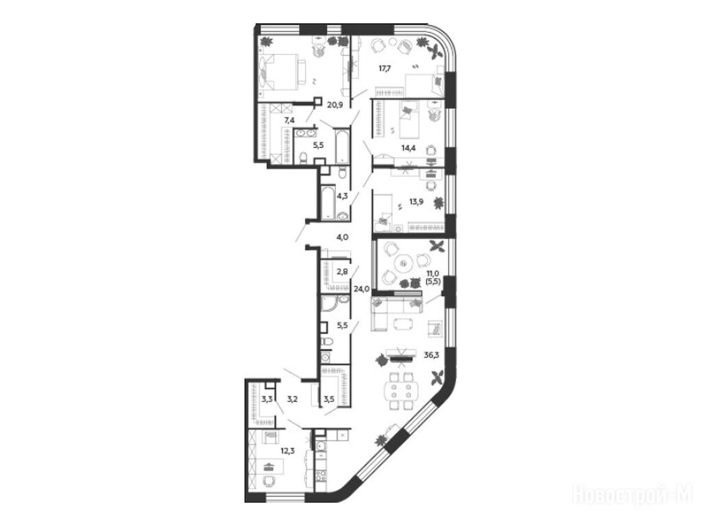
Общая площадь
184.50 м2
Жилая площадь
64.80 м2
Площадь кухни
36.30 м2
Этаж
27 / 27
Грузовой лифт
есть

Расположение 4-комн. квартиры

Локация
Метро
Станция МЦК
ЗИЛ
16 мин.
Дом
4.1 (оч. 2)
Адрес
ул. Автозаводская, вл. 23, секция 1

Способы покупки

Особенности

Продается четырехкомнатная квартира в новостройке Жилой квартал Shagal (Шагал) по адресу Москва, ЮАО, Даниловский, ул. Автозаводская, вл. 23. Общая площадь квартиры - 184.5 кв. м. Тип проекта, по которому построен дом — Монолит,Монолитно-кирпичный, компания-застройщик — СЗ «ЗИЛ-ЮГ», Группа «Эталон». Стоимость квартиры — 136 823 439 руб. Способы оплаты можно уточнить у продавца. Срок сдачи — 4 квартал 2025. Более подробная информация по телефону.

Правовые документы

Инфоцентр новостроек
Инфоцентр новостроек
+7 (499) 705-91-41
Время работы 9:00 — 21:00
Посмотреть все спецпредложения
студия 23,00 м2 19 472 918
Этаж 16/19
Москва, Жилой квартал Shagal (Шагал)
ЗИЛ
13 мин.
Строится
студия 23,10 м2 19 651 671
Этаж 17/19
Москва, Жилой квартал Shagal (Шагал)
ЗИЛ
13 мин.
Строится
студия 23,80 м2 19 132 078
Этаж 10/19
Москва, Жилой квартал Shagal (Шагал)
ЗИЛ
13 мин.
Строится
Этаж 12/19
Москва, Жилой квартал Shagal (Шагал)
ЗИЛ
13 мин.
Строится
Посмотреть 11 квартир в Жилом квартале Shagal
1-комн. квартира 28,20 м2 18 757 542
Этаж 7/15
Москва, Жилой квартал Shagal (Шагал)
ЗИЛ
13 мин.
Строится
Этаж 9/9
Москва, Жилой квартал Shagal (Шагал)
ЗИЛ
13 мин.
Строится
Этаж 11/13
Москва, Жилой квартал Shagal (Шагал)
ЗИЛ
13 мин.
Строится
1-комн. квартира 34,80 м2 22 357 088
Этаж 2/9
Москва, Жилой квартал Shagal (Шагал)
ЗИЛ
13 мин.
Строится
Посмотреть 112 квартир в Жилом квартале Shagal
2-комн. квартира 51,30 м2 32 460 235
Этаж 8/9
Москва, Жилой квартал Shagal (Шагал)
ЗИЛ
13 мин.
Строится
2-комн. квартира 53,00 м2 33 627 003
Этаж 10/13
Москва, Жилой квартал Shagal (Шагал)
ЗИЛ
13 мин.
Строится
2-комн. квартира 53,10 м2 34 290 217
Этаж 15/26
Москва, Жилой квартал Shagal (Шагал)
ЗИЛ
13 мин.
Строится
2-комн. квартира 53,40 м2 33 806 768
Этаж 18/19
Москва, Жилой квартал Shagal (Шагал)
ЗИЛ
13 мин.
Строится
Посмотреть 122 квартиры в Жилом квартале Shagal
Этаж 13/15
Москва, Жилой квартал Shagal (Шагал)
ЗИЛ
13 мин.
Строится
3-комн. квартира 66,90 м2 36 957 272
Этаж 5/5
Москва, Жилой квартал Shagal (Шагал)
ЗИЛ
13 мин.
Строится
3-комн. квартира 70,10 м2 40 630 664
Этаж 5/5
Москва, Жилой квартал Shagal (Шагал)
ЗИЛ
13 мин.
Строится
3-комн. квартира 70,30 м2 39 955 780
Этаж 4/21
Москва, Жилой квартал Shagal (Шагал)
ЗИЛ
13 мин.
Строится
Посмотреть 96 квартир в Жилом квартале Shagal
4-комн. квартира 101,20 м2 56 240 143
Этаж 18/19
Москва, Жилой квартал Shagal (Шагал)
ЗИЛ
13 мин.
Строится
4-комн. квартира 114,00 м2 60 653 164
Этаж 19/19
Москва, Жилой квартал Shagal (Шагал)
ЗИЛ
13 мин.
Строится
4-комн. квартира 115,10 м2 51 572 844
Этаж 3/6
Москва, Жилой квартал Shagal (Шагал)
ЗИЛ
13 мин.
Строится
4-комн. квартира 115,40 м2 54 138 152
Этаж 8/9
Москва, Жилой квартал Shagal (Шагал)
ЗИЛ
13 мин.
Строится
Посмотреть 27 квартир в Жилом квартале Shagal

Скидки и спецпредложения от застройщиков

Жилой квартал Shagal (Шагал) на карте

Выгодные предложения на новостройки

Отзывы о Жилом квартале Shagal

Самый полезный отзыв
К
18 июля 2019
Оценка:
Транспортная доступность
Расположение
Крайне мало известно о проекте, но думаю, он получится неплохим, тем более что расположение отличное. Считаю, что давно пора застроить эту территорию, а то там будто мертвая зона.
Ответить
Полезный отзыв?
Самый новый отзыв
НЛ
26 мая
Оценка:
Транспортная доступность
Социальная инфраструктура
Расположение
Приобрел апартаменты в Shagal, ориентируясь на развитие бывшего ЗИЛ. Локация в 9 км от центра и близость к ТТК делают район привлекательным для аренды. Рассрочка с 10% взносом позволила сохранить капитал, а цена за м² соответствует уровню бизнес-класса. Если пешеходный мост до «Нагатинской» реализуют, транспортная доступность усилит позиции комплекса.
Ответить
Полезный отзыв?
Добавьте отзыв, заполнив личные данные, или сначала войдите на сайт, тогда информация будет автоматически взята из личного профиля.
Оценка*