Рейтинг@Mail.ru
Переверните экран
Новостройки Квартиры Ипотека Новостройки Москвы Новостройки Подмосковья Новостройки Новой Москвы Готовые новостройки Новостройки на карте Акции от застройщиков Коммерческие помещения Продавцы и застройщики Панорамы новостроек Видеообзор новостроек Экспертиза новостроек Экология Москвы и Подмосковья Студии 1-комнатные 2-комнатные 3-комнатные Квартиры на карте Ипотечный калькулятор Семейная ипотека Военная ипотека Банки и программы Медиа Новости недвижимости Мнение эксперта Аналитика рынка Покупателю Экспертиза новостроек Эксперты и авторы О проекте Контакты Реклама на сайте Vk Youtube Telegram Дзен Машиноместа Апартаменты #траншевая ипотека #рассрочка ИТ-ипотека Квартиры со скидками до 40% Видео 360° новостроек Субсидированная застройщиком Rutube Поиск дома в Москве Программа реновации в Москве Новостройки премиум-класса Новостройки бизнес-класса Рассрочка Траншевая ипотека Дома и коттеджи Коттеджные поселки в Новой Москве Готовые коттеджные поселки Строящиеся коттеджные поселки Коттеджные поселки в лесу Коттеджные поселки у водоема Коттеджные поселки в ипотеку Бизнес-центры Коттеджи Ипотека со ставкой 0,1%
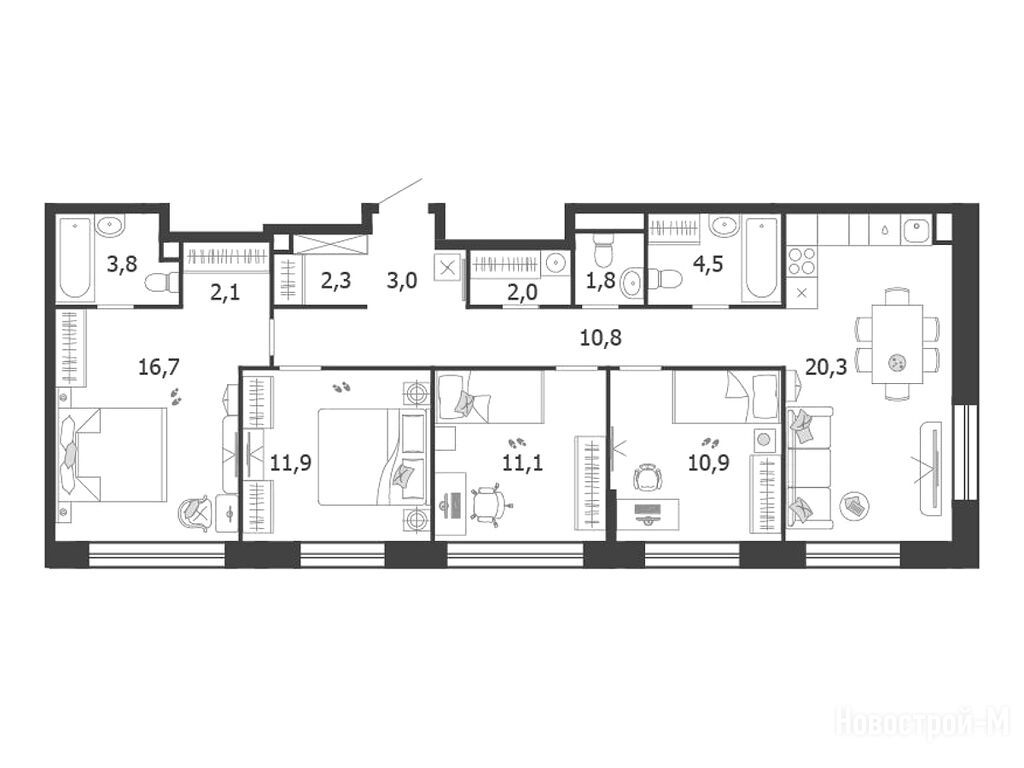
4-комн. квартира, 101.20 м2, 18 этаж
Срок сдачи 4 квартал 2026 года
46 718 521 
461 645 2
обновлено 13 мая

Описание 4-комн. квартиры

Застройщик
Группа «Эталон» СЗ «ЗИЛ-ЮГ»
Срок ГК
4 квартал 2026 года
Стадия строительства
отделка фасада
Тип проекта
Общая площадь
101.20 м2
Этаж
18 / 19
Грузовой лифт
есть

Расположение 4-комн. квартиры

Локация
Метро
Станция МЦК
ЗИЛ
16 мин.
Дом
8 (оч. 3 этап 5)
Адрес
ул. Автозаводская, вл. 23, корп. 8, оч. 3 этап 5, секция 1

Способы покупки

Особенности

Продается четырехкомнатная квартира в новостройке Жилой квартал «Шагал» по адресу Москва, ЮАО, Даниловский, ул. Автозаводская, вл. 23, корп. 8, оч. 3 этап 5. Общая площадь квартиры - 101.2 кв. м. Тип проекта, по которому построен дом — Монолит,Монолитно-кирпичный, компания-застройщик — СЗ «ЗИЛ-ЮГ», Группа «Эталон». Стоимость квартиры — 46 718 521 руб. Способы оплаты можно уточнить у продавца. Срок сдачи — 4 квартал 2026. Более подробная информация по телефону.

Правовые документы

Инфоцентр новостроек
Инфоцентр новостроек
+7 (499) 705-91-41
Время работы 9:00 — 21:00

Похожие квартиры в Жилом квартале «Шагал»

14 этаж
из 19 4 квартал 2026
Москва, ЮАО
ЗИЛ
13 мин.
8 (оч. 3 этап 5)
Корпус
нет данных
Отделка
2.87 м
Потолки
Жилой квартал «Шагал»
45 401 183
СберБанк, Металлинвестбанк, Газпромбанк, ДОМ.РФ, ВТБ, Московский Кредитный Банк
3.50%
Ставка
20.00%
Первый взнос
от 203 872 /мес.
Все варианты
15 этаж
из 19 4 квартал 2026
Москва, ЮАО
ЗИЛ
13 мин.
8 (оч. 3 этап 5)
Корпус
нет данных
Отделка
2.87 м
Потолки
Жилой квартал «Шагал»
45 730 517
СберБанк, Металлинвестбанк, Газпромбанк, ДОМ.РФ, ВТБ, Московский Кредитный Банк
3.50%
Ставка
20.00%
Первый взнос
от 205 350 /мес.
Все варианты
19 этаж
из 19 4 квартал 2026
Москва, ЮАО
ЗИЛ
13 мин.
8 (оч. 3 этап 5)
Корпус
нет данных
Отделка
2.87 м
Потолки
Жилой квартал «Шагал»
48 798 508
СберБанк, Металлинвестбанк, Газпромбанк, ДОМ.РФ, ВТБ, Московский Кредитный Банк
3.50%
Ставка
20.00%
Первый взнос
от 219 127 /мес.
Все варианты
студия 23,10 м2 17 520 816
Этаж 11/19
Москва, Жилой квартал «Шагал»
ЗИЛ
13 мин.
Строится
студия 23,80 м2 17 019 215
Этаж 12/19
Москва, Жилой квартал «Шагал»
ЗИЛ
13 мин.
Строится
студия 24,70 м2 22 459 555
Этаж 12/19
Москва, Жилой квартал «Шагал»
ЗИЛ
13 мин.
Строится
студия 24,80 м2 23 433 004
Этаж 10/19
Москва, Жилой квартал «Шагал»
ЗИЛ
13 мин.
Строится
Посмотреть 9 квартир в Жилом квартале «Шагал»
1-комн. квартира 28,20 м2 24 096 093
Этаж 12/26
Москва, Жилой квартал «Шагал»
ЗИЛ
13 мин.
Строится
1-комн. квартира 36,90 м2 24 835 090
Этаж 2/5
Москва, Жилой квартал «Шагал»
ЗИЛ
13 мин.
Строится
1-комн. квартира 37,10 м2 27 786 630
Этаж 16/26
Москва, Жилой квартал «Шагал»
ЗИЛ
13 мин.
Строится
1-комн. квартира 37,20 м2 28 986 211
Этаж 24/26
Москва, Жилой квартал «Шагал»
ЗИЛ
13 мин.
Строится
Посмотреть 71 квартира в Жилом квартале «Шагал»
2-комн. квартира 47,30 м2 28 944 494
Этаж 4/11
Москва, Жилой квартал «Шагал»
ЗИЛ
13 мин.
Строится
2-комн. квартира 48,50 м2 27 435 738
Этаж 4/11
Москва, Жилой квартал «Шагал»
ЗИЛ
13 мин.
Строится
2-комн. квартира 51,30 м2 27 359 632
Этаж 9/9
Москва, Жилой квартал «Шагал»
ЗИЛ
13 мин.
Строится
2-комн. квартира 53,10 м2 36 194 372
Этаж 2/7
Москва, Жилой квартал «Шагал»
ЗИЛ
13 мин.
Строится
Посмотреть 101 квартира в Жилом квартале «Шагал»
3-комн. квартира 66,80 м2 42 757 640
Этаж 13/15
Москва, Жилой квартал «Шагал»
ЗИЛ
13 мин.
Строится
3-комн. квартира 70,10 м2 43 558 379
Этаж 5/5
Москва, Жилой квартал «Шагал»
ЗИЛ
13 мин.
Строится
3-комн. квартира 70,30 м2 42 287 468
Этаж 4/21
Москва, Жилой квартал «Шагал»
ЗИЛ
13 мин.
Строится
3-комн. квартира 71,40 м2 34 081 043
Этаж 19/19
Москва, Жилой квартал «Шагал»
ЗИЛ
13 мин.
Строится
Посмотреть 64 квартиры в Жилом квартале «Шагал»
4-комн. квартира 101,20 м2 45 401 183
Этаж 14/19
Москва, Жилой квартал «Шагал»
ЗИЛ
13 мин.
Строится
4-комн. квартира 113,50 м2 48 378 722
Этаж 16/19
Москва, Жилой квартал «Шагал»
ЗИЛ
13 мин.
Строится
4-комн. квартира 114,00 м2 69 643 709
Этаж 19/19
Москва, Жилой квартал «Шагал»
ЗИЛ
13 мин.
Строится
4-комн. квартира 115,70 м2 51 008 051
Этаж 8/9
Москва, Жилой квартал «Шагал»
ЗИЛ
13 мин.
Сдан
Посмотреть 19 квартир в Жилом квартале «Шагал»
5-комн. квартира 157,40 м2 65 081 356
Этаж 8/27
Москва, Жилой квартал «Шагал»
ЗИЛ
13 мин.
Сдан

Скидки и спецпредложения от застройщиков

Жилой квартал «Шагал» на карте

Выгодные предложения на новостройки

Отзывы о Жилом квартале «Шагал»

Самый полезный отзыв
К
18 июля 2019
Оценка:
Достоинства
Транспортная доступность
Расположение
Крайне мало известно о проекте, но думаю, он получится неплохим, тем более что расположение отличное. Считаю, что давно пора застроить эту территорию, а то там будто мертвая зона.
Ответить
Самый новый отзыв
Н
14 марта
Оценка:
Достоинства
Транспортная доступность
Недостатки
Социальная инфраструктура
Готовность
Скорость строительства
Внешний вид фасада
Уже просто накипело, какой-то ужас, я реальный покупатель 2очередь дом 7к3: 1. Сдали квартиру с задержкой 2. Допустили ошибку в егрн, исправлять не могут, пришлось самому, при правках не с первого раза сделали техплан, потрачено почти 2 месяца, чтобы привести все в порядок 3. Не могут устранить замечания по приемке уже почти 6 месяцев!!! 4. Работа горячей линии просто треш, обещают перезвонить из ответственного подразделения - Никто не перезванивает Уже сюда пишу, свяжитесь со мной!!! Предоставьте график, и устраните уже замечания наконец-то, почему вы так Относитесь к своим клиентам? И не надо тут писать что нет графика, не держите людей за совсем уж дураков.
Ответить

Оставить отзыв

Добавьте отзыв, заполнив личные данные, или сначала войдите на сайт, тогда информация будет автоматически взята из личного профиля.
Оценка*