Рейтинг@Mail.ru
Переверните экран
Новостройки Квартиры Ипотека Новостройки Москвы Новостройки Подмосковья Новостройки Новой Москвы Готовые новостройки Новостройки на карте Акции от застройщиков Коммерческие помещения Продавцы и застройщики Панорамы новостроек Видеообзор новостроек Экспертиза новостроек Экология Москвы и Подмосковья Студии 1-комнатные 2-комнатные 3-комнатные Квартиры на карте Ипотечный калькулятор Семейная ипотека Военная ипотека Банки и программы Медиа Новости недвижимости Мнение эксперта Аналитика рынка Покупателю Экспертиза новостроек Эксперты и авторы О проекте Контакты Реклама на сайте Vk Youtube Telegram Дзен Машиноместа Апартаменты #траншевая ипотека #рассрочка ИТ-ипотека Квартиры со скидками до 40% Видео 360° новостроек Субсидированная застройщиком Rutube Поиск дома в Москве Программа реновации в Москве Новостройки премиум-класса Новостройки бизнес-класса Рассрочка Траншевая ипотека Дома и коттеджи Коттеджные поселки в Новой Москве Готовые коттеджные поселки Строящиеся коттеджные поселки Коттеджные поселки в лесу Коттеджные поселки у водоема Коттеджные поселки в ипотеку Бизнес-центры Коттеджи Ипотека со ставкой 0,1%
3-комн. помещение, 81.10 м2, 6 этаж
Сдан
30 007 000 
370 000 2
обновлено 3 мая

Описание 3-комн. помещения

Срок ГК
Дом сдан
Стадия строительства
выдача ключей + заселение
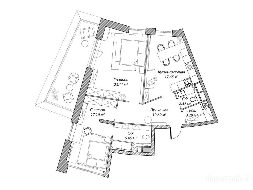
Общая площадь
81.10 м2
Площадь
40.27 м2
Площадь кухни
17.65 м2
Этаж
6 / 10
Отделка
нет
Грузовой лифт
есть

Расположение 3-комн. помещения

Локация
Станция МЦД
Дом
1
Адрес
ул. 5-я Мякининская, д. 20, секция А3

Особенности

Продается трехкомнатное помещение в новостройке Клубный дом «Рублево» по адресу Москва, ЗАО, Кунцево, ул. 5-я Мякининская, д. 20. Общая площадь помещения - 81.1 кв. м. Тип проекта, по которому построен дом — Монолитно-кирпичный, компания-застройщик — ООО СЗ «Универсаль». Стоимость помещения — 30 007 000 руб. Способы оплаты можно уточнить у продавца. Более подробная информация по телефону.
Инфоцентр новостроек
Инфоцентр новостроек
+7 (499) 705-91-41
Время работы 9:00 — 21:00
Этаж 9/10
Москва, Клубный дом «Рублево»
Мякинино
20 мин.
Сдан
Этаж 9/10
Москва, Клубный дом «Рублево»
Мякинино
20 мин.
Сдан
Этаж 5/10
Москва, Клубный дом «Рублево»
Мякинино
20 мин.
Сдан
Этаж 4/10
Москва, Клубный дом «Рублево»
Мякинино
20 мин.
Сдан
Посмотреть 18 помещений в Клубном доме «Рублево»
Этаж 9/10
Москва, Клубный дом «Рублево»
Мякинино
20 мин.
Сдан
Этаж 6/10
Москва, Клубный дом «Рублево»
Мякинино
20 мин.
Сдан
Этаж 5/10
Москва, Клубный дом «Рублево»
Мякинино
20 мин.
Сдан
2-комн. помещение 46,90 м2 15 100 000
Этаж 5/10
Москва, Клубный дом «Рублево»
Мякинино
20 мин.
Сдан
Посмотреть 48 помещений в Клубном доме «Рублево»
Этаж 9/10
Москва, Клубный дом «Рублево»
Мякинино
20 мин.
Сдан
Этаж 10/10
Москва, Клубный дом «Рублево»
Мякинино
20 мин.
Сдан
Этаж 5/10
Москва, Клубный дом «Рублево»
Мякинино
20 мин.
Сдан
Этаж 9/10
Москва, Клубный дом «Рублево»
Мякинино
20 мин.
Сдан
Посмотреть 18 помещений в Клубном доме «Рублево»
Этаж 2/10
Москва, Клубный дом «Рублево»
Мякинино
20 мин.
Сдан
Этаж 4/10
Москва, Клубный дом «Рублево»
Мякинино
20 мин.
Сдан
Этаж 3/10
Москва, Клубный дом «Рублево»
Мякинино
20 мин.
Сдан
Этаж 3/10
Москва, Клубный дом «Рублево»
Мякинино
20 мин.
Сдан
Посмотреть 12 помещений в Клубном доме «Рублево»
Этаж 8/10
Москва, Клубный дом «Рублево»
Мякинино
20 мин.
Сдан
Этаж 8/10
Москва, Клубный дом «Рублево»
Мякинино
20 мин.
Сдан
Этаж 7/10
Москва, Клубный дом «Рублево»
Мякинино
20 мин.
Сдан

Скидки и спецпредложения от застройщиков

Клубный дом «Рублево» на карте

Выгодные предложения на новостройки

Отзывы о Клубном доме «Рублево»

Самый полезный отзыв
АБ
28 июня 2021
Оценка:
Мне как закоренелому жителю Москвы осточертела одна проблема - когда едешь домой с работы, думаешь «ща припаркуюсь у дома и скорей к жене и ужину», приезжаешь и вот хр..начки! Нету мест! Я поседел уже, каждый день одно и то же. В общем пришло время взять новое жилье, и - боги! - узнаю что в этом комплексе, который выглядит отлично и расположен в двух шагах от Крокуса (а я работаю неподалёку), ещё и 250 парковочных мест на 160 с чем-то там квартир!Ну и конечно другие плюсы прилагаются: неплохие планировки, норм цена (дороговато конечно, а где нынче дёшево, цена/качество надо смотреть), виды из окон, обещанная инфраструктура. Думаю это отличный вариант!
Ответить
Самый новый отзыв
ВГ
30 мая 2025
Оценка:
Достоинства
Социальная инфраструктура
Двор, окружение
Расположение
Что меня покорило сразу - это вид из окон, очень красиво. Панорама открывается потрясающая. И то, что рядом торговый центр и “Ашан” – это огромный плюс. За покупками далеко ходить не придется, всё под рукой. Очень удобно
Ответить

Оставить отзыв

Добавьте отзыв, заполнив личные данные, или сначала войдите на сайт, тогда информация будет автоматически взята из личного профиля.
Оценка*