Рейтинг@Mail.ru
Переверните экран
Новостройки Квартиры Ипотека Новостройки Москвы Новостройки Подмосковья Новостройки Новой Москвы Готовые новостройки Новостройки на карте Акции от застройщиков Коммерческие помещения Продавцы и застройщики Панорамы новостроек Видеообзор новостроек Экспертиза новостроек Экология Москвы и Подмосковья Студии 1-комнатные 2-комнатные 3-комнатные Квартиры на карте Ипотечный калькулятор Семейная ипотека Военная ипотека Банки и программы Медиа Новости недвижимости Мнение эксперта Аналитика рынка Покупателю Экспертиза новостроек Эксперты и авторы О проекте Контакты Реклама на сайте Vk Youtube Telegram Дзен Машиноместа Апартаменты #траншевая ипотека #рассрочка ИТ-ипотека Квартиры со скидками до 40% Видео 360° новостроек Субсидированная застройщиком Rutube Поиск дома в Москве Программа реновации в Москве Новостройки премиум-класса Новостройки бизнес-класса Рассрочка Траншевая ипотека Дома и коттеджи Бизнес-центры Бизнес-центры в Москве Бизнес-центры рядом с метро Строящиеся бизнес-центры Бизнес-центры класса A Бизнес-центры класса B Ипотека со ставкой 0,1%
Данное предложение на 29.03.2026 неактуально. Пожалуйста, ознакомьтесь с другими похожими предложениями в Большая Академическая 85 .
2-комн. апартамент, 44.80 м2, 1 этаж
Срок сдачи 1 квартал 2026 года
15 051 456 
16 723 840
335 970 2
обновлено 17 января
31.8 31.4 44.8 34.1

Описание 2-комн. апартамента

Застройщик
ПИК СПЕЦИАЛИЗИРОВАННЫЙ ЗАСТРОЙЩИК ЛИХОБОРЫ
Срок ГК
1 квартал 2026 года
Тип проекта
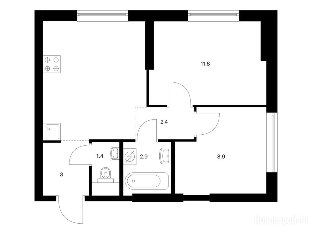
Общая площадь
44.80 м2
Этаж
1 / 24
Отделка
чистовая
Грузовой лифт
есть

Расположение 2-комн. апартамента

Локация
Станция МЦД
Станция МЦК
Дом
3.6
Адрес
Большая Академическая 85, корп. 3.6, секция 2

Особенности

Продается двухкомнатный апартамент в новостройке Большая Академическая 85 по адресу Москва, САО, Тимирязевский, Большая Академическая 85, корп. 3.6. Общая площадь апартамента - 44.8 кв. м. Тип проекта, по которому построен дом — Монолит,Панельный, компания-застройщик — СПЕЦИАЛИЗИРОВАННЫЙ ЗАСТРОЙЩИК ЛИХОБОРЫ, ПИК. Стоимость апартамента — 15 051 456 руб. Способы оплаты можно уточнить у продавца. Срок сдачи — 1 квартал 2026. Более подробная информация по телефону.

Правовые документы

1-комн. квартира 40,10 м2 19 340 230
Этаж 2/19
Москва, Большая Академическая 85
Окружная
11 мин.
Сдан
1-комн. квартира 41,80 м2 19 400 380
Этаж 2/19
Москва, Большая Академическая 85
Окружная
11 мин.
Сдан
2-комн. апартамент 44,80 м2 15 051 456
Этаж 1/24
Москва, Большая Академическая 85
Окружная
11 мин.
Строится
2-комн. квартира 46,30 м2 22 418 460
Этаж 15/19
Москва, Большая Академическая 85
Окружная
11 мин.
Сдан
2-комн. квартира 46,40 м2 20 442 633
Этаж 7/24 лоджия
Москва, Большая Академическая 85
Окружная
11 мин.
Сдан
2-комн. квартира 46,70 м2 20 660 873
Этаж 10/24 лоджия
Москва, Большая Академическая 85
Окружная
11 мин.
Сдан
Этаж 11/24 лоджия
Москва, Большая Академическая 85
Окружная
11 мин.
Сдан
2-комн. квартира 49,50 м2 21 408 750
Этаж 10/24 лоджия
Москва, Большая Академическая 85
Окружная
11 мин.
Сдан
Посмотреть 7 квартир в Большая Академическая 85
3-комн. квартира 85,60 м2 30 879 600
Этаж 11/24 лоджия
Москва, Большая Академическая 85
Окружная
11 мин.
Сдан

Скидки и спецпредложения от застройщиков

Большая Академическая 85 на карте

Выгодные предложения на новостройки

Отзывы о Большая Академическая 85

Самый полезный отзыв
А
23 октября 2020
Оценка:
Мы даже съездили посмотрели на стройку и на окружение. На мой взгляд очень перспективный жк. Тимирязевский район и инфраструктурно спланирован на 5 с плюсом и насыщен различными местами для проведения досуга. Транспортная доступность района на высоте- несколько станций метро в шаговой доступности. Социалкой район вообще не обижен - тут ее действительно максимум. И проектом предусмотрен свой детский сад, правда я думаю, что к сдаче первой очереди он еще ни будет введен в эксплуатацию, но тут на выручку как раз и придет районная инфра. Есть фитнес клуб совсем рядом, меньше 5 минут идти, но что мне больше всего тут понравилась, так это множество мест для культурного отдыха например- Ботанический сад, большой пруд, парк Тимирязева. Для семейного отдыха верёвочный парк (правда его я не видел, только читал), музеи, сады и конечно- Москвариум! Ну и до ВДНХ ехать минут 20 на машине. И тут ДШИ рядом- мы младшую давно в художку хотели отдать. Плюсов района действительно много- пальцы сотрешь пока все перечислишь)
Ответить
Самый новый отзыв
Я
24 июля 2025
Оценка:
Во многом потому что тут будет своя начальная школа (ну и по локации район нам подходил) мы сделали выбор в пользу Большой Академической.Так же для детей сделают большой плейхаб, что тоже неплохо. Наш дом пока еще строится, сдача через год, но судя по темпам строительства, по срокам все нормально.
Ответить

Оставить отзыв

Добавьте отзыв, заполнив личные данные, или сначала войдите на сайт, тогда информация будет автоматически взята из личного профиля.
Оценка*