Рейтинг@Mail.ru
Переверните экран
Новостройки Квартиры Ипотека Новостройки Москвы Новостройки Подмосковья Новостройки Новой Москвы Готовые новостройки Новостройки на карте Акции от застройщиков Коммерческие помещения Продавцы и застройщики Панорамы новостроек Видеообзор новостроек Экспертиза новостроек Экология Москвы и Подмосковья Студии 1-комнатные 2-комнатные 3-комнатные Квартиры на карте Ипотечный калькулятор Семейная ипотека Военная ипотека Банки и программы Медиа Новости недвижимости Мнение эксперта Аналитика рынка Покупателю Экспертиза новостроек Эксперты и авторы О проекте Контакты Реклама на сайте Vk Youtube Telegram Дзен Машиноместа Апартаменты #траншевая ипотека #рассрочка IT-ипотека Квартиры со скидками до 40% Видео 360° новостроек Субсидированная застройщиком Rutube Поиск дома в Москве Программа реновации в Москве Новостройки премиум-класса Новостройки бизнес-класса Рассрочка Траншевая ипотека ГАЛС Дома и коттеджи Бизнес-центры Бизнес-центры в Москве Бизнес-центры рядом с метро Строящиеся бизнес-центры Бизнес-центры класса A Бизнес-центры класса B ЛСР
Данное предложение на 18.12.2025 неактуально. Пожалуйста, ознакомьтесь с другими похожими предложениями в ЖК «Испанские кварталы».

Торговое помещение, 89.60 м 2

Москва, ТиНАО, Новомосковский АО, Сосенское С/П, бульвар Севильский, 3
206 080 /мес.
2 300 2
обновлено 27 октября
Узнать про коммерческие помещения

Описание

Номер лота
5
Срок ГК
Сдан
Стадия строительства
Тип здания
встроенное помещение
Этаж
1
Площадь
89.60 м2
Высота потолка
4.33
Вход в помещение
отдельный с улицы
Выделенная электрическая мощность
18 кВт
Водопровод
есть
Канализация
есть
Рекомендованное назначение
Торговое

Расположение

Поселок
ТиНАО
Район
Сосенское С/П
Шоссе
Калужское 5 км от МКАД
Дом
8.1 (ИК-2)
Адрес
бульвар Севильский, 3

Особенности

Сдаётся торговое помещение площадью 89.6 кв. м. в новостройке ЖК «Испанские кварталы» по адресу Москва, ТиНАО, Новомосковский АО, Сосенское С/П, бульвар Севильский, 3. Высота потолков 4.33 м. Выделенная электрическая мощность — 18 кВт. Отдельный вход с улицы. Стоимость аренды помещения — 206 080 руб. в месяц . Способы оплаты и более подробная информация по телефону.

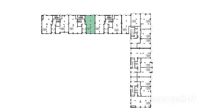
Планировка

Корпус 8.1 (ИК-2) (Сдан)
Где арендовать помещение
ООО «А101»
ООО «А101»
09:00 — 21:00
Заказать обратный звонок
Задать вопрос
Выбирайте квартиру в ЖК «Испанские кварталы» по ценам от застройщика ООО «А101».
Посмотреть все спецпредложения

Еще помещения в ЖК «Испанские кварталы»

Аренда
Дом сдан
Москва, Новомосковский АО
Прокшино
15 мин.
4.99
Высота потолка
Паркинг
Окна
отдельный с улицы
Вход
6.1 (ИК-2)
Корпус
ЖК «Испанские кварталы»
Аренда
Дом сдан
Москва, Новомосковский АО
Прокшино
15 мин.
4.94
Высота потолка
есть
Паркинг
витринные
Окна
отдельный с улицы
Вход
5.1 (ИК-2)
Корпус
ЖК «Испанские кварталы»
Аренда
Дом сдан
Москва, Новомосковский АО
Прокшино
15 мин.
4.33
Высота потолка
Паркинг
Окна
отдельный с улицы
Вход
8.1 (ИК-2)
Корпус
ЖК «Испанские кварталы»
Аренда
Дом сдан
Москва, Новомосковский АО
Прокшино
15 мин.
4.26
Высота потолка
Паркинг
Окна
отдельный с улицы
Вход
9.3 (ИК-2)
Корпус
ЖК «Испанские кварталы»

Скидки и спецпредложения от застройщиков

ЖК «Испанские кварталы» на карте

Выгодные предложения на новостройки