Рейтинг@Mail.ru
Переверните экран
Новостройки Квартиры Ипотека Новостройки Москвы Новостройки Подмосковья Новостройки Новой Москвы Готовые новостройки Новостройки на карте Акции от застройщиков Коммерческие помещения Продавцы и застройщики Панорамы новостроек Видеообзор новостроек Экспертиза новостроек Экология Москвы и Подмосковья Студии 1-комнатные 2-комнатные 3-комнатные Квартиры на карте Ипотечный калькулятор Семейная ипотека Военная ипотека Банки и программы Медиа Новости недвижимости Мнение эксперта Аналитика рынка Покупателю Экспертиза новостроек Эксперты и авторы О проекте Контакты Реклама на сайте Vk Youtube Telegram Дзен Машиноместа Апартаменты #траншевая ипотека #рассрочка ИТ-ипотека Квартиры со скидками до 40% Видео 360° новостроек Субсидированная застройщиком Rutube Поиск дома в Москве Программа реновации в Москве Новостройки премиум-класса Новостройки бизнес-класса Рассрочка Траншевая ипотека Дома и коттеджи Бизнес-центры Бизнес-центры в Москве Бизнес-центры рядом с метро Строящиеся бизнес-центры Бизнес-центры класса A Бизнес-центры класса B Ипотека со ставкой 0,1%

Помещение свободного назначения, 75.40 м 2

Московская область, Красногорск городской округ, Ильинское С/П, Глухово деревня, дер. Глухово, ЖК «Новая Рига»
109 330 /мес.
1 450 2
обновлено 04 апреля

Условия сделки

Арендные каникулы
Есть
Залог
Есть

Описание

Номер лота
Новостройка
Тип здания
встроенное помещение
Этаж
1
Площадь
75.40 м2
Высота потолка
3.00
Окна
витринные с видом во двор и на улицу
Вход в помещение
отдельный с улицы
Выделенная электрическая мощность
15.1 кВт/кв.м
Отделка
без отделки
Вентиляция
есть
Пожарная сигнализация
есть
Водопровод
есть
Канализация
есть

Расположение

Поселок
Красногорск городской округ
Поселок
Глухово деревня
Метро
Станция МЦК
Павшино
15 мин.
Красногорская
40 мин.
Пенягино
22 мин.
Шоссе
Новорижское 11 км от МКАД
Дом
ЖК «Новая Рига»
Адрес
дер. Глухово, ЖК «Новая Рига»

Особенности

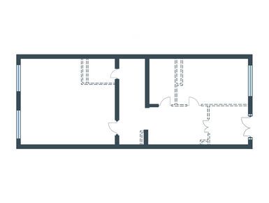
Сдаётся помещение свободного назначения площадью 75.4 кв. м. в новостройке ЖК «Новая Рига» по адресу Московская область, Красногорск городской округ, Ильинское С/П, Глухово деревня, дер. Глухово, ЖК «Новая Рига». Без отделки. Витринное остекление с видом во двор и на улицу. Высота потолков 3.00 м. Отдельный вход с улицы. Стоимость аренды помещения — 109 330 руб. в месяц . Предусмотрены арендные каникулы. Способы оплаты и более подробная информация по телефону.

Планировка

Посмотреть все спецпредложения

Еще помещения в ЖК «Новая Рига»

Аренда
Московская область, Ильинское С/П
Строгино
22 мин.
0.00
Высота потолка
Паркинг
Окна
отдельный с улицы
Вход
Корпус
ЖК «Новая Рига»
Аренда
Московская область, Ильинское С/П
Строгино
22 мин.
0.00
Высота потолка
Паркинг
Окна
отдельный со двора
Вход
Корпус
ЖК «Новая Рига»
Аренда
Московская область, Ильинское С/П
Строгино
22 мин.
0.00
Высота потолка
Паркинг
Окна
отдельный со двора
Вход
Корпус
ЖК «Новая Рига»
Аренда
Московская область, Ильинское С/П
Строгино
22 мин.
3.00
Высота потолка
Паркинг
витринные
Окна
отдельный с улицы
Вход
Корпус
ЖК «Новая Рига»

Скидки и спецпредложения от застройщиков

ЖК «Новая Рига» на карте

Выгодные предложения на новостройки