Рейтинг@Mail.ru
Переверните экран
Новостройки Квартиры Ипотека Новостройки Москвы Новостройки Подмосковья Новостройки Новой Москвы Готовые новостройки Новостройки на карте Акции от застройщиков Коммерческие помещения Продавцы и застройщики Панорамы новостроек Видеообзор новостроек Экспертиза новостроек Экология Москвы и Подмосковья Студии 1-комнатные 2-комнатные 3-комнатные Квартиры на карте Ипотечный калькулятор Семейная ипотека Военная ипотека Банки и программы Медиа Новости недвижимости Мнение эксперта Аналитика рынка Покупателю Экспертиза новостроек Эксперты и авторы О проекте Контакты Реклама на сайте Vk Youtube Telegram Дзен Машиноместа Апартаменты #траншевая ипотека #рассрочка ИТ-ипотека Квартиры со скидками до 40% Видео 360° новостроек Субсидированная застройщиком Rutube Поиск дома в Москве Программа реновации в Москве Новостройки премиум-класса Новостройки бизнес-класса Рассрочка Траншевая ипотека Дома и коттеджи Бизнес-центры Бизнес-центры в Москве Бизнес-центры рядом с метро Строящиеся бизнес-центры Бизнес-центры класса A Бизнес-центры класса B Ипотека со ставкой 0,1%

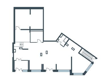
Помещение свободного назначения, 115.30 м 2

Москва, ТиНАО, Новомосковский АО, Сосенское С/П, Столбово деревня, ул. Василия Ощепкова, корп. 1
28 825 000
250 000 2
обновлено 01 апреля

Описание

Номер лота
8/1
Новостройка
Срок ГК
Сдан
Стадия строительства
Тип здания
встроенное помещение
Этаж
1
Площадь
115.30 м2
Высота потолка
4.00
Окна
витринные с видом на улицу
Вход в помещение
отдельный с улицы
Выделенная электрическая мощность
25.0 кВт/кв.м
Отделка
без отделки
Вентиляция
есть
Водопровод
есть
Канализация
есть

Расположение

Поселок
ТиНАО
Район
Новомосковский АО
Район
Столбово деревня
Станция МЦК
Бутово
22 мин.
Шоссе
Калужское 5 км от МКАД
Дом
1
Адрес
ул. Василия Ощепкова, корп. 1 , секция 6

Особенности

Продаётся помещение свободного назначения площадью 115.3 кв. м. в новостройке ЖК «Москвичка» по адресу Москва, ТиНАО, Новомосковский АО, Сосенское С/П, Столбово деревня, ул. Василия Ощепкова, корп. 1. Без отделки. Витринное остекление с видом на улицу. Высота потолков 4.00 м. Отдельный вход с улицы. Стоимость помещения — 28 825 000 руб. Способы оплаты и более подробная информация по телефону.

Планировка

Корпус 1, секция 6 (Сдан)
Посмотреть все спецпредложения

Еще помещения в ЖК «Москвичка»

Продажа
Дом сдан
Москва, Сосенское С/П
Новомосковская (Коммунарка)
11 мин.
3.94
Высота потолка
Паркинг
витринные
Окна
отдельный с улицы
Вход
1
Корпус
ЖК «Москвичка»
Продажа
Дом сдан
Москва, Сосенское С/П
Новомосковская (Коммунарка)
11 мин.
3.94
Высота потолка
Паркинг
витринные
Окна
отдельный с улицы
Вход
1
Корпус
ЖК «Москвичка»
Продажа
Дом сдан
Москва, Сосенское С/П
Новомосковская (Коммунарка)
11 мин.
3.94
Высота потолка
Паркинг
витринные
Окна
отдельный с улицы
Вход
1
Корпус
ЖК «Москвичка»
Продажа
Дом сдан
Москва, Сосенское С/П
Новомосковская (Коммунарка)
11 мин.
3.94
Высота потолка
Паркинг
Окна
отдельный с улицы
Вход
1
Корпус
ЖК «Москвичка»

Скидки и спецпредложения от застройщиков

ЖК «Москвичка» на карте

Выгодные предложения на новостройки