Рейтинг@Mail.ru
Переверните экран
Новостройки Квартиры Ипотека Новостройки Москвы Новостройки Подмосковья Новостройки Новой Москвы Готовые новостройки Новостройки на карте Акции от застройщиков Коммерческие помещения Продавцы и застройщики Панорамы новостроек Видеообзор новостроек Экспертиза новостроек Экология Москвы и Подмосковья Студии 1-комнатные 2-комнатные 3-комнатные Квартиры на карте Ипотечный калькулятор Семейная ипотека Военная ипотека Банки и программы Медиа Новости недвижимости Мнение эксперта Аналитика рынка Покупателю Экспертиза новостроек Эксперты и авторы О проекте Контакты Реклама на сайте Vk Youtube Telegram Дзен Машиноместа Апартаменты #траншевая ипотека #рассрочка IT-ипотека Квартиры со скидками до 40% Видео 360° новостроек Субсидированная застройщиком Rutube Поиск дома в Москве Программа реновации в Москве Новостройки премиум-класса Новостройки бизнес-класса Рассрочка Траншевая ипотека ГАЛС Дома и коттеджи Бизнес-центры Бизнес-центры в Москве Бизнес-центры рядом с метро Строящиеся бизнес-центры Бизнес-центры класса A Бизнес-центры класса B ЛСР

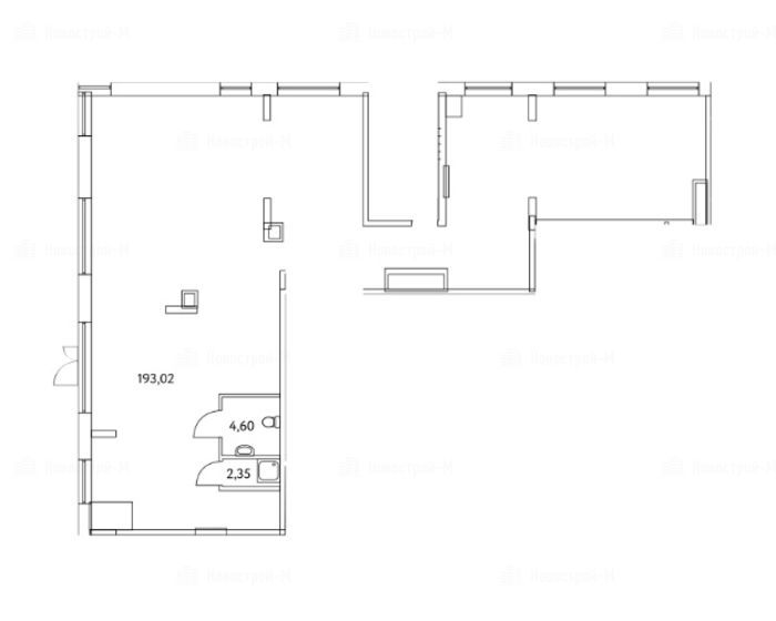
Помещение свободного назначения, 200.00 м 2

Москва, СВАО, Свиблово, Сельскохозяйственная, вл. 34/1, корп. 3
350 000 /мес.
1 750 2
обновлено 14 декабря

Описание

Номер лота
318
Срок ГК
Сдан
Стадия строительства
Тип здания
встроенное помещение
Площадь
200.00 м2
Высота потолка
5.55
Окна
витринные с видом во двор
Вход в помещение
отдельный со двора
Выделенная электрическая мощность
39 кВт
Водопровод
есть
Канализация
есть
Рекомендованное назначение
Торговля

Расположение

Район
СВАО
Район
Свиблово
Метро
Станция МЦК
Ботанический сад
13 мин.
Дом
3
Адрес
Сельскохозяйственная, вл. 34/1, корп. 3

Особенности

Сдаётся помещение свободного назначения площадью 200 кв. м. в новостройке ЖК «LIFE – Ботанический сад 2» по адресу Москва, СВАО, Свиблово, Сельскохозяйственная, вл. 34/1, корп. 3. Витринное остекление с видом во двор. Высота потолков 5.55 м. Выделенная электрическая мощность — 39 кВт. Отдельный вход со двора. Стоимость аренды помещения — 350 000 руб. в месяц . Способы оплаты и более подробная информация по телефону.

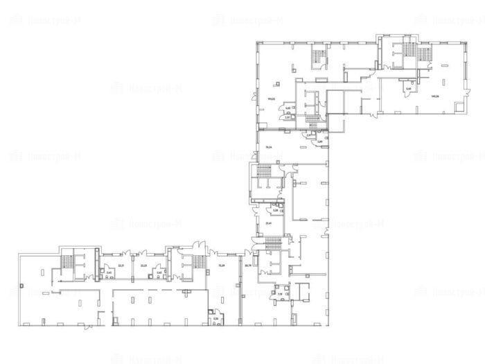
Планировка

Корпус 3 (Сдан)
Посмотреть все спецпредложения

Еще помещения в ЖК «LIFE – Ботанический сад 2»

Аренда
Дом сдан
Москва, СВАО
Ботанический сад
10 мин.
4.00
Высота потолка
Паркинг
витринные
Окна
отдельный
Вход
1
Корпус
ЖК «LIFE – Ботанический сад 2»
Аренда
Дом сдан
Москва, СВАО
Ботанический сад
10 мин.
4.35
Высота потолка
Паркинг
витринные
Окна
отдельный
Вход
1
Корпус
ЖК «LIFE – Ботанический сад 2»
Аренда
Дом сдан
Москва, СВАО
Ботанический сад
10 мин.
5.55
Высота потолка
Паркинг
витринные
Окна
отдельный
Вход
2
Корпус
ЖК «LIFE – Ботанический сад 2»
Аренда
Дом сдан
Москва, СВАО
Ботанический сад
10 мин.
4.25
Высота потолка
Паркинг
витринные
Окна
отдельный
Вход
5
Корпус
ЖК «LIFE – Ботанический сад 2»

Скидки и спецпредложения от застройщиков

ЖК «LIFE – Ботанический сад 2» на карте

Выгодные предложения на новостройки