Рейтинг@Mail.ru
Переверните экран
Новостройки Квартиры Ипотека Новостройки Москвы Новостройки Подмосковья Новостройки Новой Москвы Готовые новостройки Новостройки на карте Акции от застройщиков Коммерческие помещения Продавцы и застройщики Панорамы новостроек Видеообзор новостроек Экспертиза новостроек Экология Москвы и Подмосковья Студии 1-комнатные 2-комнатные 3-комнатные Квартиры на карте Ипотечный калькулятор Семейная ипотека Военная ипотека Банки и программы Медиа Новости недвижимости Мнение эксперта Аналитика рынка Покупателю Экспертиза новостроек Эксперты и авторы О проекте Контакты Реклама на сайте Vk Youtube Telegram Дзен Машиноместа Апартаменты #траншевая ипотека #рассрочка IT-ипотека Квартиры со скидками до 40% Видео 360° новостроек Субсидированная застройщиком Rutube Поиск дома в Москве Программа реновации в Москве Новостройки премиум-класса Новостройки бизнес-класса Рассрочка Траншевая ипотека ГАЛС Дома и коттеджи Бизнес-центры Бизнес-центры в Москве Бизнес-центры рядом с метро Строящиеся бизнес-центры Бизнес-центры класса A Бизнес-центры класса B ЛСР

Помещение свободного назначения, 203.90 м 2

Москва, СВАО, Свиблово, Сельскохозяйственная, вл. 34/1, корп. 5
499 000 /мес.
2 447 2
обновлено 13 декабря

Описание

Номер лота
505
Срок ГК
Сдан
Стадия строительства
Тип здания
встроенное помещение
Этаж
1
Площадь
203.90 м2
Высота потолка
4.25
Окна
витринные с видом во двор и на улицу
Вход в помещение
отдельный с улицы
отдельный со двора
Выделенная электрическая мощность
48 кВт
Вентиляция
есть
Водопровод
есть
Канализация
есть
Рекомендованное назначение
Торговля

Расположение

Район
СВАО
Район
Свиблово
Метро
Станция МЦК
Ботанический сад
13 мин.
Дом
5
Адрес
Сельскохозяйственная, вл. 34/1, корп. 5

Особенности

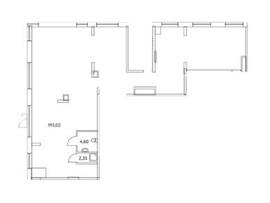
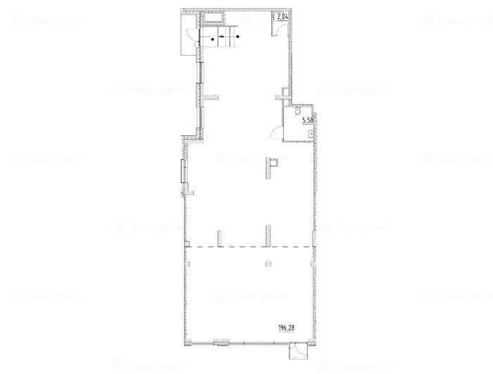
Сдаётся помещение свободного назначения площадью 203.9 кв. м. в новостройке ЖК «LIFE – Ботанический сад 2» по адресу Москва, СВАО, Свиблово, Сельскохозяйственная, вл. 34/1, корп. 5. Витринное остекление с видом во двор и на улицу. Высота потолков 4.25 м. Выделенная электрическая мощность — 48 кВт. Отдельные входы со двора и улицы. Стоимость аренды помещения — 499 000 руб. в месяц . Способы оплаты и более подробная информация по телефону.

Планировка

Корпус 5 (Сдан)
Посмотреть все спецпредложения

Еще помещения в ЖК «LIFE – Ботанический сад 2»

Аренда
Дом сдан
Москва, СВАО
Ботанический сад
10 мин.
4.00
Высота потолка
Паркинг
витринные
Окна
отдельный
Вход
1
Корпус
ЖК «LIFE – Ботанический сад 2»
Аренда
Дом сдан
Москва, СВАО
Ботанический сад
10 мин.
4.35
Высота потолка
Паркинг
витринные
Окна
отдельный
Вход
1
Корпус
ЖК «LIFE – Ботанический сад 2»
Аренда
Дом сдан
Москва, СВАО
Ботанический сад
10 мин.
5.55
Высота потолка
Паркинг
витринные
Окна
отдельный
Вход
2
Корпус
ЖК «LIFE – Ботанический сад 2»
Аренда
Дом сдан
Москва, СВАО
Ботанический сад
10 мин.
5.55
Высота потолка
Паркинг
витринные
Окна
отдельный со двора
Вход
3
Корпус
ЖК «LIFE – Ботанический сад 2»

Скидки и спецпредложения от застройщиков

ЖК «LIFE – Ботанический сад 2» на карте

Выгодные предложения на новостройки