Рейтинг@Mail.ru
Переверните экран
Новостройки Квартиры Ипотека Новостройки Москвы Новостройки Подмосковья Новостройки Новой Москвы Готовые новостройки Новостройки на карте Акции от застройщиков Коммерческие помещения Продавцы и застройщики Панорамы новостроек Видеообзор новостроек Экспертиза новостроек Экология Москвы и Подмосковья Студии 1-комнатные 2-комнатные 3-комнатные Квартиры на карте Ипотечный калькулятор Семейная ипотека Военная ипотека Банки и программы Медиа Новости недвижимости Мнение эксперта Аналитика рынка Покупателю Экспертиза новостроек Эксперты и авторы О проекте Контакты Реклама на сайте Vk Youtube Telegram Дзен Машиноместа Апартаменты #траншевая ипотека #рассрочка IT-ипотека Квартиры со скидками до 40% Видео 360° новостроек Субсидированная застройщиком Rutube Поиск дома в Москве Программа реновации в Москве Новостройки премиум-класса Новостройки бизнес-класса Рассрочка Траншевая ипотека ГАЛС Дома и коттеджи Бизнес-центры Бизнес-центры в Москве Бизнес-центры рядом с метро Строящиеся бизнес-центры Бизнес-центры класса A Бизнес-центры класса B ЛСР

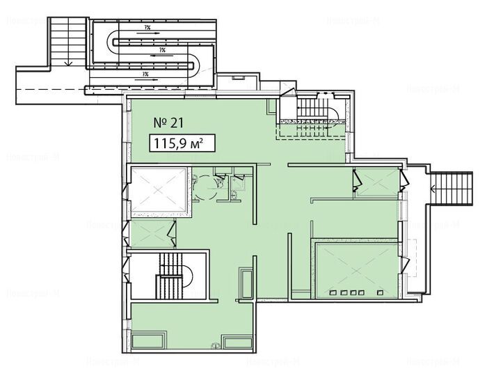
Помещение свободного назначения, 115.90 м 2

Москва, ЗАО, Крылатское, Рублёвское ш., д. 70, корп. 6
26 860 000
231 752 2
обновлено 16 декабря

Описание

Номер лота
XXI
Новостройка
Срок ГК
Сдан
Стадия строительства
Тип здания
встроенное помещение
Этаж
1
Площадь
115.90 м2

Расположение

Район
ЗАО
Район
Крылатское
Метро
Станция МЦК
Трикотажная
45 мин.
Волоколамская
30 мин.
Станция МЦК
Хорошево
45 мин.
Панфиловская
43 мин.
Дом
2 (70к.6)
Адрес
Рублёвское ш., д. 70, корп. 6 , секция 1

Особенности

Продаётся помещение свободного назначения площадью 115.9 кв. м. в новостройке ЖК «Крылатский» по адресу Москва, ЗАО, Крылатское, Рублёвское ш., д. 70, корп. 6. Стоимость помещения — 26 860 000 руб. Способы оплаты и более подробная информация по телефону.

Планировка

Корпус 2 (70к.6), секция 1 (Сдан)
Где купить помещение
Задать вопрос
Выбирайте квартиру в ЖК «Крылатский» по ценам от застройщика .
Посмотреть все спецпредложения

Еще помещения в ЖК «Крылатский»

Продажа
Дом сдан
Москва, ЗАО
Крылатское
22 мин.
Высота потолка
Паркинг
Окна
Вход
1 (70к.5)
Корпус
ЖК «Крылатский»
Продажа
Дом сдан
Москва, ЗАО
Крылатское
22 мин.
Высота потолка
Паркинг
Окна
Вход
3 (70к.7)
Корпус
ЖК «Крылатский»
Продажа
Дом сдан
Москва, ЗАО
Крылатское
22 мин.
Высота потолка
Паркинг
Окна
Вход
3 (70к.7)
Корпус
ЖК «Крылатский»

Скидки и спецпредложения от застройщиков

ЖК «Крылатский» на карте

Выгодные предложения на новостройки