Рейтинг@Mail.ru
Переверните экран
Новостройки Квартиры Ипотека Новостройки Москвы Новостройки Подмосковья Новостройки Новой Москвы Готовые новостройки Новостройки на карте Акции от застройщиков Коммерческие помещения Продавцы и застройщики Панорамы новостроек Видеообзор новостроек Экспертиза новостроек Экология Москвы и Подмосковья Студии 1-комнатные 2-комнатные 3-комнатные Квартиры на карте Ипотечный калькулятор Семейная ипотека Военная ипотека Банки и программы Медиа Новости недвижимости Мнение эксперта Аналитика рынка Покупателю Экспертиза новостроек Эксперты и авторы О проекте Контакты Реклама на сайте Vk Youtube Telegram Дзен Машиноместа Апартаменты #траншевая ипотека #рассрочка IT-ипотека Квартиры со скидками до 40% Видео 360° новостроек Субсидированная застройщиком Rutube Поиск дома в Москве Программа реновации в Москве Новостройки премиум-класса Новостройки бизнес-класса Рассрочка Траншевая ипотека ГАЛС Дома и коттеджи Бизнес-центры Бизнес-центры в Москве Бизнес-центры рядом с метро Строящиеся бизнес-центры Бизнес-центры класса A Бизнес-центры класса B ЛСР

Помещение свободного назначения, 31.97 м 2

Московская область, Дмитровский район, Дмитров, ул. Большевистская
5 750 000
179 856 2
обновлено 17 декабря

Описание

Номер лота
1021
Срок ГК
1 квартал 2027
Стадия строительства
монтаж верхних этажей
Тип здания
встроенное помещение
Этаж
1
Площадь
31.97 м2
Высота потолка
4.20
Окна
с видом на улицу
Вход в помещение
общий с улицы
Электроснабжение
есть
Водопровод
есть
Канализация
есть
Рекомендованное назначение
Торговое

Расположение

Район
Дмитровский район
Поселок
Дмитров
Ж/Д-станция
Дмитров
6 мин.
Шоссе
Дмитровское 56 км от МКАД
Дом
2
Адрес
ул. Большевистская , секция 1

Особенности

Продаётся помещение свободного назначения площадью 31.97 кв. м. в новостройке ЖК «Большевик» (Дмитров) по адресу Московская область, Дмитровский район, Дмитров, ул. Большевистская. Окна с видом на улицу. Высота потолков 4.20 м. Общий вход с улицы. Стоимость помещения — 5 750 000 руб. Способы оплаты и более подробная информация по телефону.

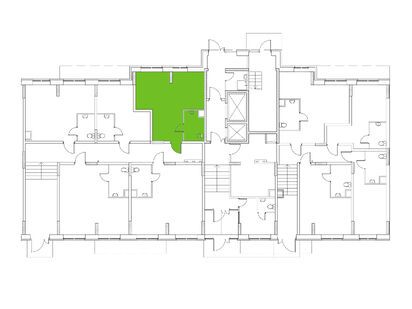
Планировка

Корпус 2, секция 1 (ГК 1 квартал 2027)
Где купить помещение
Задать вопрос
Выбирайте квартиру в ЖК «Большевик» (Дмитров) по ценам от застройщика Архитектор.
Посмотреть все спецпредложения

Еще помещения в ЖК «Большевик» (Дмитров)

Продажа
1 квартал 2027
Московская область, Дмитровский район
Дмитров (ж/д)
6 мин.
4.20
Высота потолка
Паркинг
Окна
общий с улицы
Вход
2
Корпус
ЖК «Большевик» (Дмитров)
Продажа
1 квартал 2027
Московская область, Дмитровский район
Дмитров (ж/д)
6 мин.
3.90
Высота потолка
Паркинг
Окна
общий с улицы
Вход
2
Корпус
ЖК «Большевик» (Дмитров)
Продажа
1 квартал 2027
Московская область, Дмитровский район
Дмитров (ж/д)
6 мин.
3.90
Высота потолка
Паркинг
Окна
общий с улицы
Вход
2
Корпус
ЖК «Большевик» (Дмитров)
Продажа
1 квартал 2027
Московская область, Дмитровский район
Дмитров (ж/д)
6 мин.
4.20
Высота потолка
Паркинг
Окна
общий с улицы
Вход
2
Корпус
ЖК «Большевик» (Дмитров)

Скидки и спецпредложения от застройщиков

ЖК «Большевик» (Дмитров) на карте

Выгодные предложения на новостройки