Рейтинг@Mail.ru
Переверните экран
Новостройки Квартиры Ипотека Новостройки Москвы Новостройки Подмосковья Новостройки Новой Москвы Готовые новостройки Новостройки на карте Акции от застройщиков Коммерческие помещения Продавцы и застройщики Панорамы новостроек Видеообзор новостроек Экспертиза новостроек Экология Москвы и Подмосковья Студии 1-комнатные 2-комнатные 3-комнатные Квартиры на карте Ипотечный калькулятор Семейная ипотека Военная ипотека Банки и программы Медиа Новости недвижимости Мнение эксперта Аналитика рынка Покупателю Экспертиза новостроек Эксперты и авторы О проекте Контакты Реклама на сайте Vk Youtube Telegram Дзен Машиноместа Апартаменты #траншевая ипотека #рассрочка IT-ипотека Квартиры со скидками до 40% Видео 360° новостроек Субсидированная застройщиком Rutube Поиск дома в Москве Программа реновации в Москве Новостройки премиум-класса Новостройки бизнес-класса Рассрочка Траншевая ипотека ГАЛС Дома и коттеджи Бизнес-центры Бизнес-центры в Москве Бизнес-центры рядом с метро Строящиеся бизнес-центры Бизнес-центры класса A Бизнес-центры класса B ЛСР

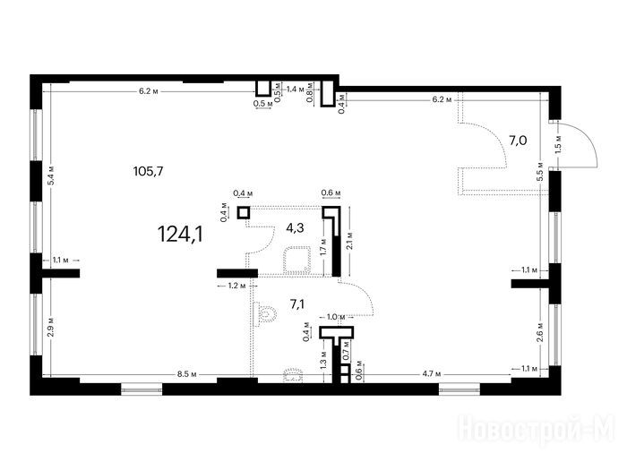
Помещение свободного назначения, 124.10 м 2

Москва, ЗелАО, Крюково, Георгиевский пр-т, корп. 6.3
37 838 090
304 900 2
обновлено 13 декабря
Узнать про коммерческие помещения

Описание

Номер лота
НПКИ 10
Новостройка
Срок ГК
2 квартал 2026
Стадия строительства
Тип здания
встроенное помещение
Этаж
1
Площадь
124.10 м2
Высота потолка
4.95
Окна
витринные с видом во двор и на улицу
Вход в помещение
отдельный с улицы
Выделенная электрическая мощность
0.2 кВт/кв.м
Водопровод
есть
Канализация
есть
Рекомендованное назначение
Свободное назначение

Расположение

Район
ЗелАО
Район
Крюково
Метро
Станция МЦК
Зеленоград- Крюково
20 мин.
Шоссе
Пятницкое км от МКАД
Дом
6.3
Адрес
Георгиевский пр-т, корп. 6.3 , секция 3

Особенности

Продаётся нежилое помещение свободного назначения в новом жилом районе Зелёный парк от ПИК. Открытая планировка, витринное остекление, удобный вход на уровне земли. Помещение (номер на площадке: №10) расположено по адресу: г. Москва, ЗелАО, г. Зеленоград, промзона ЦИЭ, корпуса 6.2, 6.3, 6.4. Продажа напрямую от застройщика.

Планировка

Корпус 6.3, секция 3 (ГК 2 квартал 2026)
Где купить помещение
ПИК
ПИК
02:00 — 21:00
Заказать обратный звонок
Задать вопрос
Выбирайте квартиру в Зелёный парк по ценам от застройщика ПИК.
Посмотреть все спецпредложения

Еще помещения в Зелёный парк

Продажа
2 квартал 2026
Москва, ЗелАО
Зеленоград- Крюково
20 мин.
4.07
Высота потолка
Паркинг
витринные
Окна
отдельный с улицы
Вход
6.3
Корпус
Зелёный парк
Продажа
2 квартал 2027
Москва, ЗелАО
Зеленоград- Крюково
20 мин.
4.16
Высота потолка
Паркинг
витринные
Окна
отдельный с улицы
Вход
6.1
Корпус
Зелёный парк
Продажа
2 квартал 2027
Москва, ЗелАО
Зеленоград- Крюково
20 мин.
4.59
Высота потолка
Паркинг
витринные
Окна
отдельный с улицы
Вход
6.1
Корпус
Зелёный парк
Продажа
2 квартал 2027
Москва, ЗелАО
Зеленоград- Крюково
20 мин.
4.52
Высота потолка
Паркинг
витринные
Окна
отдельный с улицы
Вход
6.1
Корпус
Зелёный парк

Скидки и спецпредложения от застройщиков

Зелёный парк на карте

Выгодные предложения на новостройки