Рейтинг@Mail.ru
Переверните экран
Новостройки Квартиры Ипотека Новостройки Москвы Новостройки Подмосковья Новостройки Новой Москвы Готовые новостройки Новостройки на карте Акции от застройщиков Коммерческие помещения Продавцы и застройщики Панорамы новостроек Видеообзор новостроек Экспертиза новостроек Экология Москвы и Подмосковья Студии 1-комнатные 2-комнатные 3-комнатные Квартиры на карте Ипотечный калькулятор Семейная ипотека Военная ипотека Банки и программы Медиа Новости недвижимости Мнение эксперта Аналитика рынка Покупателю Экспертиза новостроек Эксперты и авторы О проекте Контакты Реклама на сайте Vk Youtube Telegram Дзен Машиноместа Апартаменты #траншевая ипотека #рассрочка IT-ипотека Квартиры со скидками до 40% Видео 360° новостроек Субсидированная застройщиком Rutube Поиск дома в Москве Программа реновации в Москве Новостройки премиум-класса Новостройки бизнес-класса Рассрочка Траншевая ипотека ГАЛС Дома и коттеджи Бизнес-центры Бизнес-центры в Москве Бизнес-центры рядом с метро Строящиеся бизнес-центры Бизнес-центры класса A Бизнес-центры класса B ЛСР

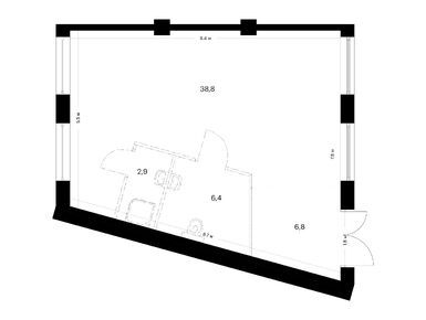
Помещение свободного назначения, 131.00 м 2

Москва, ТиНАО, Новомосковский АО, Щербинка, Варшавское ш., д. 282, корп.1
41 959 300
320 300 2
обновлено 13 декабря
Узнать про коммерческие помещения

Описание

Номер лота
Новостройка
Срок ГК
Сдан
Стадия строительства
Тип здания
встроенное помещение
Этаж
1
Площадь
131.00 м2
Высота потолка
3.22
Окна
витринные с видом во двор и на улицу
Вход в помещение
отдельный с улицы
Выделенная электрическая мощность
0.2 кВт/кв.м
Водопровод
есть
Канализация
есть
Рекомендованное назначение
Свободное назначение

Расположение

Поселок
ТиНАО
Район
Щербинка
Станция МЦК
Щербинка
17 мин.
Шоссе
Варшавское 7 км от МКАД
Дом
1.1
Адрес
Варшавское ш., д. 282, корп.1

Особенности

Продаётся нежилое помещение свободного назначения в готовом корпусе в новом жилом районе Никольские луга от ПИК. Открытая планировка, витринное остекление, удобный вход на уровне земли. Помещение (номер на площадке: №5) расположено по адресу: Российская Федерация, город Москва, внутригородская территория муниципальный округ Южное Бутово, Варшавское шоссе, дом 282, корпус 1. Продажа напрямую от застройщика.

Планировка

Корпус 1.1 (Сдан)
Где купить помещение
ПИК
ПИК
02:00 — 21:00
Заказать обратный звонок
Задать вопрос
Выбирайте квартиру в Никольские луга по ценам от застройщика ПИК.
Посмотреть все спецпредложения

Еще помещения в Никольские луга

Продажа
3 квартал 2026
Москва, Новомосковский АО
Щербинка
17 мин.
3.67
Высота потолка
Паркинг
витринные
Окна
отдельный с улицы
Вход
4
Корпус
Никольские луга
Продажа
3 квартал 2026
Москва, Новомосковский АО
Щербинка
17 мин.
3.82
Высота потолка
Паркинг
витринные
Окна
отдельный с улицы
Вход
4
Корпус
Никольские луга
Продажа
3 квартал 2026
Москва, Новомосковский АО
Щербинка
17 мин.
4.08
Высота потолка
Паркинг
витринные
Окна
отдельный с улицы
Вход
4
Корпус
Никольские луга
Продажа
3 квартал 2026
Москва, Новомосковский АО
Щербинка
17 мин.
3.70
Высота потолка
Паркинг
витринные
Окна
отдельный с улицы
Вход
4
Корпус
Никольские луга

Скидки и спецпредложения от застройщиков

Никольские луга на карте

Выгодные предложения на новостройки