Рейтинг@Mail.ru
Переверните экран
Новостройки Квартиры Ипотека Новостройки Москвы Новостройки Подмосковья Новостройки Новой Москвы Готовые новостройки Новостройки на карте Акции от застройщиков Коммерческие помещения Продавцы и застройщики Панорамы новостроек Видеообзор новостроек Экспертиза новостроек Экология Москвы и Подмосковья Студии 1-комнатные 2-комнатные 3-комнатные Квартиры на карте Ипотечный калькулятор Семейная ипотека Военная ипотека Банки и программы Медиа Новости недвижимости Мнение эксперта Аналитика рынка Покупателю Экспертиза новостроек Эксперты и авторы О проекте Контакты Реклама на сайте Vk Youtube Telegram Дзен Машиноместа Апартаменты #траншевая ипотека #рассрочка IT-ипотека Квартиры со скидками до 40% Видео 360° новостроек Субсидированная застройщиком Rutube Поиск дома в Москве Программа реновации в Москве Новостройки премиум-класса Новостройки бизнес-класса Рассрочка Траншевая ипотека ГАЛС Дома и коттеджи Бизнес-центры Бизнес-центры в Москве Бизнес-центры рядом с метро Строящиеся бизнес-центры Бизнес-центры класса A Бизнес-центры класса B ЛСР

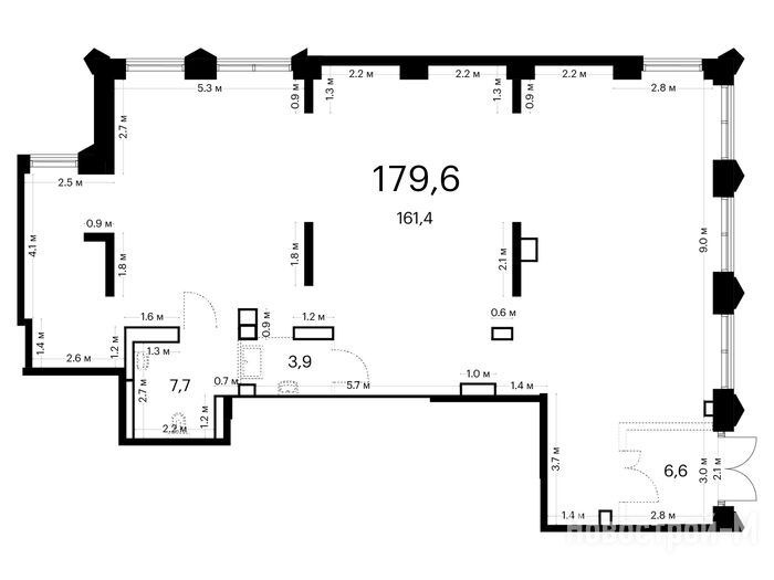
Помещение свободного назначения, 179.60 м 2

Москва, ЗАО, Очаково-Матвеевское, Очаковское ш., вл. 3, корп. 4.6
69 846 440
388 900 2
обновлено 17 декабря
Узнать про коммерческие помещения

Описание

Номер лота
НПКИ 9
Новостройка
Срок ГК
2 квартал 2028
Стадия строительства
Тип здания
встроенное помещение
Этаж
1
Площадь
179.60 м2
Высота потолка
5.11
Окна
витринные с видом во двор и на улицу
Вход в помещение
отдельный с улицы
Выделенная электрическая мощность
0.2 кВт/кв.м
Водопровод
есть
Канализация
есть
Рекомендованное назначение
Свободное назначение

Расположение

Район
ЗАО
Район
Очаково-Матвеевское
Станция МЦК
Очаково
20 мин.
Аминьевская
14 мин.
Станция МЦК
Лужники
19 мин.
Дом
4.6
Адрес
Очаковское ш., вл. 3, корп. 4.6 , секция 1

Особенности

Продаётся нежилое помещение свободного назначения в новом жилом районе Матвеевский парк от ПИК. Открытая планировка, витринное остекление, удобный вход на уровне земли. Помещение (номер на площадке: №9) расположено по адресу: г. Москва, ЗАО, Очаково-Матвеевское, ш. Очаковское шоссе. Этап 2. Продажа напрямую от застройщика.

Планировка

Корпус 4.6, секция 1 (ГК 2 квартал 2028)
Где купить помещение
ПИК
ПИК
02:00 — 21:00
Заказать обратный звонок
Задать вопрос
Выбирайте квартиру в Матвеевский парк по ценам от застройщика ПИК.
Посмотреть все спецпредложения

Еще помещения в Матвеевский парк

Продажа
2 квартал 2028
Москва, ЗАО
Аминьевская
3 мин.
4.92
Высота потолка
Паркинг
витринные
Окна
отдельный с улицы
Вход
4.4
Корпус
Матвеевский парк
Продажа
2 квартал 2028
Москва, ЗАО
Аминьевская
3 мин.
4.49
Высота потолка
Паркинг
витринные
Окна
отдельный с улицы
Вход
4.4
Корпус
Матвеевский парк

Скидки и спецпредложения от застройщиков

Матвеевский парк на карте

Выгодные предложения на новостройки