Рейтинг@Mail.ru
Переверните экран
Новостройки Квартиры Ипотека Новостройки Москвы Новостройки Подмосковья Новостройки Новой Москвы Готовые новостройки Новостройки на карте Акции от застройщиков Коммерческие помещения Продавцы и застройщики Панорамы новостроек Видеообзор новостроек Экспертиза новостроек Экология Москвы и Подмосковья Студии 1-комнатные 2-комнатные 3-комнатные Квартиры на карте Ипотечный калькулятор Семейная ипотека Военная ипотека Банки и программы Медиа Новости недвижимости Мнение эксперта Аналитика рынка Покупателю Экспертиза новостроек Эксперты и авторы О проекте Контакты Реклама на сайте Vk Youtube Telegram Дзен Машиноместа Апартаменты #траншевая ипотека #рассрочка IT-ипотека Квартиры со скидками до 40% Видео 360° новостроек Субсидированная застройщиком Rutube Поиск дома в Москве Программа реновации в Москве Новостройки премиум-класса Новостройки бизнес-класса Рассрочка Траншевая ипотека ГАЛС Дома и коттеджи Бизнес-центры Бизнес-центры в Москве Бизнес-центры рядом с метро Строящиеся бизнес-центры Бизнес-центры класса A Бизнес-центры класса B ЛСР

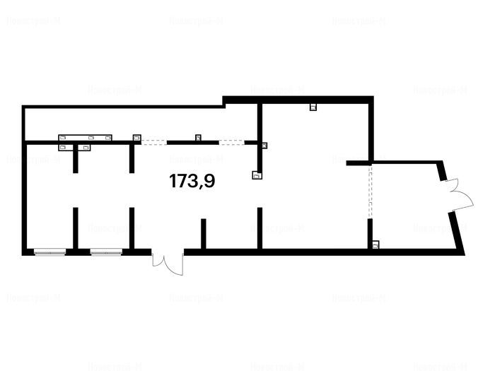
Помещение свободного назначения, 173.90 м 2

Москва, ЗАО, Очаково-Матвеевское, ул. Большая Очаковская, вл. 2
71 017 977
408 384 2
обновлено 13 декабря
Узнать про коммерческие помещения

Описание

Номер лота
28Н
Новостройка
Срок ГК
Сдан
Стадия строительства
Тип здания
встроенное помещение
Этаж
1
Площадь
173.90 м2
Высота потолка
4.94
Окна
витринные с видом во двор и на улицу
Вход в помещение
отдельный с улицы
Рекомендованное назначение
Торговое

Расположение

Район
ЗАО
Район
Очаково-Матвеевское
Станция МЦК
Очаково
20 мин.
Аминьевская
12 мин.
Станция МЦК
Кутузовская
17 мин.
Дом
1.4
Адрес
ул. Большая Очаковская, вл. 2 , секция 1

Особенности

Продаётся нежилое помещение свободного назначения в готовом корпусе в новом жилом районе Большая Очаковская 2 от ПИК. Открытая планировка, витринное остекление, удобный вход на уровне земли. Помещение (номер на площадке: №28) расположено по адресу: Российская Федерация, город Москва, внутригородская территория муниципальный округ Очаково-Матвеевское, Большая Очаковская улица, дом 2. Продажа напрямую от застройщика.

Планировка

Корпус 1.4, секция 1 (Сдан)
Посмотреть все спецпредложения

Скидки и спецпредложения от застройщиков

Большая Очаковская 2 на карте

Выгодные предложения на новостройки