Рейтинг@Mail.ru
Переверните экран
Новостройки Квартиры Ипотека Новостройки Москвы Новостройки Подмосковья Новостройки Новой Москвы Готовые новостройки Новостройки на карте Акции от застройщиков Коммерческие помещения Продавцы и застройщики Панорамы новостроек Видеообзор новостроек Экспертиза новостроек Экология Москвы и Подмосковья Студии 1-комнатные 2-комнатные 3-комнатные Квартиры на карте Ипотечный калькулятор Семейная ипотека Военная ипотека Банки и программы Медиа Новости недвижимости Мнение эксперта Аналитика рынка Покупателю Экспертиза новостроек Эксперты и авторы О проекте Контакты Реклама на сайте Vk Youtube Telegram Дзен Машиноместа Апартаменты #траншевая ипотека #рассрочка ИТ-ипотека Квартиры со скидками до 40% Видео 360° новостроек Субсидированная застройщиком Rutube Поиск дома в Москве Программа реновации в Москве Новостройки премиум-класса Новостройки бизнес-класса Рассрочка Траншевая ипотека Дома и коттеджи Бизнес-центры Бизнес-центры в Москве Бизнес-центры рядом с метро Строящиеся бизнес-центры Бизнес-центры класса A Бизнес-центры класса B Ипотека со ставкой 0,1%

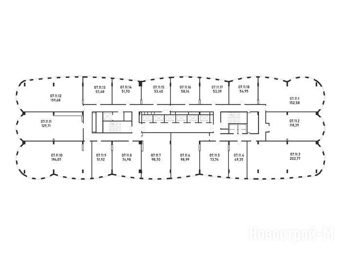
Помещение свободного назначения, 98.70 м 2

Москва, ЗАО, Очаково-Матвеевское, ул. Озёрная з.у. 44Б
29 491 560
298 800 2
обновлено 04 апреля

Описание

Номер лота
7117
Срок ГК
3 квартал 2028
Стадия строительства
котлован/фундамент
Тип здания
встроенное помещение
Этаж
7
Площадь
98.70 м2
Окна
витринные с видом на улицу
Вход в помещение
отдельный с улицы
Электроснабжение
есть
Отделка
без отделки
Вентиляция
есть
Водопровод
есть
Канализация
есть
Пропускная система
есть
Лифт
есть
Парковка
есть
Рекомендованное назначение
Офис, торговое

Расположение

Район
ЗАО
Район
Очаково-Матвеевское
Метро
Станция МЦК
Мещёрская
17 мин.
Очаково
28 мин.
Дом
1
Адрес
ул. Озёрная з.у. 44Б

Особенности

Продаётся помещение свободного назначения площадью 98.7 кв. м. в новостройке Бизнес-центр «Лейкс 2» по адресу Москва, ЗАО, Очаково-Матвеевское, ул. Озёрная з.у. 44Б. Без отделки. Витринное остекление с видом на улицу. Высота потолков 0.00 м. Отдельный вход с улицы. Стоимость помещения — 29 491 560 руб. Способы оплаты и более подробная информация по телефону.

Планировка

Корпус 1 (ГК 3 квартал 2028)
Где купить помещение
Задать вопрос
Выбирайте квартиру в Бизнес-центр «Лейкс 2» по ценам от застройщика FORMA (Форма).
Посмотреть все спецпредложения

Еще помещения в Бизнес-центр «Лейкс 2»

Продажа
3 квартал 2028
Москва, ЗАО
Озерная
6 мин.
0.00
Высота потолка
есть
Паркинг
витринные
Окна
общий с улицы
Вход
1
Корпус
Бизнес-центр «Лейкс 2»
Продажа
3 квартал 2028
Москва, ЗАО
Озерная
6 мин.
0.00
Высота потолка
есть
Паркинг
витринные
Окна
отдельный с улицы
Вход
1
Корпус
Бизнес-центр «Лейкс 2»
Продажа
3 квартал 2028
Москва, ЗАО
Озерная
6 мин.
0.00
Высота потолка
есть
Паркинг
витринные
Окна
отдельный с улицы
Вход
1
Корпус
Бизнес-центр «Лейкс 2»
Продажа
3 квартал 2028
Москва, ЗАО
Озерная
6 мин.
0.00
Высота потолка
есть
Паркинг
витринные
Окна
отдельный с улицы
Вход
1
Корпус
Бизнес-центр «Лейкс 2»

Скидки и спецпредложения от застройщиков

Бизнес-центр «Лейкс 2» на карте

Выгодные предложения на новостройки