Рейтинг@Mail.ru
Переверните экран
Новостройки Квартиры Ипотека Новостройки Москвы Новостройки Подмосковья Новостройки Новой Москвы Готовые новостройки Новостройки на карте Акции от застройщиков Коммерческие помещения Продавцы и застройщики Панорамы новостроек Видеообзор новостроек Экспертиза новостроек Экология Москвы и Подмосковья Студии 1-комнатные 2-комнатные 3-комнатные Квартиры на карте Ипотечный калькулятор Семейная ипотека Военная ипотека Банки и программы Медиа Новости недвижимости Мнение эксперта Аналитика рынка Покупателю Экспертиза новостроек Эксперты и авторы О проекте Контакты Реклама на сайте Vk Youtube Telegram Дзен Машиноместа Апартаменты #траншевая ипотека #рассрочка IT-ипотека Квартиры со скидками до 40% Видео 360° новостроек Субсидированная застройщиком Rutube Поиск дома в Москве Программа реновации в Москве Новостройки премиум-класса Новостройки бизнес-класса Рассрочка Траншевая ипотека ГАЛС Дома и коттеджи Бизнес-центры Бизнес-центры в Москве Бизнес-центры рядом с метро Строящиеся бизнес-центры Бизнес-центры класса A Бизнес-центры класса B ЛСР
Данная квартира является лидером продаж среди трехкомнатных квартир в ЖК «Видный берег-2» по данным Росреестра
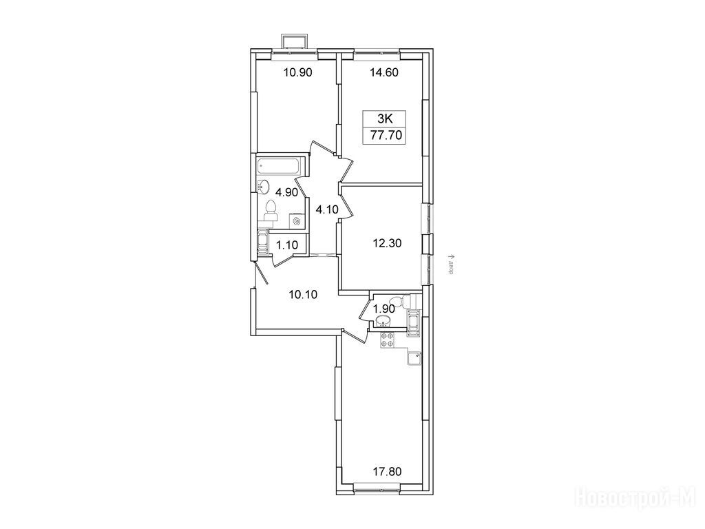
3-комн. квартира, 77.70 м2, 19 этаж
Срок сдачи 2 квартал 2027 года
25 193 350 
324 239 2
обновлено 5 декабря

Описание 3-комн. квартиры

Новостройка
Застройщик
Специализированный Застройщик «Котар» Группа компаний 3-RED
Срок ГК
2 квартал 2027 года
Стадия строительства
Общая площадь
77.70 м2
Жилая площадь
37.80 м2
Площадь кухни
17.80 м2
Этаж
19 / 21

Расположение 3-комн. квартиры

Метро
Ж/Д-станция
Дом
5
Адрес
г. Видное, мкр. Купелинка, секция 2

Способы покупки

Особенности

Продается трехкомнатная квартира в новостройке ЖК «Видный берег-2» по адресу Московская область, Ленинский городской округ, Горки Ленинские Г/П, Сапроново деревня, г. Видное, мкр. Купелинка. Общая площадь квартиры - 77.7 кв. м. Тип проекта, по которому построен дом — Монолитно-кирпичный, компания-застройщик — Группа компаний 3-RED, Специализированный Застройщик «Котар». Стоимость квартиры — 25 193 350 руб. Способы оплаты можно уточнить у продавца. Срок сдачи — 2 квартал 2027. Более подробная информация по телефону.
Инфоцентр новостроек
Инфоцентр новостроек
+7 (499) 705-91-41
Время работы 9:00 — 21:00

Похожие квартиры в ЖК «Видный берег-2»

20 этаж
из 21 2 квартал 2027
Московская область, Горки Ленинские Г/П
Домодедовская
23 мин.
5
Корпус
нет данных
Отделка
2.60 м
Потолки
ЖК «Видный берег-2»
25 193 350
ВТБ, Промсвязьбанк, СберБанк, Россельхозбанк, Абсолют Банк, ДОМ.РФ
6.00%
Ставка
40.10%
Первый взнос
от 151 047 /мес.
Все варианты
21 этаж
из 21 2 квартал 2027
Московская область, Горки Ленинские Г/П
Домодедовская
23 мин.
5
Корпус
нет данных
Отделка
2.60 м
Потолки
ЖК «Видный берег-2»
25 193 350
ВТБ, Промсвязьбанк, СберБанк, Россельхозбанк, Абсолют Банк, ДОМ.РФ
6.00%
Ставка
40.10%
Первый взнос
от 151 047 /мес.
Все варианты
17 этаж
из 21 2 квартал 2027
Московская область, Горки Ленинские Г/П
Домодедовская
23 мин.
5
Корпус
нет данных
Отделка
2.60 м
Потолки
ЖК «Видный берег-2»
25 262 354
ВТБ, Промсвязьбанк, СберБанк, Россельхозбанк, Абсолют Банк, ДОМ.РФ
6.00%
Ставка
40.10%
Первый взнос
от 151 461 /мес.
Все варианты
Посмотреть все спецпредложения
студия 17,80 м2 9 150 601
Этаж 21/23
МО, ЖК «Видный берег-2»
Домодедовская
23 мин.
Строится
студия 19,40 м2 9 428 520
Этаж 11/23
МО, ЖК «Видный берег-2»
Домодедовская
23 мин.
Строится
студия 19,90 м2 8 965 507
Этаж 5/21
МО, ЖК «Видный берег-2»
Домодедовская
23 мин.
Строится
студия 20,70 м2 10 060 433
Этаж 21/23
МО, ЖК «Видный берег-2»
Домодедовская
23 мин.
Строится
Посмотреть 36 квартир в ЖК «Видный берег-2»
1-комн. квартира 30,80 м2 11 741 958
Этаж 3/21
МО, ЖК «Видный берег-2»
Домодедовская
23 мин.
Строится
1-комн. квартира 31,50 м2 12 913 771
Этаж 6/23
МО, ЖК «Видный берег-2»
Домодедовская
23 мин.
Строится
Этаж 14/25
МО, ЖК «Видный берег-2»
Домодедовская
23 мин.
Сдан
1-комн. квартира 32,70 м2 13 140 206
Этаж 5/23
МО, ЖК «Видный берег-2»
Домодедовская
23 мин.
Строится
Посмотреть 171 квартира в ЖК «Видный берег-2»
2-комн. квартира 47,30 м2 19 417 236
Этаж 16/23
МО, ЖК «Видный берег-2»
Домодедовская
23 мин.
Строится
2-комн. квартира 49,50 м2 19 558 349
Этаж 5/23
МО, ЖК «Видный берег-2»
Домодедовская
23 мин.
Строится
2-комн. квартира 49,90 м2 19 962 323
Этаж 19/23
МО, ЖК «Видный берег-2»
Домодедовская
23 мин.
Строится
2-комн. квартира 50,00 м2 20 143 567
Этаж 19/23
МО, ЖК «Видный берег-2»
Домодедовская
23 мин.
Строится
Посмотреть 66 квартир в ЖК «Видный берег-2»
3-комн. квартира 65,60 м2 24 378 891
Этаж 5/19
МО, ЖК «Видный берег-2»
Домодедовская
23 мин.
Строится
3-комн. квартира 65,70 м2 25 714 681
Этаж 7/19
МО, ЖК «Видный берег-2»
Домодедовская
23 мин.
Строится
3-комн. квартира 69,70 м2 26 066 793
Этаж 18/19
МО, ЖК «Видный берег-2»
Домодедовская
23 мин.
Строится
3-комн. квартира 69,90 м2 26 158 051
Этаж 19/19
МО, ЖК «Видный берег-2»
Домодедовская
23 мин.
Строится
Посмотреть 25 квартир в ЖК «Видный берег-2»
4-комн. квартира 86,30 м2 30 140 090
Этаж 19/23
МО, ЖК «Видный берег-2»
Домодедовская
23 мин.
Строится
Посмотреть 5 квартир в ЖК «Видный берег-2»

Скидки и спецпредложения от застройщиков

ЖК «Видный берег-2» на карте

Выгодные предложения на новостройки

Отзывы о ЖК «Видный берег-2»

Самый полезный отзыв
С
18 октября 2020
Оценка:
Экология
Скорость строительства
Транспортная доступность
В целом жк обещает быть хорошим, с учетом того что это Видный берег версия 2.0, то может этот даже продвинутей будет первого, с которым я в принципе хорошо знаком))) Район тут тихий, спокойный, что называется спальный, для размеренной жизни самое то, но за развлечениями, конечно, это в Москву, а вот чтоб до Москвы доехать - это уже вопрос другой, и до некоторых пор весьма печальный из-за проблем с выездом на М4, но под новый год вроде нам подарок обещают сделать, а к самому заселению в жк, так и подавно должно что-то поменяться. Детей пока нет, ситуация с садами и школами мне не актуальна, но на перспективу - есть от первого ВБ школа, будет вроде еще одна где-то рядом, ну и садики тоже.
Показать все комментарии
Ответить
Полезный отзыв?
Самый новый отзыв
АМ
11 июля
Оценка:
Двор, окружение
Расположение
Удобно, в одном километре от комплекса есть парковая зона, можно легко добраться для прогулок. Видный берег вообще выглядит современно и привлекательно, архитектура радует глаз. Расположение ЖК удачное, сочетает городские удобства и близость к природе.
Ответить
Полезный отзыв?
Добавьте отзыв, заполнив личные данные, или сначала войдите на сайт, тогда информация будет автоматически взята из личного профиля.
Оценка*