Рейтинг@Mail.ru
Переверните экран
Новостройки Квартиры Ипотека Новостройки Москвы Новостройки Подмосковья Новостройки Новой Москвы Готовые новостройки Новостройки на карте Акции от застройщиков Коммерческие помещения Продавцы и застройщики Панорамы новостроек Видеообзор новостроек Экспертиза новостроек Экология Москвы и Подмосковья Студии 1-комнатные 2-комнатные 3-комнатные Квартиры на карте Ипотечный калькулятор Семейная ипотека Военная ипотека Банки и программы Медиа Новости недвижимости Мнение эксперта Аналитика рынка Покупателю Экспертиза новостроек Эксперты и авторы О проекте Контакты Реклама на сайте Vk Youtube Telegram Дзен Машиноместа Апартаменты #траншевая ипотека #рассрочка IT-ипотека Квартиры со скидками до 40% Видео 360° новостроек Субсидированная застройщиком Rutube Поиск дома в Москве Программа реновации в Москве Новостройки премиум-класса Новостройки бизнес-класса Рассрочка Траншевая ипотека ГАЛС Дома и коттеджи Бизнес-центры Бизнес-центры в Москве Бизнес-центры рядом с метро Строящиеся бизнес-центры Бизнес-центры класса A Бизнес-центры класса B ЛСР
Данная квартира является лидером продаж среди трехкомнатных квартир в ЖК Very (Вери) Ботанический сад по данным Росреестра
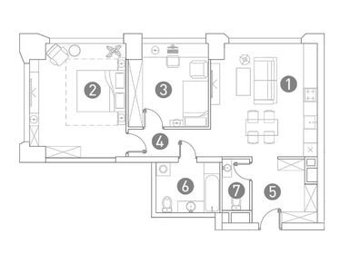
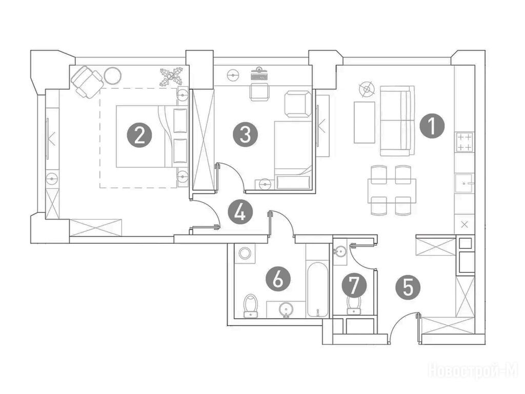
3-комн. квартира, 75.30 м2, 2 этаж
Срок сдачи 4 квартал 2027 года
36 068 700 
479 000 2
обновлено 5 декабря

Описание 3-комн. квартиры

Застройщик
ГК «Основа» ООО «СЗ Останкино»
Срок ГК
4 квартал 2027 года
Стадия строительства
Общая площадь
75.30 м2
Жилая площадь
32.30 м2
Площадь кухни
22.40 м2
Этаж
2 / 29
Отделка
white box
Грузовой лифт
есть

Расположение 3-комн. квартиры

Локация
Станция МЦД
Станция МЦК
Дом
4
Адрес
ул. Ботаническая, д. 29, секция 1

Способы покупки

Особенности

Продается трехкомнатная квартира в новостройке ЖК Very (Вери) Ботанический сад по адресу Москва, СВАО, Марфино, ул. Ботаническая, д. 29. Общая площадь квартиры - 75.3 кв. м. Тип проекта, по которому построен дом — Монолитно-кирпичный, компания-застройщик — ГК «Основа», ООО «СЗ Останкино». Стоимость квартиры — 36 068 700 руб. Способы оплаты можно уточнить у продавца. Срок сдачи — 4 квартал 2027. Более подробная информация по телефону.

Правовые документы

Инфоцентр новостроек
Инфоцентр новостроек
+7 (499) 705-91-41
Время работы 9:00 — 21:00

Похожие квартиры в ЖК Very (Вери) Ботанический сад

2 этаж
из 29 4 квартал 2027
Москва, СВАО
Фонвизинская
15 мин.
4
Корпус
white box
Отделка
3.00 м
Потолки
ЖК Very (Вери) Ботанический сад
36 294 600
ДОМ.РФ, Московский Кредитный Банк, Газпромбанк
20.20%
Ставка
20.00%
Первый взнос
от 612 463 /мес.
Все варианты
3 этаж
из 29 4 квартал 2027
Москва, СВАО
Фонвизинская
15 мин.
4
Корпус
white box
Отделка
3.00 м
Потолки
ЖК Very (Вери) Ботанический сад
36 445 200
ДОМ.РФ, Московский Кредитный Банк, Газпромбанк
20.20%
Ставка
20.00%
Первый взнос
от 615 004 /мес.
Все варианты
3 этаж
из 29 4 квартал 2027
Москва, СВАО
Фонвизинская
15 мин.
4
Корпус
white box
Отделка
3.00 м
Потолки
ЖК Very (Вери) Ботанический сад
36 595 800
ДОМ.РФ, Московский Кредитный Банк, Газпромбанк
20.20%
Ставка
20.00%
Первый взнос
от 617 545 /мес.
Все варианты
4 этаж
из 29 4 квартал 2027
Москва, СВАО
Фонвизинская
15 мин.
4
Корпус
white box
Отделка
3.00 м
Потолки
ЖК Very (Вери) Ботанический сад
36 671 100
ДОМ.РФ, Московский Кредитный Банк, Газпромбанк
20.20%
Ставка
20.00%
Первый взнос
от 618 816 /мес.
Все варианты
Посмотреть все спецпредложения
студия 25,80 м2 17 440 800
Этаж 26/29
Москва, ЖК Very (Вери) Ботанический сад
Фонвизинская
15 мин.
Строится
студия 26,00 м2 15 132 000
Этаж 7/29
Москва, ЖК Very (Вери) Ботанический сад
Фонвизинская
15 мин.
Строится
студия 26,10 м2 17 513 100
Этаж 26/29
Москва, ЖК Very (Вери) Ботанический сад
Фонвизинская
15 мин.
Строится
студия 26,20 м2 15 982 000
Этаж 14/29
Москва, ЖК Very (Вери) Ботанический сад
Фонвизинская
15 мин.
Строится
Посмотреть 11 квартир в ЖК Very (Вери) Ботанический сад
2-комн. квартира 40,50 м2 22 356 000
Этаж 21/29
Москва, ЖК Very (Вери) Ботанический сад
Фонвизинская
15 мин.
Строится
2-комн. квартира 40,70 м2 20 838 400
Этаж 2/29
Москва, ЖК Very (Вери) Ботанический сад
Фонвизинская
15 мин.
Строится
2-комн. квартира 40,90 м2 21 472 500
Этаж 9/29
Москва, ЖК Very (Вери) Ботанический сад
Фонвизинская
15 мин.
Строится
2-комн. квартира 41,00 м2 21 279 000
Этаж 6/29
Москва, ЖК Very (Вери) Ботанический сад
Фонвизинская
15 мин.
Строится
Посмотреть 69 квартир в ЖК Very (Вери) Ботанический сад
3-комн. квартира 59,90 м2 28 692 100
Этаж 3/29
Москва, ЖК Very (Вери) Ботанический сад
Фонвизинская
15 мин.
Строится
3-комн. квартира 60,70 м2 28 771 800
Этаж 2/29
Москва, ЖК Very (Вери) Ботанический сад
Фонвизинская
15 мин.
Строится
3-комн. квартира 60,80 м2 28 819 200
Этаж 4/29
Москва, ЖК Very (Вери) Ботанический сад
Фонвизинская
15 мин.
Строится
3-комн. квартира 61,00 м2 28 914 000
Этаж 2/29
Москва, ЖК Very (Вери) Ботанический сад
Фонвизинская
15 мин.
Строится
Посмотреть 44 квартиры в ЖК Very (Вери) Ботанический сад
4-комн. квартира 85,20 м2 46 860 000
Этаж 31/31
Москва, ЖК Very (Вери) Ботанический сад
Фонвизинская
15 мин.
Сдан
4-комн. квартира 91,10 м2 44 730 100
Этаж 18/29
Москва, ЖК Very (Вери) Ботанический сад
Фонвизинская
15 мин.
Строится
4-комн. квартира 91,30 м2 43 824 000
Этаж 7/29
Москва, ЖК Very (Вери) Ботанический сад
Фонвизинская
15 мин.
Строится
4-комн. квартира 92,00 м2 44 528 000
Этаж 11/29
Москва, ЖК Very (Вери) Ботанический сад
Фонвизинская
15 мин.
Строится
Посмотреть 18 квартир в ЖК Very (Вери) Ботанический сад

Скидки и спецпредложения от застройщиков

ЖК Very (Вери) Ботанический сад на карте

Выгодные предложения на новостройки

Отзывы о ЖК Very (Вери) Ботанический сад

Самый полезный отзыв
Н
21 июля 2021
Оценка:
Не знаю, мне проект прям нравится. Понятное дело, что что-то поменяется к моменту сдачи, но пока все устраивает. На людей с их жалобами я внимания не обращаю, по сути ЖК хороший. Мост мне вообще понравился, на сайте смотрел как будет выглядеть, и эт оч стильно, и я нигде не видел подобного.
Ответить
Полезный отзыв?
Самый новый отзыв
Э
14 ноября
Оценка:
Хочу перевезти маму поближе к нам. Присмотрели в Вери на Ботанической студию. Общий метраж хороший, в теории можно будет у нее потом оставлять детей на выходные с ночевкой. На место уже ездили смотреть, там и двор хороший для деток. Сроок сдачи - через два года, в принципе не так долго, стоимость квартиры хорошая, это самое главное.
Ответить
Полезный отзыв?
Добавьте отзыв, заполнив личные данные, или сначала войдите на сайт, тогда информация будет автоматически взята из личного профиля.
Оценка*