Рейтинг@Mail.ru
Переверните экран
Новостройки Квартиры Ипотека Новостройки Москвы Новостройки Подмосковья Новостройки Новой Москвы Готовые новостройки Новостройки на карте Акции от застройщиков Коммерческие помещения Продавцы и застройщики Панорамы новостроек Видеообзор новостроек Экспертиза новостроек Экология Москвы и Подмосковья Студии 1-комнатные 2-комнатные 3-комнатные Квартиры на карте Ипотечный калькулятор Семейная ипотека Военная ипотека Банки и программы Медиа Новости недвижимости Мнение эксперта Аналитика рынка Покупателю Экспертиза новостроек Эксперты и авторы О проекте Контакты Реклама на сайте Vk Youtube Telegram Дзен Машиноместа Апартаменты #траншевая ипотека #рассрочка IT-ипотека Квартиры со скидками до 35% Видео 360° новостроек Субсидированная застройщиком Rutube Поиск дома в Москве Программа реновации в Москве Новостройки премиум-класса Новостройки бизнес-класса Рассрочка Траншевая ипотека Дома и коттеджи Бизнес-центры Бизнес-центры в Москве Бизнес-центры рядом с метро Строящиеся бизнес-центры Бизнес-центры класса A Бизнес-центры класса B
Данная квартира является лидером продаж среди трехкомнатных квартир в ЖК Very (Вери) Ботанический сад по данным Росреестра
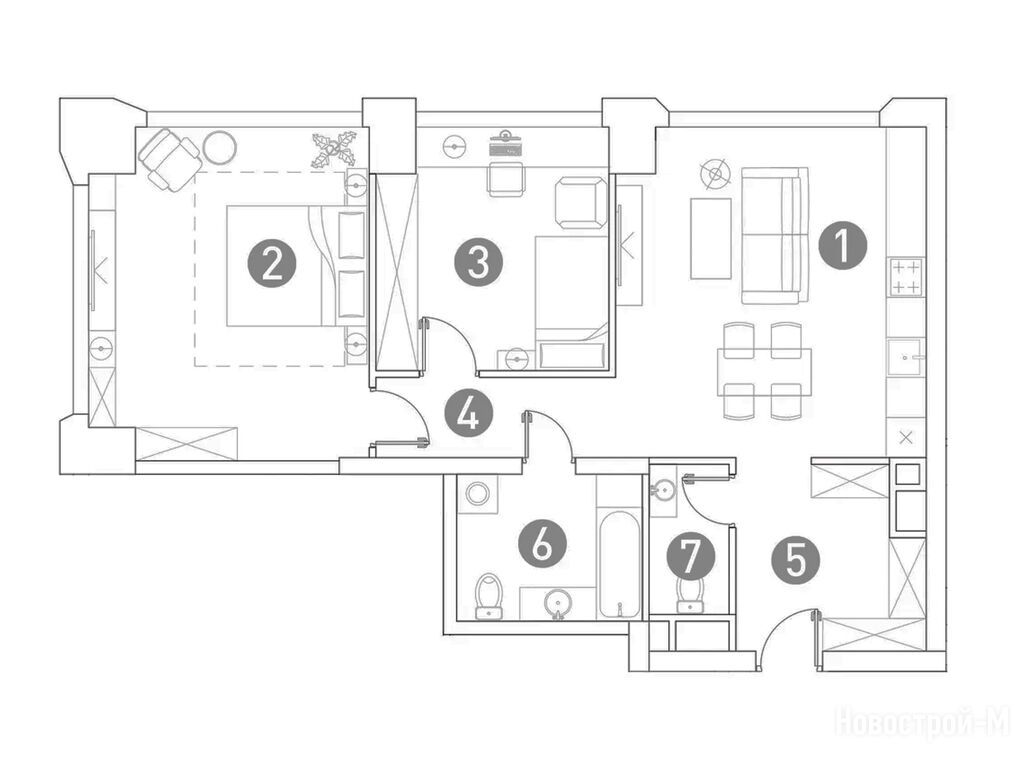
3-комн. квартира, 75.30 м2, 4 этаж
Срок сдачи 4 квартал 2027 года
37 800 600 
502 000 2
обновлено 5 февраля

Описание 3-комн. квартиры

Застройщик
ГК «Основа» ООО «СЗ Останкино»
Срок ГК
4 квартал 2027 года
Стадия строительства
Общая площадь
75.30 м2
Жилая площадь
32.30 м2
Площадь кухни
22.50 м2
Этаж
4 / 29
Отделка
white box
Грузовой лифт
есть

Расположение 3-комн. квартиры

Локация
Станция МЦД
Станция МЦК
Дом
4
Адрес
ул. Ботаническая, д. 29, секция 1

Способы покупки

Особенности

Продается трехкомнатная квартира в новостройке ЖК Very (Вери) Ботанический сад по адресу Москва, СВАО, Марфино, ул. Ботаническая, д. 29. Общая площадь квартиры - 75.3 кв. м. Тип проекта, по которому построен дом — Монолитно-кирпичный, компания-застройщик — ГК «Основа», ООО «СЗ Останкино». Стоимость квартиры — 37 800 600 руб. Способы оплаты можно уточнить у продавца. Срок сдачи — 4 квартал 2027. Более подробная информация по телефону.

Правовые документы

Инфоцентр новостроек
Инфоцентр новостроек
+7 (499) 705-91-41
Время работы 9:00 — 21:00

Похожие квартиры в ЖК Very (Вери) Ботанический сад

2 этаж
из 29 4 квартал 2027
Москва, СВАО
Фонвизинская
15 мин.
4
Корпус
white box
Отделка
3.00 м
Потолки
ЖК Very (Вери) Ботанический сад
37 198 200
ДОМ.РФ, Московский Кредитный Банк, Газпромбанк
20.20%
Ставка
20.01%
Первый взнос
от 627 711 /мес.
Все варианты
2 этаж
из 29 4 квартал 2027
Москва, СВАО
Фонвизинская
15 мин.
4
Корпус
white box
Отделка
3.00 м
Потолки
ЖК Very (Вери) Ботанический сад
37 424 100
ДОМ.РФ, Московский Кредитный Банк, Газпромбанк
20.20%
Ставка
20.01%
Первый взнос
от 631 523 /мес.
Все варианты
3 этаж
из 29 4 квартал 2027
Москва, СВАО
Фонвизинская
15 мин.
4
Корпус
white box
Отделка
3.00 м
Потолки
ЖК Very (Вери) Ботанический сад
37 574 700
ДОМ.РФ, Московский Кредитный Банк, Газпромбанк
20.20%
Ставка
20.01%
Первый взнос
от 634 064 /мес.
Все варианты
Посмотреть все спецпредложения
студия 25,80 м2 18 318 000
Этаж 26/29
Москва, ЖК Very (Вери) Ботанический сад
Фонвизинская
15 мин.
Строится
студия 26,00 м2 16 926 000
Этаж 9/29
Москва, ЖК Very (Вери) Ботанический сад
Фонвизинская
15 мин.
Строится
студия 26,10 м2 18 400 500
Этаж 26/29
Москва, ЖК Very (Вери) Ботанический сад
Фонвизинская
15 мин.
Строится
студия 26,40 м2 16 341 600
Этаж 2/29
Москва, ЖК Very (Вери) Ботанический сад
Фонвизинская
15 мин.
Строится
Посмотреть 13 квартир в ЖК Very (Вери) Ботанический сад
2-комн. квартира 40,50 м2 22 761 000
Этаж 21/29
Москва, ЖК Very (Вери) Ботанический сад
Фонвизинская
15 мин.
Строится
2-комн. квартира 40,70 м2 21 245 400
Этаж 2/29
Москва, ЖК Very (Вери) Ботанический сад
Фонвизинская
15 мин.
Строится
2-комн. квартира 41,10 м2 22 399 500
Этаж 14/29
Москва, ЖК Very (Вери) Ботанический сад
Фонвизинская
15 мин.
Строится
2-комн. квартира 41,50 м2 23 655 000
Этаж 22/29
Москва, ЖК Very (Вери) Ботанический сад
Фонвизинская
15 мин.
Строится
Посмотреть 62 квартиры в ЖК Very (Вери) Ботанический сад
3-комн. квартира 59,90 м2 29 590 600
Этаж 3/29
Москва, ЖК Very (Вери) Ботанический сад
Фонвизинская
15 мин.
Строится
3-комн. квартира 60,70 м2 29 682 300
Этаж 2/29
Москва, ЖК Very (Вери) Ботанический сад
Фонвизинская
15 мин.
Строится
3-комн. квартира 61,00 м2 29 829 000
Этаж 2/29
Москва, ЖК Very (Вери) Ботанический сад
Фонвизинская
15 мин.
Строится
3-комн. квартира 61,30 м2 31 140 400
Этаж 14/29
Москва, ЖК Very (Вери) Ботанический сад
Фонвизинская
15 мин.
Строится
Посмотреть 41 квартира в ЖК Very (Вери) Ботанический сад
4-комн. квартира 91,30 м2 44 737 000
Этаж 7/29
Москва, ЖК Very (Вери) Ботанический сад
Фонвизинская
15 мин.
Строится
4-комн. квартира 92,00 м2 45 448 000
Этаж 11/29
Москва, ЖК Very (Вери) Ботанический сад
Фонвизинская
15 мин.
Строится
4-комн. квартира 110,70 м2 66 973 500
Этаж 26/29
Москва, ЖК Very (Вери) Ботанический сад
Фонвизинская
15 мин.
Строится
4-комн. квартира 113,00 м2 48 590 000
Этаж 2/31
Москва, ЖК Very (Вери) Ботанический сад
Фонвизинская
15 мин.
Сдан
Посмотреть 14 квартир в ЖК Very (Вери) Ботанический сад

Скидки и спецпредложения от застройщиков

ЖК Very (Вери) Ботанический сад на карте

Выгодные предложения на новостройки

Отзывы о ЖК Very (Вери) Ботанический сад

Самый полезный отзыв
Н
21 июля 2021
Оценка:
Не знаю, мне проект прям нравится. Понятное дело, что что-то поменяется к моменту сдачи, но пока все устраивает. На людей с их жалобами я внимания не обращаю, по сути ЖК хороший. Мост мне вообще понравился, на сайте смотрел как будет выглядеть, и эт оч стильно, и я нигде не видел подобного.
Ответить
Полезный отзыв?
Самый новый отзыв
П
20 января
Оценка:
ЖК состоит всего из двух очередей, это тоже плюс, не придется жить в бесконечной стройке, то есть в ближайшие пару лет будет полное благоустройство всей территории.
Ответить
Полезный отзыв?
Добавьте отзыв, заполнив личные данные, или сначала войдите на сайт, тогда информация будет автоматически взята из личного профиля.
Оценка*