Рейтинг@Mail.ru
Переверните экран
Новостройки Квартиры Ипотека Новостройки Москвы Новостройки Подмосковья Новостройки Новой Москвы Готовые новостройки Новостройки на карте Акции от застройщиков Коммерческие помещения Продавцы и застройщики Панорамы новостроек Видеообзор новостроек Экспертиза новостроек Экология Москвы и Подмосковья Студии 1-комнатные 2-комнатные 3-комнатные Квартиры на карте Ипотечный калькулятор Семейная ипотека Военная ипотека Банки и программы Медиа Новости недвижимости Мнение эксперта Аналитика рынка Покупателю Экспертиза новостроек Эксперты и авторы О проекте Контакты Реклама на сайте Vk Youtube Telegram Дзен Машиноместа Апартаменты #траншевая ипотека #рассрочка IT-ипотека Квартиры со скидками до 35% Видео 360° новостроек Субсидированная застройщиком Rutube Поиск дома в Москве Программа реновации в Москве Новостройки премиум-класса Новостройки бизнес-класса Рассрочка Траншевая ипотека Дома и коттеджи Бизнес-центры Бизнес-центры в Москве Бизнес-центры рядом с метро Строящиеся бизнес-центры Бизнес-центры класса A Бизнес-центры класса B
Данная квартира является лидером продаж среди трехкомнатных квартир в ЖК «Новотомилино» по данным Росреестра
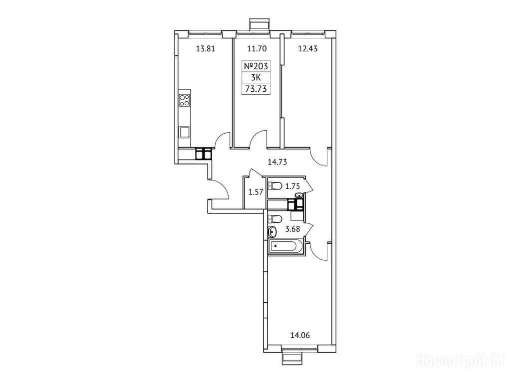
3-комн. квартира, 73.73 м2, 12 этаж
Срок сдачи 4 квартал 2026 года
21 195 062 
287 469 2
обновлено 5 февраля

Описание 3-комн. квартиры

Новостройка
Срок ГК
4 квартал 2026 года
Общая площадь
73.73 м2
Жилая площадь
38.19 м2
Площадь кухни
13.81 м2
Этаж
12 / 17

Расположение 3-комн. квартиры

Метро
Станция МЦД
Панки
25 мин.
Станция МЦК
Дом
5
Адрес
ЖК «Новотомилино», корп. 1-3, 9, секция 3

Способы покупки

Особенности

Продается трехкомнатная квартира в новостройке ЖК «Новотомилино» по адресу Московская область, Люберцы городской округ, Томилино пос., ЖК «Новотомилино», корп. 1-3, 9. Общая площадь квартиры - 73.73 кв. м. Тип проекта, по которому построен дом — Монолитно-кирпичный, компания-застройщик — Группа компаний 3-RED, АО «СЗ«Реалинвест». Стоимость квартиры — 21 195 062 руб. Способы оплаты можно уточнить у продавца. Срок сдачи — 4 квартал 2026. Более подробная информация по телефону.
Инфоцентр новостроек
Инфоцентр новостроек
+7 (499) 705-91-41
Время работы 9:00 — 21:00

Похожие квартиры в ЖК «Новотомилино»

15 этаж
из 17 4 квартал 2026
Московская область, Люберцы городской округ
Панки
25 мин.
5
Корпус
нет данных
Отделка
2.80 м
Потолки
ЖК «Новотомилино»
21 190 510
ВТБ, Промсвязьбанк, СберБанк, Россельхозбанк, Абсолют Банк, ДОМ.РФ
6.00%
Ставка
40.10%
Первый взнос
от 127 048 /мес.
Все варианты
16 этаж
из 17 4 квартал 2026
Московская область, Люберцы городской округ
Панки
25 мин.
5
Корпус
нет данных
Отделка
2.80 м
Потолки
ЖК «Новотомилино»
21 195 062
ВТБ, Промсвязьбанк, СберБанк, Россельхозбанк, Абсолют Банк, ДОМ.РФ
6.00%
Ставка
40.10%
Первый взнос
от 127 075 /мес.
Все варианты
Посмотреть все спецпредложения
студия 19,84 м2 8 529 606
Этаж 13/14
МО, ЖК «Новотомилино»
Панки
25 мин.
Строится
студия 20,16 м2 8 444 114
Этаж 12/13
МО, ЖК «Новотомилино»
Панки
25 мин.
Строится
студия 20,92 м2 8 634 916
Этаж 13/13
МО, ЖК «Новотомилино»
Панки
25 мин.
Строится
студия 21,13 м2 9 302 988
Этаж 5/13
МО, ЖК «Новотомилино»
Панки
25 мин.
Строится
Посмотреть 80 квартир в ЖК «Новотомилино»
1-комн. квартира 32,95 м2 13 035 159
Этаж 13/17
МО, ЖК «Новотомилино»
Панки
25 мин.
Строится
1-комн. квартира 33,13 м2 10 619 140
Этаж 13/14
МО, ЖК «Новотомилино»
Панки
25 мин.
Строится
1-комн. квартира 33,15 м2 12 627 000
Этаж 3/17
МО, ЖК «Новотомилино»
Панки
25 мин.
Строится
1-комн. квартира 33,41 м2 13 093 310
Этаж 13/17
МО, ЖК «Новотомилино»
Панки
25 мин.
Строится
Посмотреть 97 квартир в ЖК «Новотомилино»
2-комн. квартира 37,86 м2 11 789 065
Этаж 15/17
МО, ЖК «Новотомилино»
Панки
25 мин.
Строится
2-комн. квартира 39,02 м2 15 442 900
Этаж 13/14
МО, ЖК «Новотомилино»
Панки
25 мин.
Строится
2-комн. квартира 39,67 м2 13 017 414
Этаж 14/14
МО, ЖК «Новотомилино»
Панки
25 мин.
Строится
2-комн. квартира 39,84 м2 13 172 310
Этаж 7/14
МО, ЖК «Новотомилино»
Панки
25 мин.
Строится
Посмотреть 41 квартира в ЖК «Новотомилино»
3-комн. квартира 70,02 м2 24 637 246
Этаж 14/17
МО, ЖК «Новотомилино»
Панки
25 мин.
Строится
3-комн. квартира 70,22 м2 24 330 057
Этаж 3/17
МО, ЖК «Новотомилино»
Панки
25 мин.
Строится
3-комн. квартира 70,45 м2 19 944 274
Этаж 11/13
МО, ЖК «Новотомилино»
Панки
25 мин.
Строится
3-комн. квартира 70,66 м2 20 110 480
Этаж 8/13
МО, ЖК «Новотомилино»
Панки
25 мин.
Строится
Посмотреть 25 квартир в ЖК «Новотомилино»

Скидки и спецпредложения от застройщиков

ЖК «Новотомилино» на карте

Выгодные предложения на новостройки

Отзывы о ЖК «Новотомилино»

Самый полезный отзыв
А
01 марта 2020
Оценка:
Экология
Способы покупки
Расположение
Звонил в офис продаж, сказали, что скоро уже откроют продажи, получили всю необходимую документацию - заключение о соответствии компании и проектной декларации, кажется так называется
Показать все комментарии
Ответить
Полезный отзыв?
Самый новый отзыв
ЕД
30 мая 2025
Оценка:
Транспортная доступность
Внешний вид фасада
Расположение
До станций Томилино и Панки, конечно, не пять минут пешком, но относительно недалеко – вполне можно добираться. И дома симпатичные, глаз радуют! Особенно порадовал уровень ремонта, он явно выше среднего. Сразу видно, что застройщик не экономил на материалах и отделке.
Ответить
Полезный отзыв?
Добавьте отзыв, заполнив личные данные, или сначала войдите на сайт, тогда информация будет автоматически взята из личного профиля.
Оценка*