Рейтинг@Mail.ru
Переверните экран
Новостройки Квартиры Ипотека Новостройки Москвы Новостройки Подмосковья Новостройки Новой Москвы Готовые новостройки Новостройки на карте Акции от застройщиков Коммерческие помещения Продавцы и застройщики Панорамы новостроек Видеообзор новостроек Экспертиза новостроек Экология Москвы и Подмосковья Студии 1-комнатные 2-комнатные 3-комнатные Квартиры на карте Ипотечный калькулятор Семейная ипотека Военная ипотека Банки и программы Медиа Новости недвижимости Мнение эксперта Аналитика рынка Покупателю Экспертиза новостроек Эксперты и авторы О проекте Контакты Реклама на сайте Vk Youtube Telegram Дзен Машиноместа Апартаменты #траншевая ипотека #рассрочка IT-ипотека Квартиры со скидками до 40% Видео 360° новостроек Субсидированная застройщиком Rutube Поиск дома в Москве Программа реновации в Москве Новостройки премиум-класса Новостройки бизнес-класса Рассрочка Траншевая ипотека ГАЛС Дома и коттеджи Бизнес-центры Бизнес-центры в Москве Бизнес-центры рядом с метро Строящиеся бизнес-центры Бизнес-центры класса A Бизнес-центры класса B ЛСР
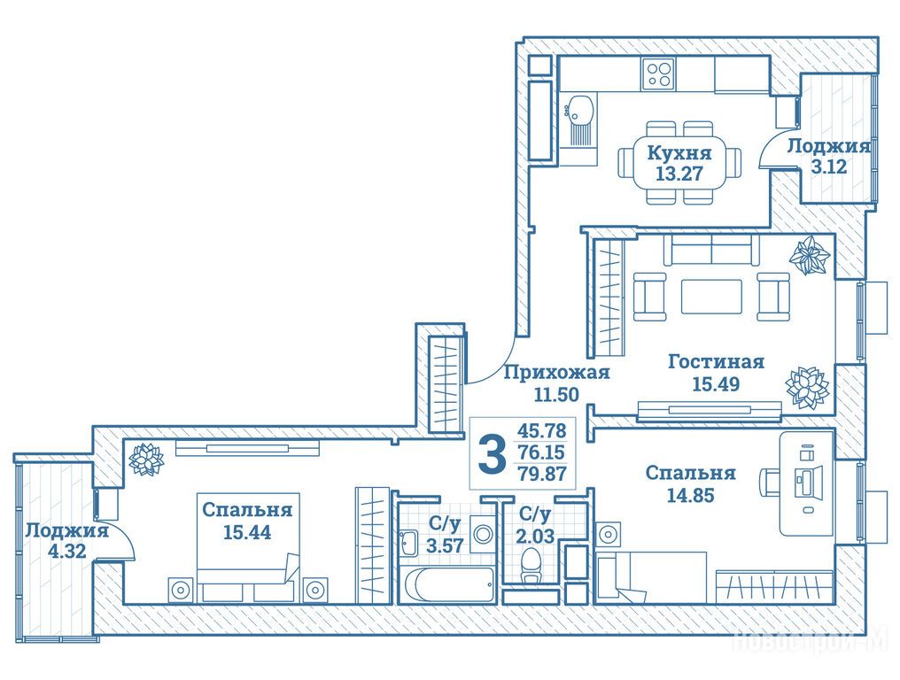
3-комн. квартира, 79.87 м2, 1 этаж
Срок сдачи 1 квартал 2027 года
9 983 750 
125 000 2
обновлено 5 декабря

Описание 3-комн. квартиры

Срок ГК
1 квартал 2027 года
Стадия строительства
отделка фасада и внутренние работы
Общая площадь
79.87 м2
Жилая площадь
45.78 м2
Площадь кухни
13.27 м2
Этаж
1 / 7
Отделка
нет

Расположение 3-комн. квартиры

Метро
Ж/Д-станция
Монино
15 мин.
Кашино
40 мин.
Дом
11
Адрес
ул. Генерала Ковачевича, корп. 11

Способы покупки

Особенности

Продается трехкомнатная квартира в новостройке ЖК «Новоград Монино» по адресу Московская область, Щелковский район, Монино Г/П, ул. Генерала Ковачевича, корп. 11. Общая площадь квартиры - 79.87 кв. м. Тип проекта, по которому построен дом — Монолитно-кирпичный, компания-застройщик — СПЕЦИАЛИЗИРОВАННЫЙ ЗАСТРОЙЩИК «АВЕРУС». Стоимость квартиры — 9 983 750 руб. Способы оплаты можно уточнить у продавца. Срок сдачи — 1 квартал 2027. Более подробная информация по телефону.
Инфоцентр новостроек
Инфоцентр новостроек
+7 (499) 705-91-41
Время работы 9:00 — 21:00
Посмотреть все спецпредложения
Этаж 1/7
МО, ЖК «Новоград Монино»
Щелковская
50 мин.
Строится
Этаж 1/7
МО, ЖК «Новоград Монино»
Щелковская
50 мин.
Строится
Этаж 1/7
МО, ЖК «Новоград Монино»
Щелковская
50 мин.
Строится
Этаж 1/7
МО, ЖК «Новоград Монино»
Щелковская
50 мин.
Строится
Посмотреть 446 квартир в ЖК «Новоград Монино»
Этаж 1/7
МО, ЖК «Новоград Монино»
Щелковская
50 мин.
Строится
Этаж 1/7
МО, ЖК «Новоград Монино»
Щелковская
50 мин.
Строится
Этаж 2/7
МО, ЖК «Новоград Монино»
Щелковская
50 мин.
Строится
Этаж 1/7
МО, ЖК «Новоград Монино»
Щелковская
50 мин.
Строится
Посмотреть 150 квартир в ЖК «Новоград Монино»
3-комн. квартира 78,50 м2 11 304 000
Этаж 2/7
МО, ЖК «Новоград Монино»
Щелковская
50 мин.
Сдан
Этаж 1/7
МО, ЖК «Новоград Монино»
Щелковская
50 мин.
Строится
3-комн. квартира 78,60 м2 11 318 400
Этаж 6/7
МО, ЖК «Новоград Монино»
Щелковская
50 мин.
Сдан
3-комн. квартира 78,70 м2 11 332 800
Этаж 7/7
МО, ЖК «Новоград Монино»
Щелковская
50 мин.
Сдан
Посмотреть 102 квартиры в ЖК «Новоград Монино»

Скидки и спецпредложения от застройщиков

ЖК «Новоград Монино» на карте

Выгодные предложения на новостройки

Отзывы о ЖК «Новоград Монино»

Самый полезный отзыв
ВП
12 декабря 2022
Оценка:
Пока мы видим одни плюсы. А дальше время покажет. Насчет магазинов, кто не знает 10 мин ходу и на территории городка Монино все есть "5"-и ни одна, Ермолино-классный магазин, сбербанк, школа, ДК, спортивный комплекс и много другого. А кому плохо, то видимо им везде будет плохо-это сорт людей такой. .
Ответить
Полезный отзыв?
Самый новый отзыв
ОР
24 сентября
Оценка:
Планировки
Способы покупки
Отличный ЖК, а главное, что уже готовые квартиры, можно прийти и посмотреть, а не брать кота в мешке, поэтому без лишних слов пакую чемоданы
Ответить
Полезный отзыв?
Добавьте отзыв, заполнив личные данные, или сначала войдите на сайт, тогда информация будет автоматически взята из личного профиля.
Оценка*