Рейтинг@Mail.ru
Переверните экран
Новостройки Квартиры Ипотека Новостройки Москвы Новостройки Подмосковья Новостройки Новой Москвы Готовые новостройки Новостройки на карте Акции от застройщиков Коммерческие помещения Продавцы и застройщики Панорамы новостроек Видеообзор новостроек Экспертиза новостроек Экология Москвы и Подмосковья Студии 1-комнатные 2-комнатные 3-комнатные Квартиры на карте Ипотечный калькулятор Семейная ипотека Военная ипотека Банки и программы Медиа Новости недвижимости Мнение эксперта Аналитика рынка Покупателю Экспертиза новостроек Эксперты и авторы О проекте Контакты Реклама на сайте Vk Youtube Telegram Дзен Машиноместа Апартаменты #траншевая ипотека #рассрочка IT-ипотека Квартиры со скидками до 40% Видео 360° новостроек Субсидированная застройщиком Rutube Поиск дома в Москве Программа реновации в Москве Новостройки премиум-класса Новостройки бизнес-класса Рассрочка Траншевая ипотека ГАЛС Дома и коттеджи Бизнес-центры Бизнес-центры в Москве Бизнес-центры рядом с метро Строящиеся бизнес-центры Бизнес-центры класса A Бизнес-центры класса B ЛСР
3-комн. квартира, 75.66 м2, 21 этаж
Срок сдачи 3 квартал 2027 года
55 049 005 
57 342 714
727 584 2
обновлено 5 декабря

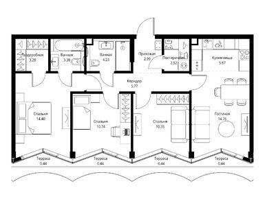
Описание 3-комн. квартиры

Новостройка
Застройщик
Срок ГК
3 квартал 2027 года
Стадия строительства
монтаж нижних этажей
Общая площадь
75.66 м2
Жилая площадь
36.20 м2
Площадь кухни
18.64 м2
Этаж
21 / 24
Отделка
нет

Расположение 3-комн. квартиры

Локация
Метро
ВДНХ
15 мин.
Станция МЦК
Дом
3
Адрес
пр-т Мира, вл. 186А, корп. 3, секция 1

Особенности

Продается трехкомнатная квартира в новостройке ЖК МИRA (МИРА) по адресу Москва, СВАО, Алексеевский, пр-т Мира, вл. 186А, корп. 3. Общая площадь квартиры - 75.66 кв. м. Тип проекта, по которому построен дом — Монолитно-кирпичный, компания-застройщик — MR Group (МР Групп). Стоимость квартиры — 55 049 005 руб. Способы оплаты можно уточнить у продавца. Срок сдачи — 3 квартал 2027. Более подробная информация по телефону.
Инфоцентр новостроек
Инфоцентр новостроек
+7 (499) 705-91-41
Время работы 9:00 — 21:00
Посмотреть все спецпредложения
студия 28,14 м2 23 370 157
Этаж 6/17
Москва, ЖК МИRA (МИРА)
ВДНХ
15 мин.
Строится
студия 28,20 м2 23 146 560
Этаж 9/17
Москва, ЖК МИRA (МИРА)
ВДНХ
15 мин.
Строится
студия 28,22 м2 20 856 838
Этаж 4/17
Москва, ЖК МИRA (МИРА)
ВДНХ
15 мин.
Строится
студия 30,02 м2 23 055 360
Этаж 3/22
Москва, ЖК МИRA (МИРА)
ВДНХ
15 мин.
Строится
Посмотреть 8 квартир в ЖК МИRA (МИРА)
1-комн. квартира 33,47 м2 24 029 117
Этаж 4/17
Москва, ЖК МИRA (МИРА)
ВДНХ
15 мин.
Строится
1-комн. квартира 33,58 м2 26 314 900
Этаж 9/17
Москва, ЖК МИRA (МИРА)
ВДНХ
15 мин.
Строится
1-комн. квартира 33,87 м2 26 600 685
Этаж 6/17
Москва, ЖК МИRA (МИРА)
ВДНХ
15 мин.
Строится
1-комн. квартира 35,69 м2 24 795 699
Этаж 2/24
Москва, ЖК МИRA (МИРА)
ВДНХ
15 мин.
Строится
Посмотреть 79 квартир в ЖК МИRA (МИРА)
2-комн. квартира 54,24 м2 34 960 067
Этаж 5/24
Москва, ЖК МИRA (МИРА)
ВДНХ
15 мин.
Строится
2-комн. квартира 56,56 м2 42 156 657
Этаж 15/22
Москва, ЖК МИRA (МИРА)
ВДНХ
15 мин.
Строится
2-комн. квартира 57,63 м2 36 082 835
Этаж 2/24
Москва, ЖК МИRA (МИРА)
ВДНХ
15 мин.
Строится
2-комн. квартира 58,00 м2 36 080 640
Этаж 2/24
Москва, ЖК МИRA (МИРА)
ВДНХ
15 мин.
Строится
Посмотреть 75 квартир в ЖК МИRA (МИРА)
3-комн. квартира 76,46 м2 53 972 196
Этаж 14/24
Москва, ЖК МИRA (МИРА)
ВДНХ
15 мин.
Строится
3-комн. квартира 78,09 м2 58 518 772
Этаж 17/17
Москва, ЖК МИRA (МИРА)
ВДНХ
15 мин.
Строится
3-комн. квартира 79,29 м2 66 215 396
Этаж 21/22
Москва, ЖК МИRA (МИРА)
ВДНХ
15 мин.
Строится
3-комн. квартира 79,85 м2 68 162 515
Этаж 16/17
Москва, ЖК МИRA (МИРА)
ВДНХ
15 мин.
Строится
Посмотреть 21 квартира в ЖК МИRA (МИРА)
4-комн. квартира 105,46 м2 69 178 385
Этаж 15/22
Москва, ЖК МИRA (МИРА)
ВДНХ
15 мин.
Строится
4-комн. квартира 105,96 м2 69 109 655
Этаж 13/22
Москва, ЖК МИRA (МИРА)
ВДНХ
15 мин.
Строится
4-комн. квартира 106,35 м2 63 813 191
Этаж 3/22
Москва, ЖК МИRA (МИРА)
ВДНХ
15 мин.
Строится
4-комн. квартира 106,68 м2 68 575 611
Этаж 5/22
Москва, ЖК МИRA (МИРА)
ВДНХ
15 мин.
Строится
Посмотреть 6 квартир в ЖК МИRA (МИРА)

Скидки и спецпредложения от застройщиков

ЖК МИRA (МИРА) на карте

Выгодные предложения на новостройки

Отзывы о ЖК МИRA (МИРА)

Самый полезный отзыв
ДС
19 ноября 2024
Оценка:
Планировки
Способы покупки
Внешний вид фасада
Двор, окружение
Расположение
Хороший объект, только ждать долго, поэтому не всем подойдет. Из плюсов - спокойный район с богатой инфраструктурой, авторская архитектура, парк Акведук у ЖК. Панорамные виды на Яузу, парки, ВДНХ. Удобные сервисы и безопасность для каждого жителя в будущем. Понаблюдаю за ростом цен
Ответить
Полезный отзыв?
Самый новый отзыв
ПР
24 сентября
Оценка:
Транспортная доступность
Социальная инфраструктура
Планировки
Способы покупки
Внешний вид фасада
Двор, окружение
Расположение
Из всего того, что я успела посмотреть, а выбирала я долго, в этом жк все оказалось круче всего, так что договор подписан, осталось немного подождать
Ответить
Полезный отзыв?
Добавьте отзыв, заполнив личные данные, или сначала войдите на сайт, тогда информация будет автоматически взята из личного профиля.
Оценка*