Рейтинг@Mail.ru
Переверните экран
Новостройки Квартиры Ипотека Новостройки Москвы Новостройки Подмосковья Новостройки Новой Москвы Готовые новостройки Новостройки на карте Акции от застройщиков Коммерческие помещения Продавцы и застройщики Панорамы новостроек Видеообзор новостроек Экспертиза новостроек Экология Москвы и Подмосковья Студии 1-комнатные 2-комнатные 3-комнатные Квартиры на карте Ипотечный калькулятор Семейная ипотека Военная ипотека Банки и программы Медиа Новости недвижимости Мнение эксперта Аналитика рынка Покупателю Экспертиза новостроек Эксперты и авторы О проекте Контакты Реклама на сайте Vk Youtube Telegram Дзен Машиноместа Апартаменты #траншевая ипотека #рассрочка IT-ипотека Квартиры со скидками до 40% Видео 360° новостроек Субсидированная застройщиком Rutube Поиск дома в Москве Программа реновации в Москве Новостройки премиум-класса Новостройки бизнес-класса Рассрочка Траншевая ипотека ГАЛС Дома и коттеджи Бизнес-центры Бизнес-центры в Москве Бизнес-центры рядом с метро Строящиеся бизнес-центры Бизнес-центры класса A Бизнес-центры класса B ЛСР
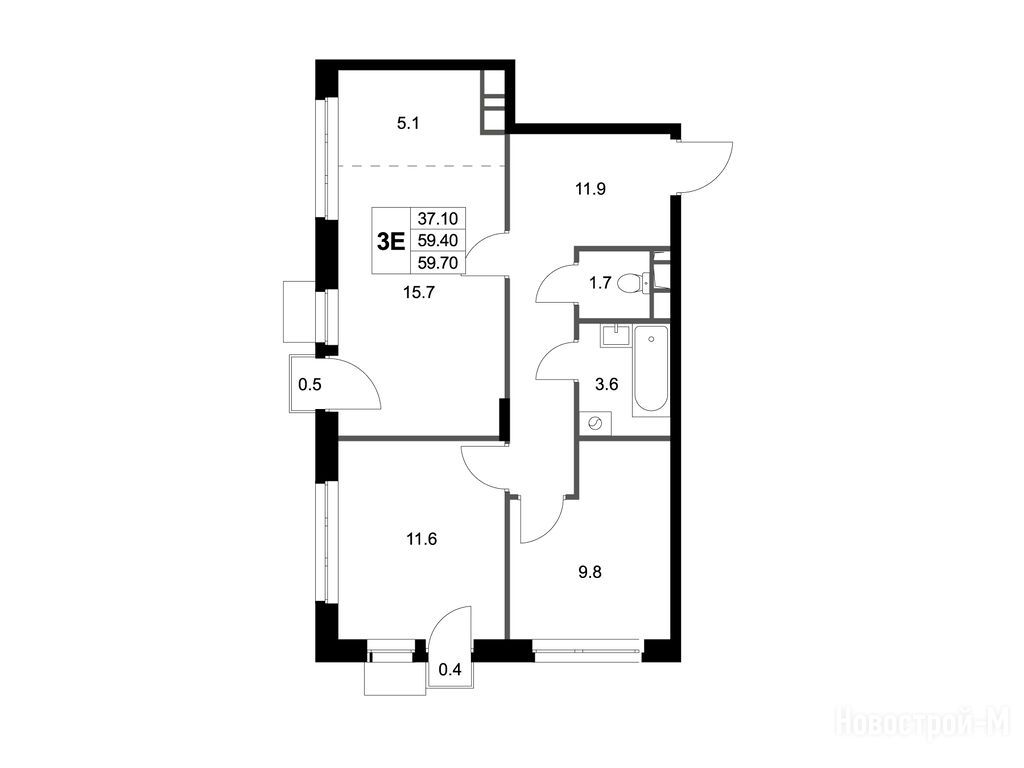
3-комн. квартира, 59.70 м2, 5 этаж
Срок сдачи 4 квартал 2026 года
12 238 500 
205 000 2
обновлено 5 декабря

Описание 3-комн. квартиры

Срок ГК
4 квартал 2026 года
Стадия строительства
монтаж нижних этажей
Общая площадь
59.70 м2
Жилая площадь
37.10 м2
Площадь кухни
20.80 м2
Этаж
5 / 6
Грузовой лифт
есть

Расположение 3-комн. квартиры

Метро
Ж/Д-станция
Дом
1.1
Адрес
ЖК «Легенда Марусино», корп. 1.1, секция 2

Способы покупки

Особенности

Продается трехкомнатная квартира в новостройке ЖК «Легенда Марусино» по адресу Московская область, Люберцы городской округ, Марусино деревня, ЖК «Легенда Марусино», корп. 1.1. Общая площадь квартиры - 59.7 кв. м. Тип проекта, по которому построен дом — Монолитно-кирпичный, компания-застройщик — Некрасовка Девелопмент, СЗ МАРУСИНО. Стоимость квартиры — 12 238 500 руб. Способы оплаты можно уточнить у продавца. Срок сдачи — 4 квартал 2026. Более подробная информация по телефону.
Инфоцентр новостроек
Инфоцентр новостроек
+7 (499) 705-91-41
Время работы 9:00 — 21:00

Похожие квартиры в ЖК «Легенда Марусино»

3 этаж
из 6 4 квартал 2026
Московская область, Люберцы городской округ
Некрасовка
13 мин.
1.1
Корпус
нет данных
Отделка
2.82 м
Потолки
ЖК «Легенда Марусино»
11 462 400
ВТБ, Альфа-Банк, Промсвязьбанк, СберБанк, Совкомбанк, Банк Санкт-Петербург, Абсолют Банк, Т-Банк, ДОМ.РФ, АК БАРС, Металлинвестбанк
6.00%
Ставка
40.10%
Первый взнос
от 68 723 /мес.
Все варианты
Посмотреть все спецпредложения
студия 22,90 м2 6 325 700
Этаж 4/4
МО, ЖК «Легенда Марусино»
Некрасовка
13 мин.
Строится
студия 23,30 м2 4 823 100
Этаж 4/7
МО, ЖК «Легенда Марусино»
Некрасовка
13 мин.
Строится
студия 23,40 м2 4 843 800
Этаж 6/7
МО, ЖК «Легенда Марусино»
Некрасовка
13 мин.
Строится
студия 23,50 м2 6 465 500
Этаж 6/7
МО, ЖК «Легенда Марусино»
Некрасовка
13 мин.
Строится
Посмотреть 18 квартир в ЖК «Легенда Марусино»
Этаж 3/4
МО, ЖК «Легенда Марусино»
Некрасовка
13 мин.
Строится
1-комн. квартира 36,30 м2 6 969 600
Этаж 6/6
МО, ЖК «Легенда Марусино»
Некрасовка
13 мин.
Строится
Этаж 1/4
МО, ЖК «Легенда Марусино»
Некрасовка
13 мин.
Строится
1-комн. квартира 36,50 м2 7 300 000
Этаж 2/4
МО, ЖК «Легенда Марусино»
Некрасовка
13 мин.
Строится
Посмотреть 23 квартиры в ЖК «Легенда Марусино»
Этаж 2/4
МО, ЖК «Легенда Марусино»
Некрасовка
13 мин.
Строится
2-комн. квартира 38,90 м2 9 470 200
Этаж 1/4
МО, ЖК «Легенда Марусино»
Некрасовка
13 мин.
Строится
2-комн. квартира 43,10 м2 8 275 200
Этаж 6/7
МО, ЖК «Легенда Марусино»
Некрасовка
13 мин.
Строится
Этаж 2/6
МО, ЖК «Легенда Марусино»
Некрасовка
13 мин.
Строится
Посмотреть 24 квартиры в ЖК «Легенда Марусино»
Этаж 3/6
МО, ЖК «Легенда Марусино»
Некрасовка
13 мин.
Строится
3-комн. квартира 59,90 м2 10 482 500
Этаж 6/6
МО, ЖК «Легенда Марусино»
Некрасовка
13 мин.
Строится
3-комн. квартира 67,30 м2 15 661 400
Этаж 3/7
МО, ЖК «Легенда Марусино»
Некрасовка
13 мин.
Строится
3-комн. квартира 67,40 м2 13 817 000
Этаж 2/7
МО, ЖК «Легенда Марусино»
Некрасовка
13 мин.
Строится
Посмотреть 17 квартир в ЖК «Легенда Марусино»

Скидки и спецпредложения от застройщиков

ЖК «Легенда Марусино» на карте

Выгодные предложения на новостройки

Отзывы о ЖК «Легенда Марусино»

Самый полезный отзыв
А
20 января
Оценка:
Транспортная доступность
Планировки
Расположение
С мужем приобрели тут квартиру для нашего сына - пока растет. Нравится прежде всего расположение и отличный застройщик. Видели его проекты - проблемных нет. Сдача в 2026 году. Продумана каждая мелочь. Жк комфорт плюс. Ждем с нетерпением ключиков
Ответить
Полезный отзыв?
Самый новый отзыв
А
04 декабря
Оценка:
Прекрасный ЖК в 5 минутах от МКАД. Комфорт класс чувствуется не только в самом проекте, но даже и в обслуживании в центре продаж. Максимально подробно и доброжелательно отвечали на все наши вопросы. Помогли с оформлением и подбором нужного варианта.
Ответить
Полезный отзыв?
Добавьте отзыв, заполнив личные данные, или сначала войдите на сайт, тогда информация будет автоматически взята из личного профиля.
Оценка*