Рейтинг@Mail.ru
Переверните экран
Новостройки Квартиры Ипотека Новостройки Москвы Новостройки Подмосковья Новостройки Новой Москвы Готовые новостройки Новостройки на карте Акции от застройщиков Коммерческие помещения Продавцы и застройщики Панорамы новостроек Видеообзор новостроек Экспертиза новостроек Экология Москвы и Подмосковья Студии 1-комнатные 2-комнатные 3-комнатные Квартиры на карте Ипотечный калькулятор Семейная ипотека Военная ипотека Банки и программы Медиа Новости недвижимости Мнение эксперта Аналитика рынка Покупателю Экспертиза новостроек Эксперты и авторы О проекте Контакты Реклама на сайте Vk Youtube Telegram Дзен Машиноместа Апартаменты #траншевая ипотека #рассрочка IT-ипотека Квартиры со скидками до 40% Видео 360° новостроек Субсидированная застройщиком Rutube Поиск дома в Москве Программа реновации в Москве Новостройки премиум-класса Новостройки бизнес-класса Рассрочка Траншевая ипотека ГАЛС Дома и коттеджи Бизнес-центры Бизнес-центры в Москве Бизнес-центры рядом с метро Строящиеся бизнес-центры Бизнес-центры класса A Бизнес-центры класса B ЛСР
Данная квартира является лидером продаж среди трехкомнатных квартир в ЖК «Ильинойс» по данным Росреестра
Данное предложение на 17.12.2025 неактуально. Пожалуйста, ознакомьтесь с другими похожими предложениями в ЖК «Ильинойс» .
3-комн. квартира, 56.44 м2, 10 этаж
Срок сдачи 4 квартал 2025 года
12 061 759 
13 281 488
213 709 2
обновлено 25 сентября

Описание 3-комн. квартиры

Новостройка
Срок ГК
4 квартал 2025 года
Стадия строительства
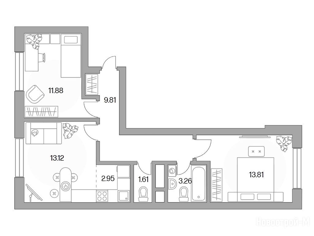
Общая площадь
56.44 м2
Жилая площадь
25.69 м2
Площадь кухни
16.07 м2
Этаж
10 / 24
Отделка
нет

Расположение 3-комн. квартиры

Станция МЦД
Дом
2
Адрес
Ильинский тупик, д. 1, корп. 2, секция 6

Способы покупки

Особенности

Продается трехкомнатная квартира в новостройке ЖК «Ильинойс» по адресу Московская область, Красногорск городской округ, Красногорск, Ильинский тупик, д. 1, корп. 2. Общая площадь квартиры - 56.44 кв. м. Тип проекта, по которому построен дом — Монолитно-кирпичный, компания-застройщик — ГК «Гранель», ООО СЗ ОФЕРТА. Стоимость квартиры — 12 061 759 руб. Способы оплаты можно уточнить у продавца. Срок сдачи — 4 квартал 2025. Более подробная информация по телефону.
ГК «Гранель»
ГК «Гранель»
Сданных 16
|
Строящихся 16
Время работы 09:00 — 21:00
Онлайн-сделка
Выбирайте квартиру в ЖК «Ильинойс» по ценам от застройщика
Посмотреть все спецпредложения
студия 25,98 м2 7 720 161
Этаж 2/24
МО, ЖК «Ильинойс»
Красногорская
15 мин.
Строится
1-комн. квартира 32,50 м2 9 567 857
Этаж 13/22
МО, ЖК «Ильинойс»
Красногорская
15 мин.
Строится
2-комн. квартира 36,94 м2 8 962 112
Этаж 13/22
МО, ЖК «Ильинойс»
Красногорская
15 мин.
Строится
3-комн. квартира 56,45 м2 13 668 419
Этаж 22/22 лоджия
МО, ЖК «Ильинойс»
Красногорская
15 мин.
Строится
студия 24,33 м2 6 509 375
Этаж 9/23
МО, ЖК «Ильинойс»
Красногорская
15 мин.
Строится
студия 24,35 м2 6 514 726
Этаж 9/23
МО, ЖК «Ильинойс»
Красногорская
15 мин.
Строится
Этаж 21/22
МО, ЖК «Ильинойс»
Красногорская
15 мин.
Строится
студия 25,98 м2 7 075 391
Этаж 19/23
МО, ЖК «Ильинойс»
Красногорская
15 мин.
Строится
Посмотреть 40 квартир в ЖК «Ильинойс»
1-комн. квартира 32,50 м2 8 258 900
Этаж 22/22
МО, ЖК «Ильинойс»
Красногорская
15 мин.
Строится
1-комн. квартира 32,80 м2 9 750 536
Этаж 20/22
МО, ЖК «Ильинойс»
Красногорская
15 мин.
Строится
Посмотреть 17 квартир в ЖК «Ильинойс»
2-комн. квартира 35,21 м2 9 048 858
Этаж 19/23
МО, ЖК «Ильинойс»
Красногорская
15 мин.
Строится
2-комн. квартира 35,41 м2 9 100 257
Этаж 22/23
МО, ЖК «Ильинойс»
Красногорская
15 мин.
Строится
2-комн. квартира 35,48 м2 10 479 180
Этаж 22/22
МО, ЖК «Ильинойс»
Красногорская
15 мин.
Строится
2-комн. квартира 36,94 м2 9 068 382
Этаж 20/22
МО, ЖК «Ильинойс»
Красногорская
15 мин.
Строится
Посмотреть 114 квартир в ЖК «Ильинойс»
3-комн. квартира 52,68 м2 12 477 733
Этаж 2/22 лоджия
МО, ЖК «Ильинойс»
Красногорская
15 мин.
Строится
3-комн. квартира 52,79 м2 15 186 786
Этаж 22/22 лоджия
МО, ЖК «Ильинойс»
Красногорская
15 мин.
Строится
3-комн. квартира 54,89 м2 13 001 191
Этаж 2/22 лоджия
МО, ЖК «Ильинойс»
Красногорская
15 мин.
Строится
3-комн. квартира 55,01 м2 13 293 372
Этаж 15/22 лоджия
МО, ЖК «Ильинойс»
Красногорская
15 мин.
Строится
Посмотреть 66 квартир в ЖК «Ильинойс»

Скидки и спецпредложения от застройщиков

ЖК «Ильинойс» на карте

Выгодные предложения на новостройки

Отзывы о ЖК «Ильинойс»

Самый полезный отзыв
О
29 сентября 2022
Оценка:
Способы покупки
Я на протяжении года живу в Красногорске, и влюбилась в этот город. Недавно увидела рекламу нового жилого комплекса Ильинойс, а так как мне бы хотелось приобрести квартиру на этапе застройки, это был отличный вариант для покупки. Оформила все быстро, в офисе продаж мне все объяснили и рассказали, жду срок сдачи))
Ответить
Полезный отзыв?
Самый новый отзыв
О
17 ноября
Оценка:
Транспортная доступность
Расположение
От ЖК «Ильинойс» до транспорта близко - по времени выходит рационально, всего 15 мин до мцд.
Ответить
Полезный отзыв?
Добавьте отзыв, заполнив личные данные, или сначала войдите на сайт, тогда информация будет автоматически взята из личного профиля.
Оценка*