Рейтинг@Mail.ru
Переверните экран
Новостройки Квартиры Ипотека Новостройки Москвы Новостройки Подмосковья Новостройки Новой Москвы Готовые новостройки Новостройки на карте Акции от застройщиков Коммерческие помещения Продавцы и застройщики Панорамы новостроек Видеообзор новостроек Экспертиза новостроек Экология Москвы и Подмосковья Студии 1-комнатные 2-комнатные 3-комнатные Квартиры на карте Ипотечный калькулятор Семейная ипотека Военная ипотека Банки и программы Медиа Новости недвижимости Мнение эксперта Аналитика рынка Покупателю Экспертиза новостроек Эксперты и авторы О проекте Контакты Реклама на сайте Vk Youtube Telegram Дзен Машиноместа Апартаменты #траншевая ипотека #рассрочка ИТ-ипотека Квартиры со скидками до 40% Видео 360° новостроек Субсидированная застройщиком Rutube Поиск дома в Москве Программа реновации в Москве Новостройки премиум-класса Новостройки бизнес-класса Рассрочка Траншевая ипотека Дома и коттеджи Коттеджные поселки в Новой Москве Готовые коттеджные поселки Строящиеся коттеджные поселки Коттеджные поселки в лесу Коттеджные поселки у водоема Коттеджные поселки в ипотеку Бизнес-центры Коттеджи Ипотека со ставкой 0,1%
Данная квартира является лидером продаж среди трехкомнатных квартир в ЖК «Аквилон Бисайд 2.0» по данным Росреестра
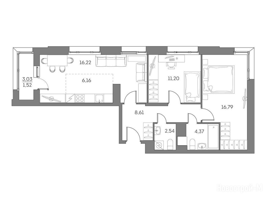
3-комн. квартира, 67.41 м2, 4 этаж
Срок сдачи 2 квартал 2027 года
28 708 166 
425 874 2
обновлено 13 мая

Описание 3-комн. квартиры

Застройщик
Срок ГК
2 квартал 2027 года
Стадия строительства
монтаж верхних этажей
Общая площадь
67.41 м2
Жилая площадь
44.21 м2
Площадь кухни
6.16 м2
Этаж
4 / 25
Отделка
предчистовая
Грузовой лифт
есть

Расположение 3-комн. квартиры

Локация
Станция МЦК
Дом
1 (2 очередь)
Адрес
Рязанский пр-т, 2, секция 5

Способы покупки

Особенности

Продается трехкомнатная квартира в новостройке ЖК «Аквилон Бисайд 2.0» по адресу Москва, ЮВАО, Нижегородский, Рязанский пр-т, 2. Общая площадь квартиры - 67.41 кв. м. Тип проекта, по которому построен дом — Монолитно-кирпичный, компания-застройщик — Группа «Аквилон». Стоимость квартиры — 28 708 166 руб. Способы оплаты можно уточнить у продавца. Срок сдачи — 2 квартал 2027. Более подробная информация по телефону.

Правовые документы

Группа «Аквилон»
Группа «Аквилон»
Сданных 2
|
Строящихся 6
Время работы 09:00 — 21:00
Заказать обратный звонок
Выбирайте квартиру в ЖК «Аквилон Бисайд 2.0» по ценам от застройщика
студия 22,81 м2 16 361 613
Этаж 22/25
Москва, ЖК «Аквилон Бисайд 2.0»
Нижегородская
10 мин.
Строится
студия 22,82 м2 16 330 403
Этаж 23/25
Москва, ЖК «Аквилон Бисайд 2.0»
Нижегородская
10 мин.
Строится
студия 23,09 м2 17 822 326
Этаж 13/14
Москва, ЖК «Аквилон Бисайд 2.0»
Нижегородская
10 мин.
Строится
студия 23,46 м2 16 195 474
Этаж 17/25
Москва, ЖК «Аквилон Бисайд 2.0»
Нижегородская
10 мин.
Строится
Посмотреть 61 квартира в ЖК «Аквилон Бисайд 2.0»
1-комн. квартира 32,54 м2 20 966 986
Этаж 24/25
Москва, ЖК «Аквилон Бисайд 2.0»
Нижегородская
10 мин.
Строится
1-комн. квартира 32,55 м2 20 901 820
Этаж 24/25
Москва, ЖК «Аквилон Бисайд 2.0»
Нижегородская
10 мин.
Строится
1-комн. квартира 36,46 м2 19 238 078
Этаж 19/28
Москва, ЖК «Аквилон Бисайд 2.0»
Нижегородская
10 мин.
Строится
1-комн. квартира 36,47 м2 22 130 762
Этаж 23/28
Москва, ЖК «Аквилон Бисайд 2.0»
Нижегородская
10 мин.
Строится
Посмотреть 25 квартир в ЖК «Аквилон Бисайд 2.0»
2-комн. квартира 34,16 м2 21 599 139
Этаж 9/12
Москва, ЖК «Аквилон Бисайд 2.0»
Нижегородская
10 мин.
Строится
2-комн. квартира 38,54 м2 24 089 942
Этаж 14/14
Москва, ЖК «Аквилон Бисайд 2.0»
Нижегородская
10 мин.
Строится
2-комн. квартира 38,55 м2 23 326 991
Этаж 12/14
Москва, ЖК «Аквилон Бисайд 2.0»
Нижегородская
10 мин.
Строится
2-комн. квартира 39,95 м2 22 499 095
Этаж 5/28
Москва, ЖК «Аквилон Бисайд 2.0»
Нижегородская
10 мин.
Строится
Посмотреть 80 квартир в ЖК «Аквилон Бисайд 2.0»
3-комн. квартира 54,96 м2 27 623 118
Этаж 26/28
Москва, ЖК «Аквилон Бисайд 2.0»
Нижегородская
10 мин.
Строится
3-комн. квартира 56,19 м2 23 547 670
Этаж 24/25
Москва, ЖК «Аквилон Бисайд 2.0»
Нижегородская
10 мин.
Сдан
3-комн. квартира 59,41 м2 29 944 363
Этаж 12/12
Москва, ЖК «Аквилон Бисайд 2.0»
Нижегородская
10 мин.
Строится
3-комн. квартира 59,47 м2 30 533 087
Этаж 12/12
Москва, ЖК «Аквилон Бисайд 2.0»
Нижегородская
10 мин.
Строится
Посмотреть 35 квартир в ЖК «Аквилон Бисайд 2.0»
4-комн. квартира 67,75 м2 33 784 273
Этаж 23/28
Москва, ЖК «Аквилон Бисайд 2.0»
Нижегородская
10 мин.
Строится
4-комн. квартира 85,80 м2 38 672 462
Этаж 3/14
Москва, ЖК «Аквилон Бисайд 2.0»
Нижегородская
10 мин.
Строится
4-комн. квартира 85,81 м2 39 283 443
Этаж 3/14
Москва, ЖК «Аквилон Бисайд 2.0»
Нижегородская
10 мин.
Строится
4-комн. квартира 87,26 м2 33 492 049
Этаж 2/14
Москва, ЖК «Аквилон Бисайд 2.0»
Нижегородская
10 мин.
Строится
Посмотреть 16 квартир в ЖК «Аквилон Бисайд 2.0»

Скидки и спецпредложения от застройщиков

ЖК «Аквилон Бисайд 2.0» на карте

Выгодные предложения на новостройки

Отзывы о ЖК «Аквилон Бисайд 2.0»

Самый полезный отзыв
СВ
09 февраля 2021
Оценка:
Достоинства
Транспортная доступность
Способы покупки
Внешний вид фасада
Расположение
Почитал отзывы, согласен во многом с предыдущим комментарием. Помимо хорошей транспортной развязки хочется отметить и наличие предчистовой отделки в каждой квартире, то есть застройщик взял на себя все грязные работы, а нам остается только навести красоту. При этом не навязывает стандартные варианты отделки, когда и менять что-то - это двойная переплата, и жить в однотипной квартире не очень приятно. Я думаю, что это оптимальный вариант для каждой новостройки
Ответить
Самый новый отзыв
А
12 мая
Оценка:
Взяли квартиру для жизни с ребёнком, сейчас ждём сдачи. Больше всего нравится закрытая территория без машин, во дворе должно быть спокойнее и безопаснее. Район уже обжитый, рядом есть школы и детские сады. Не приходится рассчитывать только на то, что появится внутри ЖК. По проекту обещают озеленение и прогулочные зоны, посмотрим по факту, но в целом рассчитываем на комфортное пространство рядом с домом.
Ответить

Оставить отзыв

Добавьте отзыв, заполнив личные данные, или сначала войдите на сайт, тогда информация будет автоматически взята из личного профиля.
Оценка*