Рейтинг@Mail.ru
Переверните экран
Новостройки Квартиры Ипотека Новостройки Москвы Новостройки Подмосковья Новостройки Новой Москвы Готовые новостройки Новостройки на карте Акции от застройщиков Коммерческие помещения Продавцы и застройщики Панорамы новостроек Видеообзор новостроек Экспертиза новостроек Экология Москвы и Подмосковья Студии 1-комнатные 2-комнатные 3-комнатные Квартиры на карте Ипотечный калькулятор Семейная ипотека Военная ипотека Банки и программы Медиа Новости недвижимости Мнение эксперта Аналитика рынка Покупателю Экспертиза новостроек Эксперты и авторы О проекте Контакты Реклама на сайте Vk Youtube Telegram Дзен Машиноместа Апартаменты #траншевая ипотека #рассрочка ИТ-ипотека Квартиры со скидками до 40% Видео 360° новостроек Субсидированная застройщиком Rutube Поиск дома в Москве Программа реновации в Москве Новостройки премиум-класса Новостройки бизнес-класса Рассрочка Траншевая ипотека Дома и коттеджи Бизнес-центры Бизнес-центры в Москве Бизнес-центры рядом с метро Строящиеся бизнес-центры Бизнес-центры класса A Бизнес-центры класса B Ипотека со ставкой 0,1%
Данная квартира является лидером продаж среди трехкомнатных квартир в ЖК «1-й Шереметьевский» (Первом Шереметьевском) по данным Росреестра
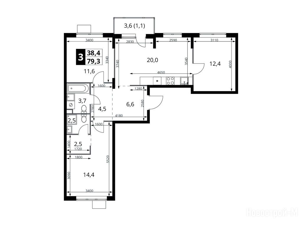
3-комн. квартира, 79.30 м2, 10 этаж
Срок сдачи 1 квартал 2027 года
16 739 120 
20 665 580
211 086 2
обновлено 29 марта

Описание 3-комн. квартиры

Застройщик
Срок ГК
1 квартал 2027 года
Стадия строительства
монтаж верхних этажей
Общая площадь
79.30 м2
Жилая площадь
26.00 м2
Площадь кухни
32.40 м2
Этаж
10 / 11
Отделка
нет

Расположение 3-комн. квартиры

Метро
Станция МЦД
Дом
3
Адрес
ул. Комсомольская улица, д. 16, корп. 3, секция 12

Способы покупки

Особенности

Продается трехкомнатная квартира в новостройке ЖК «1-й Шереметьевский» (Первый Шереметьевский) по адресу Московская область, Химки городской округ, Химки, ул. Комсомольская улица, д. 16, корп. 3. Общая площадь квартиры - 79.3 кв. м. , компания-застройщик — ДСК-1, ГК ФСК. Стоимость квартиры — 16 739 120 руб. Способы оплаты можно уточнить у продавца. Срок сдачи — 1 квартал 2027. Более подробная информация по телефону.
+7 (499) 705-91-41
Время работы 9:00 — 21:00
студия 19,30 м2 6 325 112
Этаж 10/17
МО, ЖК «1-й Шереметьевский» (Первый Шереметьевский)
Подрезково
11 мин.
Строится
студия 22,10 м2 7 423 545
Этаж 15/16
МО, ЖК «1-й Шереметьевский» (Первый Шереметьевский)
Подрезково
11 мин.
Строится
студия 23,00 м2 8 242 464
Этаж 15/16
МО, ЖК «1-й Шереметьевский» (Первый Шереметьевский)
Подрезково
11 мин.
Строится
студия 23,80 м2 6 820 985
Этаж 15/17
МО, ЖК «1-й Шереметьевский» (Первый Шереметьевский)
Подрезково
11 мин.
Строится
Посмотреть 70 квартир в ЖК «1-й Шереметьевский» (Первом Шереметьевском)
Этаж 4/13
МО, ЖК «1-й Шереметьевский» (Первый Шереметьевский)
Подрезково
11 мин.
Сдан
1-комн. квартира 31,40 м2 9 166 005
Этаж 5/16
МО, ЖК «1-й Шереметьевский» (Первый Шереметьевский)
Подрезково
11 мин.
Строится
1-комн. квартира 31,70 м2 9 253 579
Этаж 6/13
МО, ЖК «1-й Шереметьевский» (Первый Шереметьевский)
Подрезково
11 мин.
Строится
1-комн. квартира 31,80 м2 9 295 967
Этаж 10/16
МО, ЖК «1-й Шереметьевский» (Первый Шереметьевский)
Подрезково
11 мин.
Строится
Посмотреть 97 квартир в ЖК «1-й Шереметьевский» (Первом Шереметьевском)
2-комн. квартира 43,50 м2 12 059 070
Этаж 15/16
МО, ЖК «1-й Шереметьевский» (Первый Шереметьевский)
Подрезково
11 мин.
Строится
2-комн. квартира 43,60 м2 11 942 040
Этаж 9/16
МО, ЖК «1-й Шереметьевский» (Первый Шереметьевский)
Подрезково
11 мин.
Строится
2-комн. квартира 44,90 м2 17 040 240
Этаж 14/16
МО, ЖК «1-й Шереметьевский» (Первый Шереметьевский)
Подрезково
11 мин.
Строится
2-комн. квартира 45,10 м2 17 005 632
Этаж 8/16
МО, ЖК «1-й Шереметьевский» (Первый Шереметьевский)
Подрезково
11 мин.
Строится
Посмотреть 111 квартир в ЖК «1-й Шереметьевский» (Первом Шереметьевском)
3-комн. квартира 60,50 м2 15 049 436
Этаж 2/16
МО, ЖК «1-й Шереметьевский» (Первый Шереметьевский)
Подрезково
11 мин.
Строится
3-комн. квартира 60,90 м2 15 275 303
Этаж 6/16
МО, ЖК «1-й Шереметьевский» (Первый Шереметьевский)
Подрезково
11 мин.
Строится
3-комн. квартира 62,50 м2 20 397 936
Этаж 2/16
МО, ЖК «1-й Шереметьевский» (Первый Шереметьевский)
Подрезково
11 мин.
Строится
3-комн. квартира 62,70 м2 20 623 987
Этаж 3/16
МО, ЖК «1-й Шереметьевский» (Первый Шереметьевский)
Подрезково
11 мин.
Строится
Посмотреть 38 квартир в ЖК «1-й Шереметьевский» (Первом Шереметьевском)

Скидки и спецпредложения от застройщиков

ЖК «1-й Шереметьевский» (Первый Шереметьевский) на карте

Выгодные предложения на новостройки

Отзывы о ЖК «1-й Шереметьевский» (Первом Шереметьевском)

Самый полезный отзыв
П
07 мая 2023
Оценка:
Ждал старта продаж. Буду брать квартиру под инвест. С застройщиком уже знаком, живу в комплексе Южная Битца. Там брал квартиру с готовой отделкой, здесь буду вайт бокс. По качеству особых претензий не было, недочеты имелись, но не критичные. Посмотрел цены. Конечно, прайс уже не такой, когда покупал свою квартиру, но если брать нынешние рыночные цены, то здесь они адекватные. Присмотрел несколько вариантов однушек, на сл неделе еду в ОП.
Ответить
Самый новый отзыв
Ж
13 марта
Оценка:
Мы купили квартиру в строящейся очереди по семейной ипотеке, ставка была выгодной. Ждём сдачи своего дома и уже видим, как растут новые корпуса рядом с уже готовыми.
Ответить

Оставить отзыв

Добавьте отзыв, заполнив личные данные, или сначала войдите на сайт, тогда информация будет автоматически взята из личного профиля.
Оценка*