Рейтинг@Mail.ru
Переверните экран
Новостройки Квартиры Ипотека Новостройки Москвы Новостройки Подмосковья Новостройки Новой Москвы Готовые новостройки Новостройки на карте Акции от застройщиков Коммерческие помещения Продавцы и застройщики Панорамы новостроек Видеообзор новостроек Экспертиза новостроек Экология Москвы и Подмосковья Студии 1-комнатные 2-комнатные 3-комнатные Квартиры на карте Ипотечный калькулятор Семейная ипотека Военная ипотека Банки и программы Медиа Новости недвижимости Мнение эксперта Аналитика рынка Покупателю Экспертиза новостроек Эксперты и авторы О проекте Контакты Реклама на сайте Vk Youtube Telegram Дзен Машиноместа Апартаменты #траншевая ипотека #рассрочка IT-ипотека Квартиры со скидками до 40% Видео 360° новостроек Субсидированная застройщиком Rutube Поиск дома в Москве Программа реновации в Москве Новостройки премиум-класса Новостройки бизнес-класса Рассрочка Траншевая ипотека ГАЛС Дома и коттеджи Бизнес-центры Бизнес-центры в Москве Бизнес-центры рядом с метро Строящиеся бизнес-центры Бизнес-центры класса A Бизнес-центры класса B ЛСР
Данная квартира является лидером продаж среди трехкомнатных квартир в ЖК «1-й Шереметьевский» (Первом Шереметьевском) по данным Росреестра
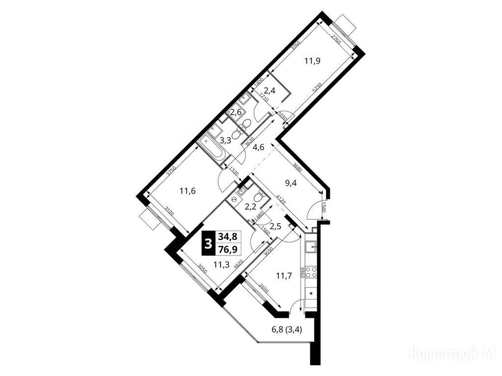
3-комн. квартира, 76.90 м2, 12 этаж
Срок сдачи 1 квартал 2027 года
19 578 740 
254 600 2
обновлено 5 декабря

Описание 3-комн. квартиры

Застройщик
Срок ГК
1 квартал 2027 года
Стадия строительства
монтаж средних этажей
Общая площадь
76.90 м2
Жилая площадь
34.80 м2
Площадь кухни
11.70 м2
Этаж
12 / 17
Отделка
нет

Расположение 3-комн. квартиры

Метро
Станция МЦД
Дом
3
Адрес
ул. Комсомольская улица, д. 16, корп. 3, секция 8

Способы покупки

Особенности

Продается трехкомнатная квартира в новостройке ЖК «1-й Шереметьевский» (Первый Шереметьевский) по адресу Московская область, Химки городской округ, Химки, ул. Комсомольская улица, д. 16, корп. 3. Общая площадь квартиры - 76.9 кв. м. , компания-застройщик — ДСК-1, ГК ФСК. Стоимость квартиры — 19 578 740 руб. Способы оплаты можно уточнить у продавца. Срок сдачи — 1 квартал 2027. Более подробная информация по телефону.
+7 (499) 705-91-41
Время работы 9:00 — 21:00

Похожие квартиры в ЖК «1-й Шереметьевский» (Первом Шереметьевском)

10 этаж
из 17 1 квартал 2027
Московская область, Химки городской округ
Подрезково
11 мин.
3
Корпус
нет
Отделка
0.00 м
Потолки
ЖК «1-й Шереметьевский» (Первый Шереметьевский)
19 501 840
ВТБ, Примсоцбанк, Россельхозбанк, ДОМ.РФ, Банк Санкт-Петербург, Уралсиб, СберБанк, Московский Кредитный Банк, Совкомбанк, Абсолют Банк, МТС Банк
6.00%
Ставка
40.10%
Первый взнос
от 116 923 /мес.
Все варианты
Посмотреть все спецпредложения
студия 19,30 м2 6 881 840
Этаж 10/17
МО, ЖК «1-й Шереметьевский» (Первый Шереметьевский)
Подрезково
11 мин.
Строится
студия 19,40 м2 7 533 408
Этаж 10/16
МО, ЖК «1-й Шереметьевский» (Первый Шереметьевский)
Подрезково
11 мин.
Строится
студия 21,80 м2 7 695 226
Этаж 2/16
МО, ЖК «1-й Шереметьевский» (Первый Шереметьевский)
Подрезково
11 мин.
Строится
студия 22,10 м2 7 939 027
Этаж 14/16
МО, ЖК «1-й Шереметьевский» (Первый Шереметьевский)
Подрезково
11 мин.
Строится
Посмотреть 128 квартир в ЖК «1-й Шереметьевский» (Первом Шереметьевском)
1-комн. квартира 32,30 м2 11 992 990
Этаж 15/16
МО, ЖК «1-й Шереметьевский» (Первый Шереметьевский)
Подрезково
11 мин.
Строится
1-комн. квартира 32,40 м2 12 013 920
Этаж 14/16
МО, ЖК «1-й Шереметьевский» (Первый Шереметьевский)
Подрезково
11 мин.
Строится
1-комн. квартира 32,50 м2 12 116 000
Этаж 16/16
МО, ЖК «1-й Шереметьевский» (Первый Шереметьевский)
Подрезково
11 мин.
Строится
1-комн. квартира 32,70 м2 12 671 250
Этаж 10/16
МО, ЖК «1-й Шереметьевский» (Первый Шереметьевский)
Подрезково
11 мин.
Строится
Посмотреть 99 квартир в ЖК «1-й Шереметьевский» (Первом Шереметьевском)
2-комн. квартира 42,40 м2 13 436 560
Этаж 5/17
МО, ЖК «1-й Шереметьевский» (Первый Шереметьевский)
Подрезково
11 мин.
Строится
2-комн. квартира 44,90 м2 17 166 550
Этаж 14/16
МО, ЖК «1-й Шереметьевский» (Первый Шереметьевский)
Подрезково
11 мин.
Строится
2-комн. квартира 45,10 м2 17 127 900
Этаж 8/16
МО, ЖК «1-й Шереметьевский» (Первый Шереметьевский)
Подрезково
11 мин.
Строится
2-комн. квартира 46,40 м2 15 571 840
Этаж 16/16
МО, ЖК «1-й Шереметьевский» (Первый Шереметьевский)
Подрезково
11 мин.
Строится
Посмотреть 136 квартир в ЖК «1-й Шереметьевский» (Первом Шереметьевском)
3-комн. квартира 62,50 м2 20 935 350
Этаж 2/16
МО, ЖК «1-й Шереметьевский» (Первый Шереметьевский)
Подрезково
11 мин.
Строится
3-комн. квартира 62,70 м2 19 242 630
Этаж 14/16
МО, ЖК «1-й Шереметьевский» (Первый Шереметьевский)
Подрезково
11 мин.
Строится
3-комн. квартира 62,80 м2 19 398 920
Этаж 16/16
МО, ЖК «1-й Шереметьевский» (Первый Шереметьевский)
Подрезково
11 мин.
Строится
3-комн. квартира 62,90 м2 19 209 660
Этаж 10/16
МО, ЖК «1-й Шереметьевский» (Первый Шереметьевский)
Подрезково
11 мин.
Строится
Посмотреть 48 квартир в ЖК «1-й Шереметьевский» (Первом Шереметьевском)

Скидки и спецпредложения от застройщиков

ЖК «1-й Шереметьевский» (Первый Шереметьевский) на карте

Выгодные предложения на новостройки

Отзывы о ЖК «1-й Шереметьевский» (Первом Шереметьевском)

Самый полезный отзыв
П
07 мая 2023
Оценка:
Ждал старта продаж. Буду брать квартиру под инвест. С застройщиком уже знаком, живу в комплексе Южная Битца. Там брал квартиру с готовой отделкой, здесь буду вайт бокс. По качеству особых претензий не было, недочеты имелись, но не критичные. Посмотрел цены. Конечно, прайс уже не такой, когда покупал свою квартиру, но если брать нынешние рыночные цены, то здесь они адекватные. Присмотрел несколько вариантов однушек, на сл неделе еду в ОП.
Ответить
Полезный отзыв?
Самый новый отзыв
С
03 декабря
Оценка:
Социальная инфраструктура
Планировки
Внешний вид фасада
Для меня решающим при покупке стала опция с готовой кухней. Я не хотел после переезда сразу затевать ремонт, бегать по строительным магазинам, поэтому выбрал с мебелью и с кухней сразу. Да что-то в любом случае нужно докупить, но лучше уж так.
Ответить
Полезный отзыв?
Добавьте отзыв, заполнив личные данные, или сначала войдите на сайт, тогда информация будет автоматически взята из личного профиля.
Оценка*