Рейтинг@Mail.ru
Переверните экран
Новостройки Квартиры Ипотека Новостройки Москвы Новостройки Подмосковья Новостройки Новой Москвы Готовые новостройки Новостройки на карте Акции от застройщиков Коммерческие помещения Продавцы и застройщики Панорамы новостроек Видеообзор новостроек Экспертиза новостроек Экология Москвы и Подмосковья Студии 1-комнатные 2-комнатные 3-комнатные Квартиры на карте Ипотечный калькулятор Семейная ипотека Военная ипотека Банки и программы Медиа Новости недвижимости Мнение эксперта Аналитика рынка Покупателю Экспертиза новостроек Эксперты и авторы О проекте Контакты Реклама на сайте Vk Youtube Telegram Дзен Машиноместа Апартаменты #траншевая ипотека #рассрочка IT-ипотека Квартиры со скидками до 40% Видео 360° новостроек Субсидированная застройщиком Rutube Поиск дома в Москве Программа реновации в Москве Новостройки премиум-класса Новостройки бизнес-класса Рассрочка Траншевая ипотека ГАЛС Дома и коттеджи Бизнес-центры Бизнес-центры в Москве Бизнес-центры рядом с метро Строящиеся бизнес-центры Бизнес-центры класса A Бизнес-центры класса B ЛСР
Данная квартира является лидером продаж среди трехкомнатных квартир в Первый Дубровский по данным Росреестра
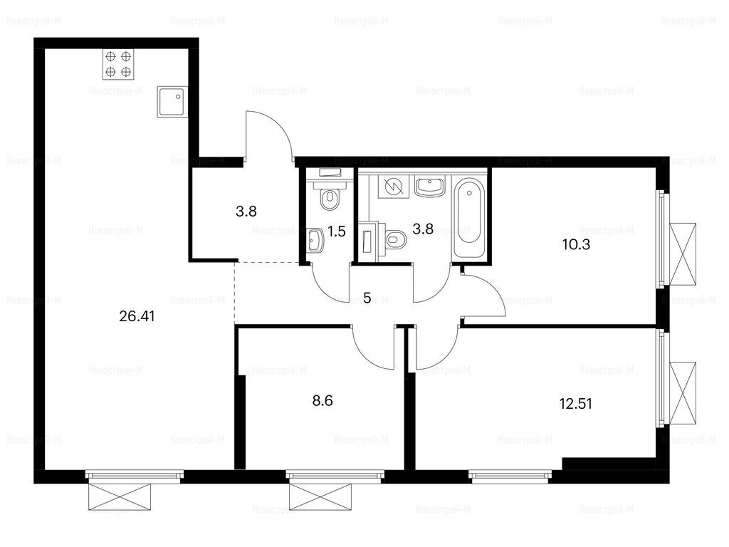
3-комн. квартира, 71.92 м2, 31 этаж
Срок сдачи 1 квартал 2026 года
30 760 184 
427 700 2
обновлено 5 декабря

Описание 3-комн. квартиры

Новостройка
Застройщик
Срок ГК
1 квартал 2026 года
Тип проекта
Общая площадь
71.92 м2
Этаж
31 / 38
Отделка
чистовая
Грузовой лифт
есть

Расположение 3-комн. квартиры

Локация
Станция МЦД
Станция МЦК
Дом
1.4
Адрес
1-й Дубровский пр-д, вл. 78/14, секция 2

Способы покупки

Особенности

Продается трехкомнатная квартира в новостройке Первый Дубровский по адресу Москва, ЮВАО, Южнопортовый, 1-й Дубровский пр-д, вл. 78/14. Общая площадь квартиры - 71.92 кв. м. Тип проекта, по которому построен дом — Монолитно-кирпичный,Монолитно-панельный, компания-застройщик — ПИК, СЗ «ДРСУ-34». Стоимость квартиры — 30 760 184 руб. Способы оплаты можно уточнить у продавца. Срок сдачи — 1 квартал 2026. Более подробная информация по телефону.

Похожие квартиры в Первый Дубровский

8 этаж
из 38 1 квартал 2026
Москва, ЮВАО
Волгоградский Проспект
5 мин.
1.4
Корпус
чистовая
Отделка
2.60 м
Потолки
Первый Дубровский
30 501 272
ВТБ, СберБанк, Альфа-Банк, ДОМ.РФ, Московский Кредитный Банк
6.00%
Ставка
50.10%
Первый взнос
от 182 871 /мес.
Все варианты
18 этаж
из 38 1 квартал 2026
Москва, ЮВАО
Волгоградский Проспект
5 мин.
1.4
Корпус
чистовая
Отделка
2.60 м
Потолки
Первый Дубровский
30 580 384
ВТБ, СберБанк, Альфа-Банк, ДОМ.РФ, Московский Кредитный Банк
6.00%
Ставка
50.10%
Первый взнос
от 183 345 /мес.
Все варианты
16 этаж
из 38 1 квартал 2026
Москва, ЮВАО
Волгоградский Проспект
5 мин.
1.4
Корпус
чистовая
Отделка
2.60 м
Потолки
Первый Дубровский
30 580 384
ВТБ, СберБанк, Альфа-Банк, ДОМ.РФ, Московский Кредитный Банк
6.00%
Ставка
50.10%
Первый взнос
от 183 345 /мес.
Все варианты
22 этаж
из 38 1 квартал 2026
Москва, ЮВАО
Волгоградский Проспект
5 мин.
1.4
Корпус
чистовая
Отделка
2.60 м
Потолки
Первый Дубровский
30 630 728
ВТБ, СберБанк, Альфа-Банк, ДОМ.РФ, Московский Кредитный Банк
6.00%
Ставка
50.10%
Первый взнос
от 183 647 /мес.
Все варианты
24 этаж
из 38 1 квартал 2026
Москва, ЮВАО
Волгоградский Проспект
5 мин.
1.4
Корпус
чистовая
Отделка
2.60 м
Потолки
Первый Дубровский
30 666 688
ВТБ, СберБанк, Альфа-Банк, ДОМ.РФ, Московский Кредитный Банк
6.00%
Ставка
50.10%
Первый взнос
от 183 862 /мес.
Все варианты
26 этаж
из 38 1 квартал 2026
Москва, ЮВАО
Волгоградский Проспект
5 мин.
1.4
Корпус
чистовая
Отделка
2.60 м
Потолки
Первый Дубровский
30 702 648
ВТБ, СберБанк, Альфа-Банк, ДОМ.РФ, Московский Кредитный Банк
6.00%
Ставка
50.10%
Первый взнос
от 184 078 /мес.
Все варианты
29 этаж
из 38 1 квартал 2026
Москва, ЮВАО
Волгоградский Проспект
5 мин.
1.4
Корпус
чистовая
Отделка
2.60 м
Потолки
Первый Дубровский
30 745 800
ВТБ, СберБанк, Альфа-Банк, ДОМ.РФ, Московский Кредитный Банк
6.00%
Ставка
50.10%
Первый взнос
от 184 337 /мес.
Все варианты
Посмотреть все спецпредложения
студия 19,60 м2 13 445 600
Этаж 13/38
Москва, Первый Дубровский
Волгоградский Проспект
5 мин.
Сдан
студия 20,01 м2 14 183 088
Этаж 28/38
Москва, Первый Дубровский
Волгоградский Проспект
5 мин.
Строится
студия 20,08 м2 13 887 328
Этаж 28/33
Москва, Первый Дубровский
Волгоградский Проспект
5 мин.
Строится
студия 20,10 м2 16 853 850
Этаж 29/38
Москва, Первый Дубровский
Волгоградский Проспект
5 мин.
Строится
студия 20,01 м2 16 928 460
Этаж 27/38
Москва, Первый Дубровский
Волгоградский Проспект
5 мин.
Строится
студия 20,08 м2 16 995 712
Этаж 18/33
Москва, Первый Дубровский
Волгоградский Проспект
5 мин.
Строится
студия 20,10 м2 16 853 850
Этаж 29/38
Москва, Первый Дубровский
Волгоградский Проспект
5 мин.
Строится
студия 23,71 м2 18 204 538
Этаж 32/38
Москва, Первый Дубровский
Волгоградский Проспект
5 мин.
Строится
Посмотреть 20 квартир в Первый Дубровский
1-комн. квартира 32,11 м2 21 227 921
Этаж 31/38
Москва, Первый Дубровский
Волгоградский Проспект
5 мин.
Строится
1-комн. квартира 32,21 м2 20 849 533
Этаж 24/38
Москва, Первый Дубровский
Волгоградский Проспект
5 мин.
Строится
1-комн. квартира 32,49 м2 21 030 777
Этаж 29/33
Москва, Первый Дубровский
Волгоградский Проспект
5 мин.
Строится
1-комн. квартира 33,91 м2 21 312 435
Этаж 29/38
Москва, Первый Дубровский
Волгоградский Проспект
5 мин.
Строится
Посмотреть 50 квартир в Первый Дубровский
2-комн. квартира 45,61 м2 23 945 250
Этаж 32/38
Москва, Первый Дубровский
Волгоградский Проспект
5 мин.
Строится
2-комн. квартира 46,52 м2 23 901 976
Этаж 33/33
Москва, Первый Дубровский
Волгоградский Проспект
5 мин.
Строится
2-комн. квартира 48,01 м2 24 158 632
Этаж 19/38
Москва, Первый Дубровский
Волгоградский Проспект
5 мин.
Строится
2-комн. квартира 49,04 м2 24 402 304
Этаж 33/33
Москва, Первый Дубровский
Волгоградский Проспект
5 мин.
Строится
Посмотреть 52 квартиры в Первый Дубровский
3-комн. квартира 70,00 м2 30 373 000
Этаж 4/38
Москва, Первый Дубровский
Волгоградский Проспект
5 мин.
Сдан
3-комн. квартира 71,92 м2 30 580 384
Этаж 18/38
Москва, Первый Дубровский
Волгоградский Проспект
5 мин.
Строится
3-комн. квартира 72,80 м2 33 160 400
Этаж 22/28
Москва, Первый Дубровский
Волгоградский Проспект
5 мин.
Сдан
3-комн. квартира 72,84 м2 31 612 560
Этаж 18/33
Москва, Первый Дубровский
Волгоградский Проспект
5 мин.
Строится
Посмотреть 16 квартир в Первый Дубровский

Скидки и спецпредложения от застройщиков

Первый Дубровский на карте

Выгодные предложения на новостройки

Отзывы о Первый Дубровский

Самый полезный отзыв
А
01 августа 2019
Оценка:
ПИК взял старую площадку у метро Волгоградский проспект, удачное расположение. напротив, кстати, перспективный проект апартаментов и вторая очередь Метрополии.
Показать все комментарии
Ответить
Полезный отзыв?
Самый новый отзыв
СВ
10 ноября
Оценка:
Социальная инфраструктура
Двор, окружение
Не территории будет детский сад на 150 малышей и школа для 350 учеников. А во дворе — зелёный парк с детскими и спортивными площадками и зонами для отдыха. На первых этажах откроются магазины, кафе и другие сервисы. В общем, будет очень даже прилично
Ответить
Полезный отзыв?
Добавьте отзыв, заполнив личные данные, или сначала войдите на сайт, тогда информация будет автоматически взята из личного профиля.
Оценка*