Рейтинг@Mail.ru
Переверните экран
Новостройки Квартиры Ипотека Новостройки Москвы Новостройки Подмосковья Новостройки Новой Москвы Готовые новостройки Новостройки на карте Акции от застройщиков Коммерческие помещения Продавцы и застройщики Панорамы новостроек Видеообзор новостроек Экспертиза новостроек Экология Москвы и Подмосковья Студии 1-комнатные 2-комнатные 3-комнатные Квартиры на карте Ипотечный калькулятор Семейная ипотека Военная ипотека Банки и программы Медиа Новости недвижимости Мнение эксперта Аналитика рынка Покупателю Экспертиза новостроек Эксперты и авторы О проекте Контакты Реклама на сайте Vk Youtube Telegram Дзен Машиноместа Апартаменты #траншевая ипотека #рассрочка IT-ипотека Квартиры со скидками до 40% Видео 360° новостроек Субсидированная застройщиком Rutube Поиск дома в Москве Программа реновации в Москве Новостройки премиум-класса Новостройки бизнес-класса Рассрочка Траншевая ипотека ГАЛС Дома и коттеджи Бизнес-центры Бизнес-центры в Москве Бизнес-центры рядом с метро Строящиеся бизнес-центры Бизнес-центры класса A Бизнес-центры класса B ЛСР
Данная квартира является лидером продаж среди трехкомнатных квартир в МФК «Варшавские ворота» по данным Росреестра
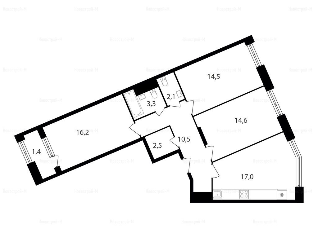
3-комн. квартира, 82.10 м2, 2 этаж
Срок сдачи 2 квартал 2026 года
29 166 846 
355 260 2
обновлено 5 декабря

Описание 3-комн. квартиры

Застройщик
Срок ГК
2 квартал 2026 года
Тип проекта
Общая площадь
82.10 м2
Жилая площадь
45.30 м2
Площадь кухни
17.00 м2
Этаж
2 / 8
Отделка
нет

Расположение 3-комн. квартиры

Локация
Станция МЦД
Дом
1
Адрес
Варшавское ш., д. 141, секция 1.5

Способы покупки

Особенности

Продается трехкомнатная квартира в новостройке МФК «Варшавские ворота» по адресу Москва, ЮАО, Чертаново Южное, Варшавское ш., д. 141. Общая площадь квартиры - 82.1 кв. м. Тип проекта, по которому построен дом — Монолитно-кирпичный, компания-застройщик — РГ-Девелопмент. Стоимость квартиры — 29 166 846 руб. Способы оплаты можно уточнить у продавца. Срок сдачи — 2 квартал 2026. Более подробная информация по телефону.
Инфоцентр новостроек
Инфоцентр новостроек
+7 (499) 705-91-41
Время работы 9:00 — 21:00

Похожие квартиры в МФК «Варшавские ворота»

2 этаж
из 30 2 квартал 2026
Москва, ЮАО
Аннино
5 мин.
1
Корпус
нет
Отделка
2.70 м
Потолки
МФК «Варшавские ворота»
28 617 104
Московский Кредитный Банк, СберБанк, АК БАРС, Банк Россия, Банк Санкт-Петербург, Уралсиб, Металлинвестбанк, ДОМ.РФ, Всероссийский банк развития регионов, Совкомбанк, Абсолют Банк, МТС Банк, Альфа-Банк, Газпромбанк, ВТБ
2.99%
Ставка
30.00%
Первый взнос
от 120 497 /мес.
Все варианты
5 этаж
из 30 2 квартал 2026
Москва, ЮАО
Аннино
5 мин.
1
Корпус
нет
Отделка
2.70 м
Потолки
МФК «Варшавские ворота»
30 380 859
Московский Кредитный Банк, СберБанк, АК БАРС, Банк Россия, Банк Санкт-Петербург, Уралсиб, Металлинвестбанк, ДОМ.РФ, Всероссийский банк развития регионов, Совкомбанк, Абсолют Банк, МТС Банк, Альфа-Банк, Газпромбанк, ВТБ
2.99%
Ставка
30.00%
Первый взнос
от 127 923 /мес.
Все варианты
8 этаж
из 8 2 квартал 2026
Москва, ЮАО
Аннино
5 мин.
1
Корпус
нет
Отделка
2.70 м
Потолки
МФК «Варшавские ворота»
31 297 095
Московский Кредитный Банк, СберБанк, АК БАРС, Банк Россия, Банк Санкт-Петербург, Уралсиб, Металлинвестбанк, ДОМ.РФ, Всероссийский банк развития регионов, Совкомбанк, Абсолют Банк, МТС Банк, Альфа-Банк, Газпромбанк, ВТБ
2.99%
Ставка
30.00%
Первый взнос
от 131 781 /мес.
Все варианты
Посмотреть все спецпредложения
1-комн. квартира 37,10 м2 17 458 518
Этаж 30/30
Москва, МФК «Варшавские ворота»
Аннино
5 мин.
Строится
1-комн. квартира 37,70 м2 17 214 951
Этаж 6/30
Москва, МФК «Варшавские ворота»
Аннино
5 мин.
Строится
1-комн. квартира 38,80 м2 18 099 734
Этаж 4/8
Москва, МФК «Варшавские ворота»
Аннино
5 мин.
Строится
1-комн. квартира 40,10 м2 18 415 283
Этаж 8/8
Москва, МФК «Варшавские ворота»
Аннино
5 мин.
Строится
Посмотреть 13 квартир в МФК «Варшавские ворота»
Этаж 17/30
Москва, МФК «Варшавские ворота»
Аннино
5 мин.
Строится
2-комн. квартира 54,70 м2 19 915 997
Этаж 18/30
Москва, МФК «Варшавские ворота»
Аннино
5 мин.
Строится
2-комн. квартира 55,70 м2 20 083 248
Этаж 24/30
Москва, МФК «Варшавские ворота»
Аннино
5 мин.
Строится
2-комн. квартира 56,10 м2 21 010 067
Этаж 30/30
Москва, МФК «Варшавские ворота»
Аннино
5 мин.
Строится
Посмотреть 46 квартир в МФК «Варшавские ворота»
3-комн. квартира 74,90 м2 27 967 286
Этаж 23/30
Москва, МФК «Варшавские ворота»
Аннино
5 мин.
Строится
3-комн. квартира 81,20 м2 28 771 596
Этаж 4/30
Москва, МФК «Варшавские ворота»
Аннино
5 мин.
Строится
3-комн. квартира 82,10 м2 31 297 095
Этаж 8/8
Москва, МФК «Варшавские ворота»
Аннино
5 мин.
Строится
Посмотреть 9 квартир в МФК «Варшавские ворота»
помещение-студия 23,40 м2 9 836 424
Этаж 19/30
Москва, МФК «Варшавские ворота»
Аннино
5 мин.
Строится
помещение-студия 24,60 м2 9 782 633
Этаж 9/9
Москва, МФК «Варшавские ворота»
Аннино
5 мин.
Строится
помещение-студия 29,60 м2 10 601 033
Этаж 3/30
Москва, МФК «Варшавские ворота»
Аннино
5 мин.
Строится
Посмотреть 5 помещений в МФК «Варшавские ворота»
1-комн. помещение 38,30 м2 12 438 155
Этаж 4/9
Москва, МФК «Варшавские ворота»
Аннино
5 мин.
Строится
1-комн. помещение 38,60 м2 12 596 608
Этаж 9/9
Москва, МФК «Варшавские ворота»
Аннино
5 мин.
Строится
1-комн. помещение 39,40 м2 12 363 011
Этаж 3/9
Москва, МФК «Варшавские ворота»
Аннино
5 мин.
Строится
1-комн. помещение 40,60 м2 13 060 492
Этаж 29/30
Москва, МФК «Варшавские ворота»
Аннино
5 мин.
Строится
Посмотреть 6 помещений в МФК «Варшавские ворота»
2-комн. помещение 54,30 м2 15 735 488
Этаж 4/9
Москва, МФК «Варшавские ворота»
Аннино
5 мин.
Строится
2-комн. помещение 56,30 м2 16 074 213
Этаж 6/30
Москва, МФК «Варшавские ворота»
Аннино
5 мин.
Строится
2-комн. помещение 56,80 м2 16 121 885
Этаж 28/30
Москва, МФК «Варшавские ворота»
Аннино
5 мин.
Строится
2-комн. помещение 57,00 м2 14 938 218
Этаж 5/30
Москва, МФК «Варшавские ворота»
Аннино
5 мин.
Строится
Посмотреть 19 помещений в МФК «Варшавские ворота»

Скидки и спецпредложения от застройщиков

МФК «Варшавские ворота» на карте

Выгодные предложения на новостройки

Отзывы о МФК «Варшавские ворота»

Самый полезный отзыв
П
22 декабря 2022
Оценка:
Транспортная доступность
Способы покупки
Расположение
Новый проект от застройщика РГ-Девелопмент. Цены на старте продаж ожидаемые, рассматриваю на приобретение студию для дальнейшей аренды, район спальный, спрос явно будет хороший через пару лет.
Ответить
Полезный отзыв?
Самый новый отзыв
ОУ
17 ноября
Оценка:
Транспортная доступность
Двор, окружение
Расположение
Весь проект будет сдаваться в один срок-второй квартал 2026 года. Так что инвестиции в МФК «Варшавские ворота» выглядят разумными в пользу проекта. Сдача уже вот вот.
Ответить
Полезный отзыв?
Добавьте отзыв, заполнив личные данные, или сначала войдите на сайт, тогда информация будет автоматически взята из личного профиля.
Оценка*