Рейтинг@Mail.ru
Переверните экран
Новостройки Квартиры Ипотека Новостройки Москвы Новостройки Подмосковья Новостройки Новой Москвы Готовые новостройки Новостройки на карте Акции от застройщиков Коммерческие помещения Продавцы и застройщики Панорамы новостроек Видеообзор новостроек Экспертиза новостроек Экология Москвы и Подмосковья Студии 1-комнатные 2-комнатные 3-комнатные Квартиры на карте Ипотечный калькулятор Семейная ипотека Военная ипотека Банки и программы Медиа Новости недвижимости Мнение эксперта Аналитика рынка Покупателю Экспертиза новостроек Эксперты и авторы О проекте Контакты Реклама на сайте Vk Youtube Telegram Дзен Машиноместа Апартаменты #траншевая ипотека #рассрочка IT-ипотека Квартиры со скидками до 35% Видео 360° новостроек Субсидированная застройщиком Rutube Поиск дома в Москве Программа реновации в Москве Новостройки премиум-класса Новостройки бизнес-класса Рассрочка Траншевая ипотека Дома и коттеджи Бизнес-центры Бизнес-центры в Москве Бизнес-центры рядом с метро Строящиеся бизнес-центры Бизнес-центры класса A Бизнес-центры класса B
Данная квартира является лидером продаж среди трехкомнатных квартир в Бусиновский парк по данным Росреестра
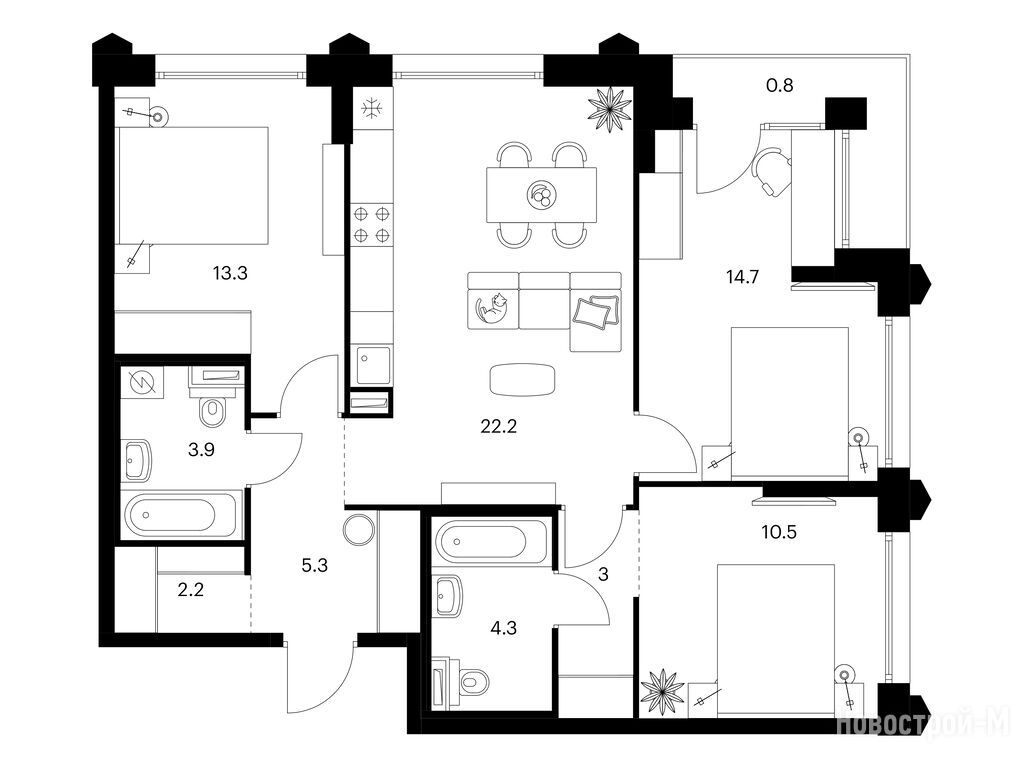
3-комн. квартира, 80.20 м2, 17 этаж
Срок сдачи 4 квартал 2026 года
28 695 560 
357 800 2
обновлено 5 февраля

Описание 3-комн. квартиры

Новостройка
Застройщик
СЗ ИЖОРСКАЯ ООО «СЗ АВАНГАРД»
Срок ГК
4 квартал 2026 года
Тип проекта
Общая площадь
80.20 м2
Жилая площадь
38.50 м2
Площадь кухни
22.20 м2
Этаж
17 / 32
Отделка
чистовая
Грузовой лифт
есть

Расположение 3-комн. квартиры

Локация
Метро
Станция МЦД
Ховрино
20 мин.
Станция МЦК
Дом
22.3
Адрес
Бусиновский Парк, корп. 22.3, секция 3

Особенности

Продается трехкомнатная квартира в новостройке Бусиновский парк по адресу Москва, САО, Западное Дегунино, Бусиновский Парк, корп. 22.3. Общая площадь квартиры - 80.2 кв. м. Тип проекта, по которому построен дом — Монолит,Железобетон, компания-застройщик — СЗ ИЖОРСКАЯ, ООО «СЗ АВАНГАРД», ПИК. Стоимость квартиры — 28 695 560 руб. Способы оплаты можно уточнить у продавца. Срок сдачи — 4 квартал 2026. Более подробная информация по телефону.

Правовые документы

ПИК
ПИК
Сданных 96
|
Строящихся 38
Время работы 02:00 — 21:00
Онлайн-сделка
Выбирайте квартиру в Бусиновский парк по ценам от застройщика

Похожие квартиры в Бусиновский парк

12 этаж
из 32 4 квартал 2026
Москва, САО
Ховрино
20 мин.
22.3
Корпус
чистовая
Отделка
2.66 м
Потолки
Бусиновский парк
28 679 520
ВТБ, СберБанк, Альфа-Банк, ДОМ.РФ, Московский Кредитный Банк
6.00%
Ставка
50.10%
Первый взнос
от 171 948 /мес.
Все варианты
22 этаж
из 32 4 квартал 2026
Москва, САО
Ховрино
20 мин.
22.3
Корпус
чистовая
Отделка
2.66 м
Потолки
Бусиновский парк
28 807 840
ВТБ, СберБанк, Альфа-Банк, ДОМ.РФ, Московский Кредитный Банк
6.00%
Ставка
50.10%
Первый взнос
от 172 718 /мес.
Все варианты
Посмотреть все спецпредложения
студия 20,00 м2 11 888 000
Этаж 24/24
Москва, Бусиновский парк
Ховрино
20 мин.
Строится
студия 20,10 м2 11 676 090
Этаж 23/24
Москва, Бусиновский парк
Ховрино
20 мин.
Строится
студия 20,30 м2 11 922 190
Этаж 24/32
Москва, Бусиновский парк
Ховрино
20 мин.
Строится
Этаж 24/32
Москва, Бусиновский парк
Ховрино
20 мин.
Строится
Этаж 16/24
Москва, Бусиновский парк
Ховрино
20 мин.
Строится
студия 20,30 м2 11 922 190
Этаж 24/32
Москва, Бусиновский парк
Ховрино
20 мин.
Строится
Этаж 13/32
Москва, Бусиновский парк
Ховрино
20 мин.
Строится
студия 20,70 м2 12 082 590
Этаж 19/24
Москва, Бусиновский парк
Ховрино
20 мин.
Строится
Посмотреть 28 квартир в Бусиновский парк
1-комн. квартира 31,80 м2 16 672 740
Этаж 32/32
Москва, Бусиновский парк
Ховрино
20 мин.
Строится
1-комн. квартира 32,70 м2 17 295 030
Этаж 21/24
Москва, Бусиновский парк
Ховрино
20 мин.
Строится
1-комн. квартира 32,80 м2 17 085 520
Этаж 30/32
Москва, Бусиновский парк
Ховрино
20 мин.
Строится
Этаж 9/32
Москва, Бусиновский парк
Ховрино
20 мин.
Строится
Посмотреть 48 квартир в Бусиновский парк
2-комн. квартира 46,70 м2 21 131 750
Этаж 30/32
Москва, Бусиновский парк
Ховрино
20 мин.
Строится
Этаж 21/32
Москва, Бусиновский парк
Ховрино
20 мин.
Строится
2-комн. квартира 47,40 м2 21 135 660
Этаж 16/32
Москва, Бусиновский парк
Ховрино
20 мин.
Строится
2-комн. квартира 47,90 м2 21 329 870
Этаж 19/32
Москва, Бусиновский парк
Ховрино
20 мин.
Строится
Посмотреть 75 квартир в Бусиновский парк
3-комн. квартира 67,80 м2 25 299 705
Этаж 11/23
Москва, Бусиновский парк
Ховрино
20 мин.
Строится
3-комн. квартира 69,30 м2 29 133 720
Этаж 21/24
Москва, Бусиновский парк
Ховрино
20 мин.
Строится
3-комн. квартира 69,70 м2 26 109 620
Этаж 32/32
Москва, Бусиновский парк
Ховрино
20 мин.
Строится
3-комн. квартира 69,90 м2 28 337 460
Этаж 24/32
Москва, Бусиновский парк
Ховрино
20 мин.
Строится
Посмотреть 23 квартиры в Бусиновский парк

Скидки и спецпредложения от застройщиков

Бусиновский парк на карте

Выгодные предложения на новостройки

Отзывы о Бусиновский парк

Самый полезный отзыв
А
26 октября 2020
Оценка:
Хотим взять квартиру на этапе строительства, так тупо дешевле. Посмотрели проект Бусиновский парк пока только на сайте ПИКа. Привлек относительно не плохими ценами для своего района- он хорошо инфраструктурно развит. Еще меня подкупило что рядом находится физкультурно-оздоровительный комплекс с с тренажёркой и школой айкидо и бассейном- сын занимается самбо и тут ему будет удобно продолжать спортивное развитие. Конечно, выделим время- съездим посмотрим район, чтобы расставить все точки над И, но думаю, вариант отличный
Ответить
Полезный отзыв?
Самый новый отзыв
ОН
15 декабря 2025
Оценка:
Планировки
Способы покупки
Двор, окружение
Расположение
Готовность
Бусиновский парк рассматриваю из-за современного проекта: в отзывах хвалят архитектуру, фасады, интересные планировки (лоджии, встречаются варианты с террасами). Ещё отмечают, что в новых корпусах обещают улучшенную отделку и более аккуратные инженерные решения. Минус очевидный — ждать: пишут, что отдельные корпуса сдаются ближе к середине 2027. Но как покупка «вперёд» выглядит логично.
Ответить
Полезный отзыв?
Добавьте отзыв, заполнив личные данные, или сначала войдите на сайт, тогда информация будет автоматически взята из личного профиля.
Оценка*