Рейтинг@Mail.ru
Переверните экран
Новостройки Квартиры Ипотека Новостройки Москвы Новостройки Подмосковья Новостройки Новой Москвы Готовые новостройки Новостройки на карте Акции от застройщиков Коммерческие помещения Продавцы и застройщики Панорамы новостроек Видеообзор новостроек Экспертиза новостроек Экология Москвы и Подмосковья Студии 1-комнатные 2-комнатные 3-комнатные Квартиры на карте Ипотечный калькулятор Семейная ипотека Военная ипотека Банки и программы Медиа Новости недвижимости Мнение эксперта Аналитика рынка Покупателю Экспертиза новостроек Эксперты и авторы О проекте Контакты Реклама на сайте Vk Youtube Telegram Дзен Машиноместа Апартаменты #траншевая ипотека #рассрочка ИТ-ипотека Квартиры со скидками до 40% Видео 360° новостроек Субсидированная застройщиком Rutube Поиск дома в Москве Программа реновации в Москве Новостройки премиум-класса Новостройки бизнес-класса Рассрочка Траншевая ипотека Дома и коттеджи Коттеджные поселки в Новой Москве Готовые коттеджные поселки Строящиеся коттеджные поселки Коттеджные поселки в лесу Коттеджные поселки у водоема Коттеджные поселки в ипотеку Бизнес-центры Коттеджи Ипотека со ставкой 0,1%
студия, 32.60 м2, 23 этаж
Срок сдачи 4 квартал 2028 года
21 395 445 
656 302 2
обновлено 4 мая

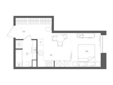
Описание студии

Новостройка
Срок ГК
4 квартал 2028 года
Стадия строительства
котлован/фундамент
Общая площадь
32.60 м2
Площадь кухни
20.80 м2
Этаж
23 / 28

Расположение студии

Локация
Метро
Станция МЦД
Дом
B
Адрес
ул. Золоторожский вал, вл. 11, корп. B, секция 1

Особенности

Продается студия в новостройке ЖК «Стоун Райз» по адресу Москва, ЮВАО, Лефортово, ул. Золоторожский вал, вл. 11, корп. B. Общая площадь квартиры - 32.6 кв. м. Тип проекта, по которому построен дом — Монолитно-кирпичный, компания-застройщик — АО «СЗ «Золоторожский 11», Стоун. Стоимость квартиры — 21 395 445 руб. Способы оплаты можно уточнить у продавца. Срок сдачи — 4 квартал 2028. Более подробная информация по телефону.
Инфоцентр новостроек
Инфоцентр новостроек
Время работы 9:00 — 21:00
Выбирайте квартиру в ЖК «Стоун Райз» по ценам от застройщика

Похожие квартиры в ЖК «Стоун Райз»

7 этаж
из 28 4 квартал 2028
Москва, ЮВАО
Римская
3 мин.
B
Корпус
нет данных
Отделка
2.95 м
Потолки
ЖК «Стоун Райз»
20 959 062
8 этаж
из 28 4 квартал 2028
Москва, ЮВАО
Римская
3 мин.
B
Корпус
нет данных
Отделка
2.95 м
Потолки
ЖК «Стоун Райз»
20 990 684
12 этаж
из 28 4 квартал 2028
Москва, ЮВАО
Римская
3 мин.
B
Корпус
нет данных
Отделка
2.95 м
Потолки
ЖК «Стоун Райз»
21 120 334
13 этаж
из 28 4 квартал 2028
Москва, ЮВАО
Римская
3 мин.
B
Корпус
нет данных
Отделка
2.95 м
Потолки
ЖК «Стоун Райз»
21 151 956
16 этаж
из 28 4 квартал 2028
Москва, ЮВАО
Римская
3 мин.
B
Корпус
нет данных
Отделка
2.95 м
Потолки
ЖК «Стоун Райз»
21 167 767
14 этаж
из 28 4 квартал 2028
Москва, ЮВАО
Римская
3 мин.
B
Корпус
нет данных
Отделка
2.95 м
Потолки
ЖК «Стоун Райз»
21 183 578
15 этаж
из 28 4 квартал 2028
Москва, ЮВАО
Римская
3 мин.
B
Корпус
нет данных
Отделка
2.95 м
Потолки
ЖК «Стоун Райз»
21 221 524
18 этаж
из 28 4 квартал 2028
Москва, ЮВАО
Римская
3 мин.
B
Корпус
нет данных
Отделка
2.95 м
Потолки
ЖК «Стоун Райз»
21 234 173
19 этаж
из 28 4 квартал 2028
Москва, ЮВАО
Римская
3 мин.
B
Корпус
нет данных
Отделка
2.95 м
Потолки
ЖК «Стоун Райз»
21 265 795
20 этаж
из 28 4 квартал 2028
Москва, ЮВАО
Римская
3 мин.
B
Корпус
нет данных
Отделка
2.95 м
Потолки
ЖК «Стоун Райз»
21 297 417
студия 30,20 м2 21 044 810
Этаж 23/28
Москва, ЖК «Стоун Райз»
Римская
3 мин.
Строится
студия 31,60 м2 20 650 252
Этаж 10/28
Москва, ЖК «Стоун Райз»
Римская
3 мин.
Строится
студия 32,60 м2 21 265 795
Этаж 19/28
Москва, ЖК «Стоун Райз»
Римская
3 мин.
Строится
студия 37,50 м2 24 011 138
Этаж 3/14
Москва, ЖК «Стоун Райз»
Римская
3 мин.
Строится
Посмотреть 25 квартир в ЖК «Стоун Райз»
1-комн. квартира 40,70 м2 25 653 454
Этаж 3/28
Москва, ЖК «Стоун Райз»
Римская
3 мин.
Строится
1-комн. квартира 40,80 м2 25 914 365
Этаж 12/28
Москва, ЖК «Стоун Райз»
Римская
3 мин.
Строится
1-комн. квартира 41,40 м2 25 962 147
Этаж 6/14
Москва, ЖК «Стоун Райз»
Римская
3 мин.
Строится
1-комн. квартира 41,60 м2 26 773 552
Этаж 13/14
Москва, ЖК «Стоун Райз»
Римская
3 мин.
Строится
Посмотреть 64 квартиры в ЖК «Стоун Райз»
2-комн. квартира 63,50 м2 33 994 281
Этаж 2/28
Москва, ЖК «Стоун Райз»
Римская
3 мин.
Строится
2-комн. квартира 65,20 м2 38 755 923
Этаж 13/16
Москва, ЖК «Стоун Райз»
Римская
3 мин.
Строится
2-комн. квартира 65,30 м2 36 389 405
Этаж 2/16
Москва, ЖК «Стоун Райз»
Римская
3 мин.
Строится
2-комн. квартира 65,60 м2 36 677 485
Этаж 2/16
Москва, ЖК «Стоун Райз»
Римская
3 мин.
Строится
Посмотреть 58 квартир в ЖК «Стоун Райз»
3-комн. квартира 76,80 м2 41 702 861
Этаж 5/16
Москва, ЖК «Стоун Райз»
Римская
3 мин.
Строится
3-комн. квартира 81,70 м2 44 854 934
Этаж 6/16
Москва, ЖК «Стоун Райз»
Римская
3 мин.
Строится
3-комн. квартира 90,00 м2 47 901 510
Этаж 12/14
Москва, ЖК «Стоун Райз»
Римская
3 мин.
Строится
3-комн. квартира 91,50 м2 51 034 125
Этаж 9/16
Москва, ЖК «Стоун Райз»
Римская
3 мин.
Строится
Посмотреть 27 квартир в ЖК «Стоун Райз»
4-комн. квартира 106,30 м2 58 051 493
Этаж 11/14
Москва, ЖК «Стоун Райз»
Римская
3 мин.
Строится
5-комн. квартира 140,70 м2 75 336 408
Этаж 8/14
Москва, ЖК «Стоун Райз»
Римская
3 мин.
Строится
5-комн. квартира 142,90 м2 75 724 282
Этаж 5/14
Москва, ЖК «Стоун Райз»
Римская
3 мин.
Строится
5-комн. квартира 144,20 м2 75 965 569
Этаж 7/14
Москва, ЖК «Стоун Райз»
Римская
3 мин.
Строится

Скидки и спецпредложения от застройщиков

ЖК «Стоун Райз» на карте

Выгодные предложения на новостройки

Отзывы о ЖК «Стоун Райз»

Самый полезный отзыв
Д
10 августа 2025
Оценка:
Достоинства
Планировки
Способы покупки
Внешний вид фасада
Двор, окружение
Расположение
Хороший вариант за "хорошую" цену. В 3 минутах от метро, в 2 км ТТК, квартиры от небольших однушек до просторных двухуровневых, архитектура уникальная - смотрится круто, конечно
Ответить
Самый новый отзыв
МБ
10 марта
Оценка:
Достоинства
Двор, окружение
Расположение
Жилой комплекс находится в районе с большим количеством зелёных зон, что очень важно для тех, кто ценит природу и прогулки.
Ответить

Оставить отзыв

Добавьте отзыв, заполнив личные данные, или сначала войдите на сайт, тогда информация будет автоматически взята из личного профиля.
Оценка*