Рейтинг@Mail.ru
Переверните экран
Новостройки Квартиры Ипотека Новостройки Москвы Новостройки Подмосковья Новостройки Новой Москвы Готовые новостройки Новостройки на карте Акции от застройщиков Коммерческие помещения Продавцы и застройщики Панорамы новостроек Видеообзор новостроек Экспертиза новостроек Экология Москвы и Подмосковья Студии 1-комнатные 2-комнатные 3-комнатные Квартиры на карте Ипотечный калькулятор Семейная ипотека Военная ипотека Банки и программы Медиа Новости недвижимости Мнение эксперта Аналитика рынка Покупателю Экспертиза новостроек Эксперты и авторы О проекте Контакты Реклама на сайте Vk Youtube Telegram Дзен Машиноместа Апартаменты #траншевая ипотека #рассрочка ИТ-ипотека Квартиры со скидками до 40% Видео 360° новостроек Субсидированная застройщиком Rutube Поиск дома в Москве Программа реновации в Москве Новостройки премиум-класса Новостройки бизнес-класса Рассрочка Траншевая ипотека Дома и коттеджи Бизнес-центры Бизнес-центры в Москве Бизнес-центры рядом с метро Строящиеся бизнес-центры Бизнес-центры класса A Бизнес-центры класса B Ипотека со ставкой 0,1%
студия, 29.51 м2, 4 этаж
Срок сдачи 3 квартал 2028 года
7 850 952 
9 617 416
266 044 2
обновлено 15 марта

Описание студии

Застройщик
Срок ГК
3 квартал 2028 года
Стадия строительства
Тип проекта
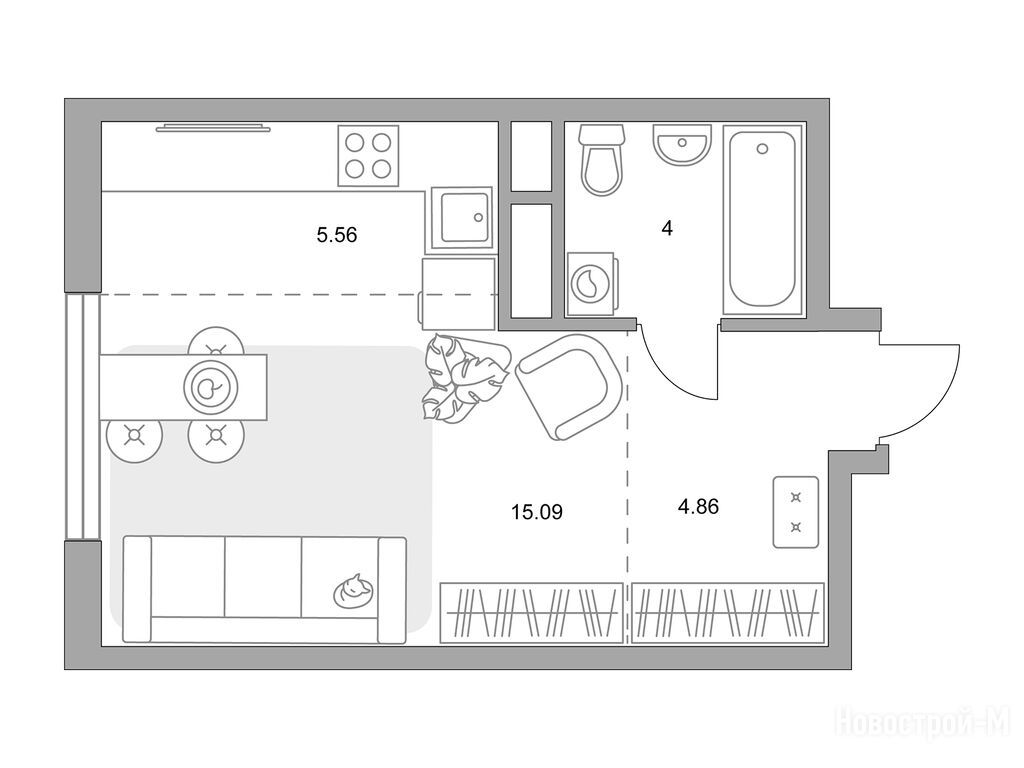
Общая площадь
29.51 м2
Жилая площадь
15.09 м2
Площадь кухни
5.56 м2
Этаж
4 / 14
Отделка
нет

Расположение студии

Метро
Ж/Д-станция
Дом
8
Адрес
ЖК «Притяжение Сити», секция 3

Способы покупки

Особенности

Продается студия в новостройке ЖК «Притяжение Сити» по адресу Московская область, Одинцовский район, Одинцово, ЖК «Притяжение Сити». Общая площадь квартиры - 29.51 кв. м. Тип проекта, по которому построен дом — Монолит, компания-застройщик — ГК «Гранель». Стоимость квартиры — 7 850 952 руб. Способы оплаты можно уточнить у продавца. Срок сдачи — 3 квартал 2028. Более подробная информация по телефону.
ГК «Гранель»
ГК «Гранель»
Сданных 16
|
Строящихся 16
Время работы 09:00 — 21:00
Выбирайте квартиру в ЖК «Притяжение Сити» по ценам от застройщика

Похожие квартиры в ЖК «Притяжение Сити»

9 этаж
из 14 3 квартал 2028
Московская область, Одинцовский район
Молодежная
17 мин.
8
Корпус
нет
Отделка
2.95 м
Потолки
ЖК «Притяжение Сити»
7 469 107 9 759 633
Азиатско-Тихоокеанский Банк, Севергазбанк, ВТБ, МТС Банк
6.00%
Ставка
20.10%
Первый взнос
от 44 781 /мес.
Все варианты
2 этаж
из 14 3 квартал 2028
Московская область, Одинцовский район
Молодежная
17 мин.
8
Корпус
нет
Отделка
2.95 м
Потолки
ЖК «Притяжение Сити»
7 792 904 9 546 307
Азиатско-Тихоокеанский Банк, Севергазбанк, ВТБ, МТС Банк
6.00%
Ставка
20.10%
Первый взнос
от 46 722 /мес.
Все варианты
7 этаж
из 14 3 квартал 2028
Московская область, Одинцовский район
Молодежная
17 мин.
8
Корпус
нет
Отделка
2.95 м
Потолки
ЖК «Притяжение Сити»
7 967 047 9 759 633
Азиатско-Тихоокеанский Банк, Севергазбанк, ВТБ, МТС Банк
6.00%
Ставка
20.10%
Первый взнос
от 47 766 /мес.
Все варианты
12 этаж
из 14 3 квартал 2028
Московская область, Одинцовский район
Молодежная
17 мин.
8
Корпус
нет
Отделка
2.95 м
Потолки
ЖК «Притяжение Сити»
8 054 119 9 866 295
Азиатско-Тихоокеанский Банк, Севергазбанк, ВТБ, МТС Банк
6.00%
Ставка
20.10%
Первый взнос
от 48 289 /мес.
Все варианты
студия 28,10 м2 7 945 660
Этаж 14/14
МО, ЖК «Притяжение Сити»
Молодежная
17 мин.
Строится
студия 28,59 м2 7 183 527
Этаж 14/14
МО, ЖК «Притяжение Сити»
Молодежная
17 мин.
Строится
студия 28,66 м2 7 681 190
Этаж 12/12
МО, ЖК «Притяжение Сити»
Молодежная
17 мин.
Строится
студия 29,51 м2 7 469 107
Этаж 9/14
МО, ЖК «Притяжение Сити»
Молодежная
17 мин.
Строится
Посмотреть 37 квартир в ЖК «Притяжение Сити»
1-комн. квартира 32,26 м2 8 646 029
Этаж 14/14
МО, ЖК «Притяжение Сити»
Молодежная
17 мин.
Строится
1-комн. квартира 32,32 м2 8 662 110
Этаж 13/14
МО, ЖК «Притяжение Сити»
Молодежная
17 мин.
Строится
1-комн. квартира 32,53 м2 8 398 451
Этаж 13/14
МО, ЖК «Притяжение Сити»
Молодежная
17 мин.
Строится
1-комн. квартира 32,96 м2 8 217 713
Этаж 2/14
МО, ЖК «Притяжение Сити»
Молодежная
17 мин.
Строится
Посмотреть 72 квартиры в ЖК «Притяжение Сити»
2-комн. квартира 48,41 м2 11 569 835
Этаж 14/14
МО, ЖК «Притяжение Сити»
Молодежная
17 мин.
Строится
2-комн. квартира 48,53 м2 11 598 515
Этаж 13/14
МО, ЖК «Притяжение Сити»
Молодежная
17 мин.
Строится
2-комн. квартира 48,76 м2 11 653 484
Этаж 12/12
МО, ЖК «Притяжение Сити»
Молодежная
17 мин.
Строится
2-комн. квартира 49,38 м2 11 801 662
Этаж 14/14
МО, ЖК «Притяжение Сити»
Молодежная
17 мин.
Строится
Посмотреть 50 квартир в ЖК «Притяжение Сити»
3-комн. квартира 66,40 м2 14 922 449
Этаж 10/12
МО, ЖК «Притяжение Сити»
Молодежная
17 мин.
Строится
3-комн. квартира 67,52 м2 14 045 222
Этаж 5/12
МО, ЖК «Притяжение Сити»
Молодежная
17 мин.
Строится
3-комн. квартира 69,79 м2 14 517 418
Этаж 3/12
МО, ЖК «Притяжение Сити»
Молодежная
17 мин.
Строится
Посмотреть 7 квартир в ЖК «Притяжение Сити»

Скидки и спецпредложения от застройщиков

ЖК «Притяжение Сити» на карте

Выгодные предложения на новостройки

Отзывы о ЖК «Притяжение Сити»

Самый полезный отзыв
ПМ
09 января
Оценка:
Достоинства
Планировки
Внешний вид фасада
Двор, окружение
Расположение
Если получится просто плотная застройка без сценариев для жителей, будет обидно. Я бы выбирал корпус и окна так, чтобы не жить в витрине на шумный двор
Ответить
Самый новый отзыв
ВН
11 марта
Оценка:
Достоинства
Планировки
Способы покупки
Субсидированная ипотека — это хорошая возможность для тех, кто не может сразу заплатить всю сумму. Это хороший шаг для привлечения покупателей.
Ответить

Оставить отзыв

Добавьте отзыв, заполнив личные данные, или сначала войдите на сайт, тогда информация будет автоматически взята из личного профиля.
Оценка*