Рейтинг@Mail.ru
Переверните экран
Новостройки Квартиры Ипотека Новостройки Москвы Новостройки Подмосковья Новостройки Новой Москвы Готовые новостройки Новостройки на карте Акции от застройщиков Коммерческие помещения Продавцы и застройщики Панорамы новостроек Видеообзор новостроек Экспертиза новостроек Экология Москвы и Подмосковья Студии 1-комнатные 2-комнатные 3-комнатные Квартиры на карте Ипотечный калькулятор Семейная ипотека Военная ипотека Банки и программы Медиа Новости недвижимости Мнение эксперта Аналитика рынка Покупателю Экспертиза новостроек Эксперты и авторы О проекте Контакты Реклама на сайте Vk Youtube Telegram Дзен Машиноместа Апартаменты #траншевая ипотека #рассрочка IT-ипотека Квартиры со скидками до 40% Видео 360° новостроек Субсидированная застройщиком Rutube Поиск дома в Москве Программа реновации в Москве Новостройки премиум-класса Новостройки бизнес-класса Рассрочка Траншевая ипотека ГАЛС Дома и коттеджи Бизнес-центры Бизнес-центры в Москве Бизнес-центры рядом с метро Строящиеся бизнес-центры Бизнес-центры класса A Бизнес-центры класса B ЛСР
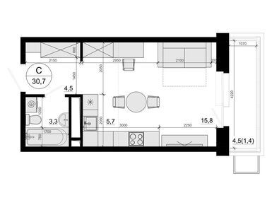
студия, 30.70 м2, 10 этаж
Срок сдачи 3 квартал 2027 года
7 102 000 
231 336 2
обновлено 5 декабря

Описание студии

Срок ГК
3 квартал 2027 года
Стадия строительства
котлован/фундамент
Общая площадь
30.70 м2
Жилая площадь
15.80 м2
Площадь кухни
5.70 м2
Этаж
10 / 10

Расположение студии

Метро
Станция МЦД
Дом
Эволюция 1.2
Адрес
д. Солманово, МЖК «Одинцовские кварталы», секция 2

Способы покупки

Особенности

Продается студия в новостройке ЖК «Одинцовские кварталы» по адресу Московская область, Одинцовский район, Жаворонковское С/П, Солманово деревня, д. Солманово, МЖК «Одинцовские кварталы». Общая площадь квартиры - 30.7 кв. м. Тип проекта, по которому построен дом — Монолит,Монолитно-кирпичный, компания-застройщик — Группа компаний «Вектор», АО «СЗ «Вектор недвижимости». Стоимость квартиры — 7 102 000 руб. Способы оплаты можно уточнить у продавца. Срок сдачи — 3 квартал 2027. Более подробная информация по телефону.

Правовые документы

Инфоцентр новостроек
Инфоцентр новостроек
+7 (499) 705-91-41
Время работы 9:00 — 21:00

Похожие квартиры в ЖК «Одинцовские кварталы»

3 этаж
из 10 3 квартал 2027
Московская область, Жаворонковское С/П
Лесной Городок
10 мин.
Эволюция 1.2
Корпус
нет данных
Отделка
2.80 м
Потолки
ЖК «Одинцовские кварталы»
7 000 000
ВТБ, СберБанк
6.00%
Ставка
30.10%
Первый взнос
от 41 969 /мес.
Все варианты
Посмотреть все спецпредложения
студия 30,60 м2 8 293 000
Этаж 5/10
МО, ЖК «Одинцовские кварталы»
Лесной Городок
10 мин.
Строится
студия 30,70 м2 8 400 000
Этаж 8/10
МО, ЖК «Одинцовские кварталы»
Лесной Городок
10 мин.
Строится
студия 31,30 м2 6 929 000
Этаж 2/10
МО, ЖК «Одинцовские кварталы»
Лесной Городок
10 мин.
Строится
Этаж 2/10
МО, ЖК «Одинцовские кварталы»
Лесной Городок
10 мин.
Строится
Посмотреть 9 квартир в ЖК «Одинцовские кварталы»
Этаж 14/14
МО, ЖК «Одинцовские кварталы»
Лесной Городок
10 мин.
Строится
Этаж 3/14
МО, ЖК «Одинцовские кварталы»
Лесной Городок
10 мин.
Строится
Этаж 4/14
МО, ЖК «Одинцовские кварталы»
Лесной Городок
10 мин.
Строится
Этаж 2/14
МО, ЖК «Одинцовские кварталы»
Лесной Городок
10 мин.
Строится
Посмотреть 56 квартир в ЖК «Одинцовские кварталы»
2-комн. квартира 50,60 м2 11 445 000
Этаж 4/10
МО, ЖК «Одинцовские кварталы»
Лесной Городок
10 мин.
Строится
2-комн. квартира 51,10 м2 13 251 000
Этаж 13/14
МО, ЖК «Одинцовские кварталы»
Лесной Городок
10 мин.
Строится
2-комн. квартира 51,70 м2 13 440 000
Этаж 2/10
МО, ЖК «Одинцовские кварталы»
Лесной Городок
10 мин.
Строится
2-комн. квартира 54,00 м2 11 328 000
Этаж 5/14
МО, ЖК «Одинцовские кварталы»
Лесной Городок
10 мин.
Строится
Посмотреть 34 квартиры в ЖК «Одинцовские кварталы»
3-комн. квартира 64,10 м2 16 846 000
Этаж 6/14
МО, ЖК «Одинцовские кварталы»
Лесной Городок
10 мин.
Строится
3-комн. квартира 64,90 м2 16 400 000
Этаж 2/14
МО, ЖК «Одинцовские кварталы»
Лесной Городок
10 мин.
Строится
3-комн. квартира 75,80 м2 18 961 000
Этаж 3/14
МО, ЖК «Одинцовские кварталы»
Лесной Городок
10 мин.
Строится
Посмотреть 9 квартир в ЖК «Одинцовские кварталы»

Скидки и спецпредложения от застройщиков

ЖК «Одинцовские кварталы» на карте

Выгодные предложения на новостройки

Отзывы о ЖК «Одинцовские кварталы»

Самый полезный отзыв
П
22 марта 2018
Оценка:
Транспортная доступность
Экология
Внешний вид фасада
Сегодня ФСК Лидер написал на своей страничке в социальной сети, что они берутся достраивать наш ЖК! Я просто в это не верю, нужели правда, неужели мы были услышаны властью и у нас появится свой дом. Это прекрасная новость. Пока конечно рановато слишком уж радоваться, так как явно они не выйдут завтра сразу же строить, но то что дело продвинулось и за нас взялись это прям с сердца груз
Показать все комментарии
Ответить
Полезный отзыв?
Самый новый отзыв
МА
01 декабря
Оценка:
Недавно продала свою старую квартиру и хотела начать жить с чистого листа на новом месте. Хотелось жить в спокойном месте, но чтобы до Москвы было не мучительно далеко. Когда приехала в Одинцовские кварталы, сразу почувствовала, что это мой вариант: вокруг лес, озеро неподалеку, тишина, воздух просто другой. Взяла квартиру на втором этаже, сам дом небольшой и уютный. Детские площадки рядом, дочке понравилось. В сад ходим пешком. На районе приятно находиться, чувствуется домашняя атмосфера.
Ответить
Полезный отзыв?
Добавьте отзыв, заполнив личные данные, или сначала войдите на сайт, тогда информация будет автоматически взята из личного профиля.
Оценка*