Рейтинг@Mail.ru
Переверните экран
Новостройки Квартиры Ипотека Новостройки Москвы Новостройки Подмосковья Новостройки Новой Москвы Готовые новостройки Новостройки на карте Акции от застройщиков Коммерческие помещения Продавцы и застройщики Панорамы новостроек Видеообзор новостроек Экспертиза новостроек Экология Москвы и Подмосковья Студии 1-комнатные 2-комнатные 3-комнатные Квартиры на карте Ипотечный калькулятор Семейная ипотека Военная ипотека Банки и программы Медиа Новости недвижимости Мнение эксперта Аналитика рынка Покупателю Экспертиза новостроек Эксперты и авторы О проекте Контакты Реклама на сайте Vk Youtube Telegram Дзен Машиноместа Апартаменты #траншевая ипотека #рассрочка IT-ипотека Квартиры со скидками до 35% Видео 360° новостроек Субсидированная застройщиком Rutube Поиск дома в Москве Программа реновации в Москве Новостройки премиум-класса Новостройки бизнес-класса Рассрочка Траншевая ипотека Дома и коттеджи Бизнес-центры Бизнес-центры в Москве Бизнес-центры рядом с метро Строящиеся бизнес-центры Бизнес-центры класса A Бизнес-центры класса B
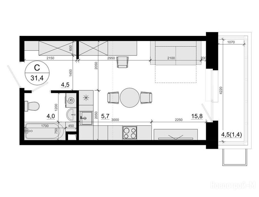
студия, 31.40 м2, 2 этаж
Срок сдачи 3 квартал 2027 года
9 096 000 
289 682 2
обновлено 5 февраля

Описание студии

Срок ГК
3 квартал 2027 года
Стадия строительства
котлован/фундамент
Общая площадь
31.40 м2
Жилая площадь
15.80 м2
Площадь кухни
5.70 м2
Этаж
2 / 10

Расположение студии

Метро
Станция МЦД
Дом
Эволюция 1.6
Адрес
д. Солманово, МЖК «Одинцовские кварталы», секция 6

Способы покупки

Особенности

Продается студия в новостройке ЖК «Одинцовские кварталы» по адресу Московская область, Одинцовский район, Жаворонковское С/П, Солманово деревня, д. Солманово, МЖК «Одинцовские кварталы». Общая площадь квартиры - 31.4 кв. м. Тип проекта, по которому построен дом — Монолит,Монолитно-кирпичный, компания-застройщик — Группа компаний «Вектор», АО «СЗ «Вектор недвижимости». Стоимость квартиры — 9 096 000 руб. Способы оплаты можно уточнить у продавца. Срок сдачи — 3 квартал 2027. Более подробная информация по телефону.

Правовые документы

Инфоцентр новостроек
Инфоцентр новостроек
+7 (499) 705-91-41
Время работы 9:00 — 21:00
Посмотреть все спецпредложения
студия 30,60 м2 7 652 000
Этаж 6/10
МО, ЖК «Одинцовские кварталы»
Лесной Городок
10 мин.
Строится
студия 30,70 м2 7 567 000
Этаж 3/10
МО, ЖК «Одинцовские кварталы»
Лесной Городок
10 мин.
Строится
студия 31,30 м2 7 490 000
Этаж 2/10
МО, ЖК «Одинцовские кварталы»
Лесной Городок
10 мин.
Строится
студия 31,40 м2 7 514 000
Этаж 2/10
МО, ЖК «Одинцовские кварталы»
Лесной Городок
10 мин.
Строится
Посмотреть 10 квартир в ЖК «Одинцовские кварталы»
1-комн. квартира 33,90 м2 10 508 000
Этаж 14/14
МО, ЖК «Одинцовские кварталы»
Лесной Городок
10 мин.
Строится
1-комн. квартира 34,00 м2 8 948 000
Этаж 14/14
МО, ЖК «Одинцовские кварталы»
Лесной Городок
10 мин.
Строится
1-комн. квартира 34,50 м2 10 750 000
Этаж 10/14
МО, ЖК «Одинцовские кварталы»
Лесной Городок
10 мин.
Строится
1-комн. квартира 35,80 м2 10 725 000
Этаж 8/14
МО, ЖК «Одинцовские кварталы»
Лесной Городок
10 мин.
Строится
Посмотреть 64 квартиры в ЖК «Одинцовские кварталы»
2-комн. квартира 50,60 м2 14 936 000
Этаж 8/10
МО, ЖК «Одинцовские кварталы»
Лесной Городок
10 мин.
Строится
2-комн. квартира 51,10 м2 14 255 000
Этаж 13/14
МО, ЖК «Одинцовские кварталы»
Лесной Городок
10 мин.
Строится
2-комн. квартира 51,70 м2 12 052 000
Этаж 2/10
МО, ЖК «Одинцовские кварталы»
Лесной Городок
10 мин.
Строится
2-комн. квартира 54,00 м2 12 244 000
Этаж 5/14
МО, ЖК «Одинцовские кварталы»
Лесной Городок
10 мин.
Строится
Посмотреть 38 квартир в ЖК «Одинцовские кварталы»
3-комн. квартира 64,10 м2 14 882 000
Этаж 6/14
МО, ЖК «Одинцовские кварталы»
Лесной Городок
10 мин.
Строится
3-комн. квартира 64,90 м2 17 257 000
Этаж 2/14
МО, ЖК «Одинцовские кварталы»
Лесной Городок
10 мин.
Строится
3-комн. квартира 75,80 м2 20 287 000
Этаж 8/14
МО, ЖК «Одинцовские кварталы»
Лесной Городок
10 мин.
Строится
3-комн. квартира 77,00 м2 19 720 000
Этаж 2/14
МО, ЖК «Одинцовские кварталы»
Лесной Городок
10 мин.
Строится
Посмотреть 15 квартир в ЖК «Одинцовские кварталы»

Скидки и спецпредложения от застройщиков

ЖК «Одинцовские кварталы» на карте

Выгодные предложения на новостройки

Отзывы о ЖК «Одинцовские кварталы»

Самый полезный отзыв
П
22 марта 2018
Оценка:
Транспортная доступность
Экология
Внешний вид фасада
Сегодня ФСК Лидер написал на своей страничке в социальной сети, что они берутся достраивать наш ЖК! Я просто в это не верю, нужели правда, неужели мы были услышаны властью и у нас появится свой дом. Это прекрасная новость. Пока конечно рановато слишком уж радоваться, так как явно они не выйдут завтра сразу же строить, но то что дело продвинулось и за нас взялись это прям с сердца груз
Показать все комментарии
Ответить
Полезный отзыв?
Самый новый отзыв
ВА
14 января
Оценка:
Экология
Планировки
Двор, окружение
Расположение
Живём в Одинцовских кварталах уже больше года. Район тихий, много зелени, приятно гулять с детьми. Дома новые, квартиры тёплые, планировки нормальные. До Москвы добираться удобно, если есть машина. В целом место нравится, спокойно и уютно.
Ответить
Полезный отзыв?
Добавьте отзыв, заполнив личные данные, или сначала войдите на сайт, тогда информация будет автоматически взята из личного профиля.
Оценка*