Рейтинг@Mail.ru
Переверните экран
Новостройки Квартиры Ипотека Новостройки Москвы Новостройки Подмосковья Новостройки Новой Москвы Готовые новостройки Новостройки на карте Акции от застройщиков Коммерческие помещения Продавцы и застройщики Панорамы новостроек Видеообзор новостроек Экспертиза новостроек Экология Москвы и Подмосковья Студии 1-комнатные 2-комнатные 3-комнатные Квартиры на карте Ипотечный калькулятор Семейная ипотека Военная ипотека Банки и программы Медиа Новости недвижимости Мнение эксперта Аналитика рынка Покупателю Экспертиза новостроек Эксперты и авторы О проекте Контакты Реклама на сайте Vk Youtube Telegram Дзен Машиноместа Апартаменты #траншевая ипотека #рассрочка IT-ипотека Квартиры со скидками до 40% Видео 360° новостроек Субсидированная застройщиком Rutube Поиск дома в Москве Программа реновации в Москве Новостройки премиум-класса Новостройки бизнес-класса Рассрочка Траншевая ипотека ГАЛС Дома и коттеджи Бизнес-центры Бизнес-центры в Москве Бизнес-центры рядом с метро Строящиеся бизнес-центры Бизнес-центры класса A Бизнес-центры класса B ЛСР
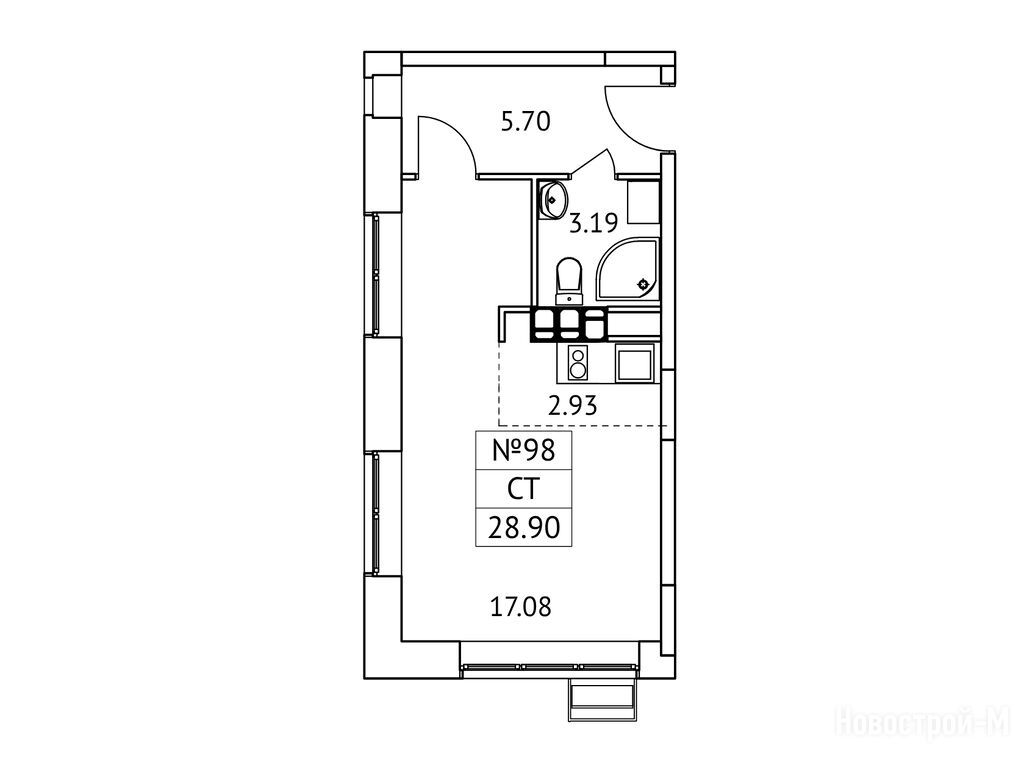
студия, 28.90 м2, 11 этаж
Срок сдачи 4 квартал 2026 года
13 250 919 
458 509 2
обновлено 5 декабря

Описание студии

Новостройка
Срок ГК
4 квартал 2026 года
Общая площадь
28.90 м2
Жилая площадь
17.08 м2
Площадь кухни
2.93 м2
Этаж
11 / 11
Отделка
чистовая

Расположение студии

Метро
Станция МЦД
Панки
25 мин.
Станция МЦК
Дом
6
Адрес
ЖК «Новотомилино», корп. 1-3, 9, секция 1

Способы покупки

Особенности

Продается студия в новостройке ЖК «Новотомилино» по адресу Московская область, Люберцы городской округ, Томилино пос., ЖК «Новотомилино», корп. 1-3, 9. Общая площадь квартиры - 28.9 кв. м. Тип проекта, по которому построен дом — Монолитно-кирпичный, компания-застройщик — Группа компаний 3-RED, АО «СЗ«Реалинвест». Стоимость квартиры — 13 250 919 руб. Способы оплаты можно уточнить у продавца. Срок сдачи — 4 квартал 2026. Более подробная информация по телефону.
Инфоцентр новостроек
Инфоцентр новостроек
+7 (499) 705-91-41
Время работы 9:00 — 21:00

Похожие квартиры в ЖК «Новотомилино»

9 этаж
из 11 4 квартал 2026
Московская область, Люберцы городской округ
Панки
25 мин.
6
Корпус
чистовая
Отделка
2.80 м
Потолки
ЖК «Новотомилино»
13 010 693
ВТБ, Промсвязьбанк, СберБанк, Абсолют Банк, Россельхозбанк, ДОМ.РФ
6.00%
Ставка
40.10%
Первый взнос
от 78 006 /мес.
Все варианты
Посмотреть все спецпредложения
студия 19,84 м2 9 339 981
Этаж 13/14
МО, ЖК «Новотомилино»
Панки
25 мин.
Строится
студия 20,16 м2 9 246 339
Этаж 12/13
МО, ЖК «Новотомилино»
Панки
25 мин.
Строится
студия 20,92 м2 9 480 581
Этаж 10/13
МО, ЖК «Новотомилино»
Панки
25 мин.
Строится
студия 21,13 м2 10 187 101
Этаж 5/13
МО, ЖК «Новотомилино»
Панки
25 мин.
Строится
Посмотреть 80 квартир в ЖК «Новотомилино»
1-комн. квартира 32,95 м2 14 275 106
Этаж 13/17
МО, ЖК «Новотомилино»
Панки
25 мин.
Строится
1-комн. квартира 33,15 м2 14 855 482
Этаж 3/17
МО, ЖК «Новотомилино»
Панки
25 мин.
Строится
1-комн. квартира 33,41 м2 14 955 500
Этаж 17/17
МО, ЖК «Новотомилино»
Панки
25 мин.
Строится
1-комн. квартира 33,60 м2 15 848 939
Этаж 14/14
МО, ЖК «Новотомилино»
Панки
25 мин.
Строится
Посмотреть 87 квартир в ЖК «Новотомилино»
2-комн. квартира 39,67 м2 14 255 669
Этаж 14/14
МО, ЖК «Новотомилино»
Панки
25 мин.
Строится
2-комн. квартира 39,84 м2 14 425 334
Этаж 7/14
МО, ЖК «Новотомилино»
Панки
25 мин.
Строится
2-комн. квартира 45,27 м2 18 189 413
Этаж 13/14
МО, ЖК «Новотомилино»
Панки
25 мин.
Строится
2-комн. квартира 45,48 м2 20 289 500
Этаж 10/14
МО, ЖК «Новотомилино»
Панки
25 мин.
Строится
Посмотреть 33 квартиры в ЖК «Новотомилино»
3-комн. квартира 59,73 м2 22 727 400
Этаж 12/14
МО, ЖК «Новотомилино»
Панки
25 мин.
Строится
3-комн. квартира 70,02 м2 26 983 368
Этаж 14/17
МО, ЖК «Новотомилино»
Панки
25 мин.
Строится
3-комн. квартира 70,22 м2 26 646 891
Этаж 3/17
МО, ЖК «Новотомилино»
Панки
25 мин.
Строится
3-комн. квартира 70,45 м2 21 842 956
Этаж 11/13
МО, ЖК «Новотомилино»
Панки
25 мин.
Строится
Посмотреть 24 квартиры в ЖК «Новотомилино»

Скидки и спецпредложения от застройщиков

ЖК «Новотомилино» на карте

Выгодные предложения на новостройки

Отзывы о ЖК «Новотомилино»

Самый полезный отзыв
А
01 марта 2020
Оценка:
Экология
Способы покупки
Расположение
Звонил в офис продаж, сказали, что скоро уже откроют продажи, получили всю необходимую документацию - заключение о соответствии компании и проектной декларации, кажется так называется
Показать все комментарии
Ответить
Полезный отзыв?
Самый новый отзыв
ЕД
30 мая
Оценка:
Транспортная доступность
Внешний вид фасада
Расположение
До станций Томилино и Панки, конечно, не пять минут пешком, но относительно недалеко – вполне можно добираться. И дома симпатичные, глаз радуют! Особенно порадовал уровень ремонта, он явно выше среднего. Сразу видно, что застройщик не экономил на материалах и отделке.
Ответить
Полезный отзыв?
Добавьте отзыв, заполнив личные данные, или сначала войдите на сайт, тогда информация будет автоматически взята из личного профиля.
Оценка*