Рейтинг@Mail.ru
Переверните экран
Новостройки Квартиры Ипотека Новостройки Москвы Новостройки Подмосковья Новостройки Новой Москвы Готовые новостройки Новостройки на карте Акции от застройщиков Коммерческие помещения Продавцы и застройщики Панорамы новостроек Видеообзор новостроек Экспертиза новостроек Экология Москвы и Подмосковья Студии 1-комнатные 2-комнатные 3-комнатные Квартиры на карте Ипотечный калькулятор Семейная ипотека Военная ипотека Банки и программы Медиа Новости недвижимости Мнение эксперта Аналитика рынка Покупателю Экспертиза новостроек Эксперты и авторы О проекте Контакты Реклама на сайте Vk Youtube Telegram Дзен Машиноместа Апартаменты #траншевая ипотека #рассрочка ИТ-ипотека Квартиры со скидками до 40% Видео 360° новостроек Субсидированная застройщиком Rutube Поиск дома в Москве Программа реновации в Москве Новостройки премиум-класса Новостройки бизнес-класса Рассрочка Траншевая ипотека Дома и коттеджи Коттеджные поселки в Новой Москве Готовые коттеджные поселки Строящиеся коттеджные поселки Коттеджные поселки в лесу Коттеджные поселки у водоема Коттеджные поселки в ипотеку Бизнес-центры Коттеджи Ипотека со ставкой 0,1%
студия, 29.60 м2, 15 этаж
Срок сдачи 4 квартал 2026 года
8 820 800 
298 000 2
обновлено 17 мая

Описание студии

Новостройка
Срок ГК
4 квартал 2026 года
Стадия строительства
котлован/фундамент
Общая площадь
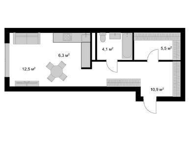
29.60 м2
Этаж
15 / 17

Расположение студии

Метро
Ж/Д-станция
Дом
1
Адрес
Детский пер., корп. 1

Особенности

Продается студия в новостройке ЖК «Мытищи-Сити» по адресу Московская область, Мытищи городской округ, Мытищи, Детский пер., корп. 1. Общая площадь квартиры - 29.6 кв. м. Тип проекта, по которому построен дом — Монолитно-кирпичный, компания-застройщик — ООО СЗ «ЛОМОНОСОВ ДЕВЕЛОПМЕНТ». Стоимость квартиры — 8 820 800 руб. Способы оплаты можно уточнить у продавца. Срок сдачи — 4 квартал 2026. Более подробная информация по телефону.
Инфоцентр новостроек
Инфоцентр новостроек
Время работы 9:00 — 21:00
Выбирайте квартиру в ЖК «Мытищи-Сити» по ценам от застройщика
Этаж 17/17
МО, ЖК «Мытищи-Сити»
Медведково
13 мин.
Строится
Этаж 2/17
МО, ЖК «Мытищи-Сити»
Медведково
13 мин.
Строится
Этаж 16/17
МО, ЖК «Мытищи-Сити»
Медведково
13 мин.
Строится
Этаж 13/17
МО, ЖК «Мытищи-Сити»
Медведково
13 мин.
Строится
Посмотреть 56 квартир в ЖК «Мытищи-Сити»
1-комн. квартира 40,30 м2 11 646 700
Этаж 16/17
МО, ЖК «Мытищи-Сити»
Медведково
13 мин.
Строится
1-комн. квартира 41,10 м2 11 877 900
Этаж 2/17
МО, ЖК «Мытищи-Сити»
Медведково
13 мин.
Строится
1-комн. квартира 44,10 м2 12 744 900
Этаж 15/17
МО, ЖК «Мытищи-Сити»
Медведково
13 мин.
Строится
Этаж 6/17
МО, ЖК «Мытищи-Сити»
Медведково
13 мин.
Строится
Посмотреть 72 квартиры в ЖК «Мытищи-Сити»
2-комн. квартира 42,90 м2 12 226 500
Этаж 14/17
МО, ЖК «Мытищи-Сити»
Медведково
13 мин.
Строится
2-комн. квартира 43,70 м2 12 454 500
Этаж 2/17
МО, ЖК «Мытищи-Сити»
Медведково
13 мин.
Строится
2-комн. квартира 46,00 м2 13 202 000
Этаж 17/17
МО, ЖК «Мытищи-Сити»
Медведково
13 мин.
Строится
Этаж 6/17
МО, ЖК «Мытищи-Сити»
Медведково
13 мин.
Строится
Посмотреть 81 квартира в ЖК «Мытищи-Сити»
3-комн. квартира 75,20 м2 20 830 400
Этаж 3/17
МО, ЖК «Мытищи-Сити»
Медведково
13 мин.
Строится
3-комн. квартира 76,60 м2 21 218 200
Этаж 2/17
МО, ЖК «Мытищи-Сити»
Медведково
13 мин.
Строится
3-комн. квартира 76,80 м2 21 273 600
Этаж 13/17
МО, ЖК «Мытищи-Сити»
Медведково
13 мин.
Строится
Этаж 13/17
МО, ЖК «Мытищи-Сити»
Медведково
13 мин.
Строится
Посмотреть 31 квартира в ЖК «Мытищи-Сити»

Скидки и спецпредложения от застройщиков

ЖК «Мытищи-Сити» на карте

Выгодные предложения на новостройки

Отзывы о ЖК «Мытищи-Сити»

Самый полезный отзыв
СП
09 декабря 2024
Оценка:
Достоинства
Транспортная доступность
Планировки
Способы покупки
Внешний вид фасада
Двор, окружение
Расположение
Отличное расположение дома. Проект отличный. Станция рядом, удобно добираться до Москвы. Огромное спасибо менеджеру Анастасии Дмитриевне, помогла нам чётко, грамотно рассказала, подсказала какие нужны все необходимые документы в оформлении сделки, благодаря ей она у нас прошла в срок.
Ответить
Самый новый отзыв
С
24 октября 2025
Оценка:
Отличное расположение дома Проект отличный. Станция рядом, удобно добираться до Москвы. Огромное спасибо менеджеру в офисе, помогла нам чётко, грамотно рассказала, подсказала, быстро оформились
Ответить

Оставить отзыв

Добавьте отзыв, заполнив личные данные, или сначала войдите на сайт, тогда информация будет автоматически взята из личного профиля.
Оценка*