Рейтинг@Mail.ru
Переверните экран
Новостройки Квартиры Ипотека Новостройки Москвы Новостройки Подмосковья Новостройки Новой Москвы Готовые новостройки Новостройки на карте Акции от застройщиков Коммерческие помещения Продавцы и застройщики Панорамы новостроек Видеообзор новостроек Экспертиза новостроек Экология Москвы и Подмосковья Студии 1-комнатные 2-комнатные 3-комнатные Квартиры на карте Ипотечный калькулятор Семейная ипотека Военная ипотека Банки и программы Медиа Новости недвижимости Мнение эксперта Аналитика рынка Покупателю Экспертиза новостроек Эксперты и авторы О проекте Контакты Реклама на сайте Vk Youtube Telegram Дзен Машиноместа Апартаменты #траншевая ипотека #рассрочка IT-ипотека Квартиры со скидками до 40% Видео 360° новостроек Субсидированная застройщиком Rutube Поиск дома в Москве Программа реновации в Москве Новостройки премиум-класса Новостройки бизнес-класса Рассрочка Траншевая ипотека ГАЛС Дома и коттеджи Бизнес-центры Бизнес-центры в Москве Бизнес-центры рядом с метро Строящиеся бизнес-центры Бизнес-центры класса A Бизнес-центры класса B ЛСР
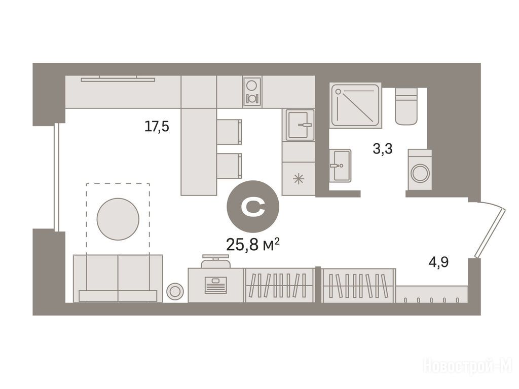
студия, 25.80 м2, 13 этаж
Срок сдачи 4 квартал 2026 года
10 520 000 
11 690 000
407 752 2
обновлено 5 декабря

Описание студии

Срок ГК
4 квартал 2026 года
Стадия строительства
Общая площадь
25.80 м2
Жилая площадь
12.50 м2
Площадь кухни
5.00 м2
Этаж
13 / 21
Отделка
white box
Грузовой лифт
есть

Расположение студии

Локация
Станция МЦД
Ж/Д-станция
Дом
Дом 1
Адрес
ЖК «Квартал Герцена», корп.1, секция 5

Особенности

Продается студия в новостройке ЖК «Квартал Герцена» по адресу Москва, ЮАО, Бирюлево Восточное, ЖК «Квартал Герцена», корп.1. Общая площадь квартиры - 25.8 кв. м. Тип проекта, по которому построен дом — Монолитно-кирпичный, компания-застройщик — Группа «Самолет», ООО СЗ «Самолет-Бирюлево», Брусника. Стоимость квартиры — 10 520 000 руб. Способы оплаты можно уточнить у продавца. Срок сдачи — 4 квартал 2026. Более подробная информация по телефону.

Похожие квартиры в ЖК «Квартал Герцена»

3 этаж
из 21 4 квартал 2026
Москва, ЮАО
Лебедянская (2029)
18 мин.
Дом 1
Корпус
white box
Отделка
3.15 м
Потолки
ЖК «Квартал Герцена»
10 520 000 11 690 000
9 этаж
из 21 4 квартал 2026
Москва, ЮАО
Лебедянская (2029)
18 мин.
Дом 1
Корпус
white box
Отделка
3.15 м
Потолки
ЖК «Квартал Герцена»
10 520 000 11 690 000
10 этаж
из 21 4 квартал 2026
Москва, ЮАО
Лебедянская (2029)
18 мин.
Дом 1
Корпус
white box
Отделка
3.15 м
Потолки
ЖК «Квартал Герцена»
10 520 000 11 690 000
15 этаж
из 21 4 квартал 2026
Москва, ЮАО
Лебедянская (2029)
18 мин.
Дом 1
Корпус
white box
Отделка
3.15 м
Потолки
ЖК «Квартал Герцена»
10 520 000 11 690 000
7 этаж
из 21 4 квартал 2026
Москва, ЮАО
Лебедянская (2029)
18 мин.
Дом 1
Корпус
white box
Отделка
3.15 м
Потолки
ЖК «Квартал Герцена»
10 520 000 11 690 000
17 этаж
из 21 4 квартал 2026
Москва, ЮАО
Лебедянская (2029)
18 мин.
Дом 1
Корпус
white box
Отделка
3.15 м
Потолки
ЖК «Квартал Герцена»
10 520 000 11 690 000
11 этаж
из 21 4 квартал 2026
Москва, ЮАО
Лебедянская (2029)
18 мин.
Дом 1
Корпус
white box
Отделка
3.15 м
Потолки
ЖК «Квартал Герцена»
10 520 000 11 690 000
Посмотреть все спецпредложения
студия 23,70 м2 10 210 000
Этаж 23/30
Москва, ЖК «Квартал Герцена»
Лебедянская (2029)
18 мин.
Строится
студия 23,80 м2 10 220 000
Этаж 22/30
Москва, ЖК «Квартал Герцена»
Лебедянская (2029)
18 мин.
Строится
студия 25,50 м2 10 880 000
Этаж 3/17
Москва, ЖК «Квартал Герцена»
Лебедянская (2029)
18 мин.
Строится
студия 25,80 м2 10 520 000
Этаж 3/21
Москва, ЖК «Квартал Герцена»
Лебедянская (2029)
18 мин.
Строится
Посмотреть 72 квартиры в ЖК «Квартал Герцена»
1-комн. квартира 34,70 м2 13 620 000
Этаж 21/30
Москва, ЖК «Квартал Герцена»
Лебедянская (2029)
18 мин.
Строится
Этаж 16/30
Москва, ЖК «Квартал Герцена»
Лебедянская (2029)
18 мин.
Строится
1-комн. квартира 37,20 м2 14 110 000
Этаж 20/23
Москва, ЖК «Квартал Герцена»
Лебедянская (2029)
18 мин.
Строится
1-комн. квартира 37,70 м2 14 120 000
Этаж 15/16
Москва, ЖК «Квартал Герцена»
Лебедянская (2029)
18 мин.
Строится
Посмотреть 87 квартир в ЖК «Квартал Герцена»
2-комн. квартира 57,40 м2 19 220 000
Этаж 2/23
Москва, ЖК «Квартал Герцена»
Лебедянская (2029)
18 мин.
Строится
2-комн. квартира 58,10 м2 18 360 000
Этаж 19/30
Москва, ЖК «Квартал Герцена»
Лебедянская (2029)
18 мин.
Строится
2-комн. квартира 61,80 м2 19 350 000
Этаж 20/30
Москва, ЖК «Квартал Герцена»
Лебедянская (2029)
18 мин.
Строится
2-комн. квартира 61,90 м2 19 010 000
Этаж 11/30
Москва, ЖК «Квартал Герцена»
Лебедянская (2029)
18 мин.
Строится
Посмотреть 30 квартир в ЖК «Квартал Герцена»
3-комн. квартира 71,00 м2 24 050 000
Этаж 18/21
Москва, ЖК «Квартал Герцена»
Лебедянская (2029)
18 мин.
Строится
3-комн. квартира 75,20 м2 25 720 000
Этаж 8/21
Москва, ЖК «Квартал Герцена»
Лебедянская (2029)
18 мин.
Строится
3-комн. квартира 75,30 м2 24 980 000
Этаж 13/21
Москва, ЖК «Квартал Герцена»
Лебедянская (2029)
18 мин.
Строится
3-комн. квартира 76,10 м2 26 040 000
Этаж 5/21
Москва, ЖК «Квартал Герцена»
Лебедянская (2029)
18 мин.
Строится
Посмотреть 25 квартир в ЖК «Квартал Герцена»

Скидки и спецпредложения от застройщиков

ЖК «Квартал Герцена» на карте

Выгодные предложения на новостройки

Отзывы о ЖК «Квартал Герцена»

Самый полезный отзыв
С
27 сентября 2023
Оценка:
Расположение
Отличное местоположение. Хороший район. Меня очень устраивает. Жду предложения от застройщика.
Ответить
Полезный отзыв?
Самый новый отзыв
АР
09 августа
Оценка:
Планировки
Способы покупки
Скорость строительства
Внешний вид фасада
Двор, окружение
Расположение
Темпы строительства после перехода к Бруснике радуют. Расположение у ЖК удобное, всего за 30 минут до центра Москвы можно на машине доехать, рядом есть все, что нужно. Квартиры с готовой отделкой, за что отдельное спасибо.
Ответить
Полезный отзыв?
Добавьте отзыв, заполнив личные данные, или сначала войдите на сайт, тогда информация будет автоматически взята из личного профиля.
Оценка*