Рейтинг@Mail.ru
Переверните экран
Новостройки Квартиры Ипотека Новостройки Москвы Новостройки Подмосковья Новостройки Новой Москвы Готовые новостройки Новостройки на карте Акции от застройщиков Коммерческие помещения Продавцы и застройщики Панорамы новостроек Видеообзор новостроек Экспертиза новостроек Экология Москвы и Подмосковья Студии 1-комнатные 2-комнатные 3-комнатные Квартиры на карте Ипотечный калькулятор Семейная ипотека Военная ипотека Банки и программы Медиа Новости недвижимости Мнение эксперта Аналитика рынка Покупателю Экспертиза новостроек Эксперты и авторы О проекте Контакты Реклама на сайте Vk Youtube Telegram Дзен Машиноместа Апартаменты #траншевая ипотека #рассрочка ИТ-ипотека Квартиры со скидками до 40% Видео 360° новостроек Субсидированная застройщиком Rutube Поиск дома в Москве Программа реновации в Москве Новостройки премиум-класса Новостройки бизнес-класса Рассрочка Траншевая ипотека Дома и коттеджи Бизнес-центры Бизнес-центры в Москве Бизнес-центры рядом с метро Строящиеся бизнес-центры Бизнес-центры класса A Бизнес-центры класса B Ипотека со ставкой 0,1%
студия, 21.80 м2, 6 этаж
Срок сдачи 3 квартал 2026 года
12 921 264 
592 719 2
обновлено 29 марта

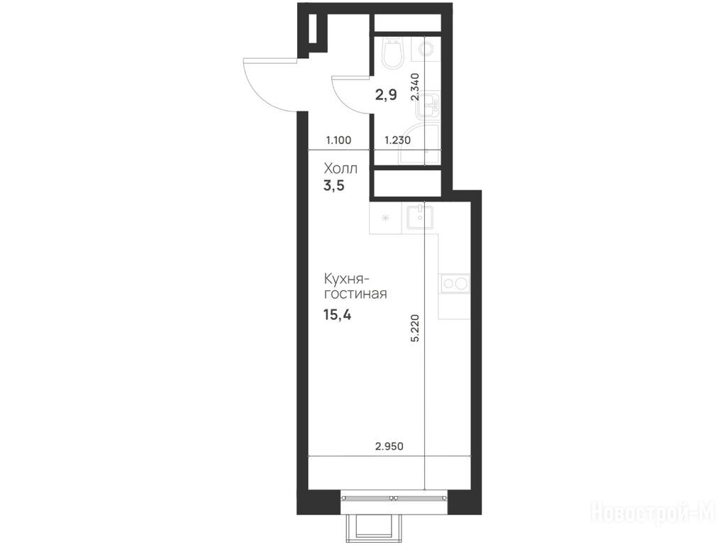
Описание студии

Новостройка
Застройщик
3S Group (Не опубликовано)
Срок ГК
3 квартал 2026 года
Стадия строительства
отделка фасада
Общая площадь
21.80 м2
Жилая площадь
10.40 м2
Площадь кухни
5.00 м2
Этаж
6 / 17

Расположение студии

Локация
Метро
Станция МЦД
Дом
Essence
Адрес
ЖК Foreville (Форевилль), корп. Essence, секция 9

Способы покупки

Особенности

Продается студия в новостройке ЖК «Форевиль» по адресу Москва, ТиНАО, Новомосковский АО, Сосенское С/П, Газопровод пос., ЖК Foreville (Форевилль), корп. Essence. Общая площадь квартиры - 21.8 кв. м. Тип проекта, по которому построен дом — Монолитно-кирпичный, компания-застройщик — 3S Group (Три Эс Груп). Стоимость квартиры — 12 921 264 руб. Способы оплаты можно уточнить у продавца. Срок сдачи — 3 квартал 2026. Более подробная информация по телефону.
3S Group (Три Эс Груп)
3S Group (Три Эс Груп)
Сданных 1
|
Строящихся 2
Выбирайте квартиру в ЖК «Форевиль» по ценам от застройщика

Похожие квартиры в ЖК «Форевиль»

5 этаж
из 17 3 квартал 2026
Москва, Сосенское С/П
Корниловская
10 мин.
Essence
Корпус
нет данных
Отделка
2.72 м
Потолки
ЖК «Форевиль»
9 254 685 10 361 605
Уралсиб, СберБанк, ВТБ, Совкомбанк, Банк Санкт-Петербург, Металлинвестбанк, Абсолют Банк, ДОМ.РФ, Промсвязьбанк, Россельхозбанк, Московский Кредитный Банк, МТС Банк, Газпромбанк
6.00%
Ставка
30.00%
Первый взнос
от 55 487 /мес.
Все варианты
11 этаж
из 17 3 квартал 2026
Москва, Сосенское С/П
Корниловская
10 мин.
Essence
Корпус
нет данных
Отделка
2.72 м
Потолки
ЖК «Форевиль»
9 355 944 13 461 028
Уралсиб, СберБанк, ВТБ, Совкомбанк, Банк Санкт-Петербург, Металлинвестбанк, Абсолют Банк, ДОМ.РФ, Промсвязьбанк, Россельхозбанк, Московский Кредитный Банк, МТС Банк, Газпромбанк
6.00%
Ставка
30.00%
Первый взнос
от 56 094 /мес.
Все варианты
13 этаж
из 17 3 квартал 2026
Москва, Сосенское С/П
Корниловская
10 мин.
Essence
Корпус
нет данных
Отделка
2.72 м
Потолки
ЖК «Форевиль»
9 742 850 13 050 476
Уралсиб, СберБанк, ВТБ, Совкомбанк, Банк Санкт-Петербург, Металлинвестбанк, Абсолют Банк, ДОМ.РФ, Промсвязьбанк, Россельхозбанк, Московский Кредитный Банк, МТС Банк, Газпромбанк
6.00%
Ставка
30.00%
Первый взнос
от 58 413 /мес.
Все варианты
14 этаж
из 17 3 квартал 2026
Москва, Сосенское С/П
Корниловская
10 мин.
Essence
Корпус
нет данных
Отделка
2.72 м
Потолки
ЖК «Форевиль»
9 889 312
Уралсиб, СберБанк, ВТБ, Совкомбанк, Банк Санкт-Петербург, Металлинвестбанк, Абсолют Банк, ДОМ.РФ, Промсвязьбанк, Россельхозбанк, Московский Кредитный Банк, МТС Банк, Газпромбанк
6.00%
Ставка
30.00%
Первый взнос
от 59 291 /мес.
Все варианты
14 этаж
из 17 3 квартал 2026
Москва, Сосенское С/П
Корниловская
10 мин.
Essence
Корпус
нет данных
Отделка
2.72 м
Потолки
ЖК «Форевиль»
10 194 576 11 692 470
Уралсиб, СберБанк, ВТБ, Совкомбанк, Банк Санкт-Петербург, Металлинвестбанк, Абсолют Банк, ДОМ.РФ, Промсвязьбанк, Россельхозбанк, Московский Кредитный Банк, МТС Банк, Газпромбанк
6.00%
Ставка
30.00%
Первый взнос
от 61 122 /мес.
Все варианты
7 этаж
из 17 3 квартал 2026
Москва, Сосенское С/П
Корниловская
10 мин.
Essence
Корпус
нет данных
Отделка
2.72 м
Потолки
ЖК «Форевиль»
11 194 000
Уралсиб, СберБанк, ВТБ, Совкомбанк, Банк Санкт-Петербург, Металлинвестбанк, Абсолют Банк, ДОМ.РФ, Промсвязьбанк, Россельхозбанк, Московский Кредитный Банк, МТС Банк, Газпромбанк
6.00%
Ставка
30.00%
Первый взнос
от 67 114 /мес.
Все варианты
9 этаж
из 17 3 квартал 2026
Москва, Сосенское С/П
Корниловская
10 мин.
Essence
Корпус
нет данных
Отделка
2.72 м
Потолки
ЖК «Форевиль»
11 281 200
Уралсиб, СберБанк, ВТБ, Совкомбанк, Банк Санкт-Петербург, Металлинвестбанк, Абсолют Банк, ДОМ.РФ, Промсвязьбанк, Россельхозбанк, Московский Кредитный Банк, МТС Банк, Газпромбанк
6.00%
Ставка
30.00%
Первый взнос
от 67 636 /мес.
Все варианты
10 этаж
из 17 3 квартал 2026
Москва, Сосенское С/П
Корниловская
10 мин.
Essence
Корпус
нет данных
Отделка
2.72 м
Потолки
ЖК «Форевиль»
11 324 800
Уралсиб, СберБанк, ВТБ, Совкомбанк, Банк Санкт-Петербург, Металлинвестбанк, Абсолют Банк, ДОМ.РФ, Промсвязьбанк, Россельхозбанк, Московский Кредитный Банк, МТС Банк, Газпромбанк
6.00%
Ставка
30.00%
Первый взнос
от 67 898 /мес.
Все варианты
студия 24,30 м2 10 406 720
Этаж 8/17
НМ, ЖК «Форевиль»
Корниловская
10 мин.
Строится
1-комн. квартира 33,20 м2 17 128 280
Этаж 17/17
НМ, ЖК «Форевиль»
Корниловская
10 мин.
Строится
2-комн. квартира 64,30 м2 23 612 867
Этаж 15/17
НМ, ЖК «Форевиль»
Корниловская
10 мин.
Строится
3-комн. квартира 65,60 м2 17 657 840
Этаж 2/17
НМ, ЖК «Форевиль»
Корниловская
10 мин.
Строится
студия 20,60 м2 10 566 716
Этаж 14/17
НМ, ЖК «Форевиль»
Корниловская
10 мин.
Строится
студия 20,70 м2 11 697 909
Этаж 16/17
НМ, ЖК «Форевиль»
Корниловская
10 мин.
Строится
студия 20,90 м2 11 887 743
Этаж 16/17
НМ, ЖК «Форевиль»
Корниловская
10 мин.
Строится
студия 21,00 м2 9 764 264
Этаж 11/17
НМ, ЖК «Форевиль»
Корниловская
10 мин.
Строится
Посмотреть 117 квартир в ЖК «Форевиль»
1-комн. квартира 32,60 м2 12 659 160
Этаж 8/17
НМ, ЖК «Форевиль»
Корниловская
10 мин.
Строится
1-комн. квартира 32,70 м2 18 381 885
Этаж 10/17
НМ, ЖК «Форевиль»
Корниловская
10 мин.
Строится
1-комн. квартира 33,10 м2 14 347 120
Этаж 11/17
НМ, ЖК «Форевиль»
Корниловская
10 мин.
Строится
1-комн. квартира 33,20 м2 17 128 280
Этаж 17/17
НМ, ЖК «Форевиль»
Корниловская
10 мин.
Строится
Посмотреть 73 квартиры в ЖК «Форевиль»
2-комн. квартира 49,50 м2 20 108 559
Этаж 14/17
НМ, ЖК «Форевиль»
Корниловская
10 мин.
Строится
2-комн. квартира 50,90 м2 20 665 400
Этаж 15/17
НМ, ЖК «Форевиль»
Корниловская
10 мин.
Строится
2-комн. квартира 51,40 м2 21 097 662
Этаж 13/17
НМ, ЖК «Форевиль»
Корниловская
10 мин.
Строится
2-комн. квартира 52,50 м2 18 285 916
Этаж 16/17
НМ, ЖК «Форевиль»
Корниловская
10 мин.
Строится
Посмотреть 52 квартиры в ЖК «Форевиль»
3-комн. квартира 65,60 м2 18 792 655
Этаж 12/17
НМ, ЖК «Форевиль»
Корниловская
10 мин.
Строится
3-комн. квартира 66,10 м2 25 040 557
Этаж 7/17
НМ, ЖК «Форевиль»
Корниловская
10 мин.
Строится
3-комн. квартира 67,20 м2 25 325 150
Этаж 15/17
НМ, ЖК «Форевиль»
Корниловская
10 мин.
Строится
3-комн. квартира 68,10 м2 29 962 545
Этаж 1/17
НМ, ЖК «Форевиль»
Корниловская
10 мин.
Строится
Посмотреть 36 квартир в ЖК «Форевиль»

Скидки и спецпредложения от застройщиков

ЖК «Форевиль» на карте

Выгодные предложения на новостройки

Отзывы о ЖК «Форевиль»

Самый полезный отзыв
АБ
01 марта 2024
Оценка:
Мне уже почти 40, надо как-то определяться со своим жильем. Скопил денег и решил построиться в ЖК Foreville. Я один, так что однушку беру, мне места много не надо. Главное что паркинг есть и он подземный. Авто не будут мазолить глаза.
Ответить
Самый новый отзыв
А
17 марта
Оценка:
По документации чисто, эскроу через сбер, разрешения все в порядке. 3S Group знаю по предыдущим проектам, строят без скандалов
Ответить

Оставить отзыв

Добавьте отзыв, заполнив личные данные, или сначала войдите на сайт, тогда информация будет автоматически взята из личного профиля.
Оценка*