Рейтинг@Mail.ru
Переверните экран
Новостройки Квартиры Ипотека Новостройки Москвы Новостройки Подмосковья Новостройки Новой Москвы Готовые новостройки Новостройки на карте Акции от застройщиков Коммерческие помещения Продавцы и застройщики Панорамы новостроек Видеообзор новостроек Экспертиза новостроек Экология Москвы и Подмосковья Студии 1-комнатные 2-комнатные 3-комнатные Квартиры на карте Ипотечный калькулятор Семейная ипотека Военная ипотека Банки и программы Медиа Новости недвижимости Мнение эксперта Аналитика рынка Покупателю Экспертиза новостроек Эксперты и авторы О проекте Контакты Реклама на сайте Vk Youtube Telegram Дзен Машиноместа Апартаменты #траншевая ипотека #рассрочка ИТ-ипотека Квартиры со скидками до 40% Видео 360° новостроек Субсидированная застройщиком Rutube Поиск дома в Москве Программа реновации в Москве Новостройки премиум-класса Новостройки бизнес-класса Рассрочка Траншевая ипотека Дома и коттеджи Бизнес-центры Бизнес-центры в Москве Бизнес-центры рядом с метро Строящиеся бизнес-центры Бизнес-центры класса A Бизнес-центры класса B Ипотека со ставкой 0,1%
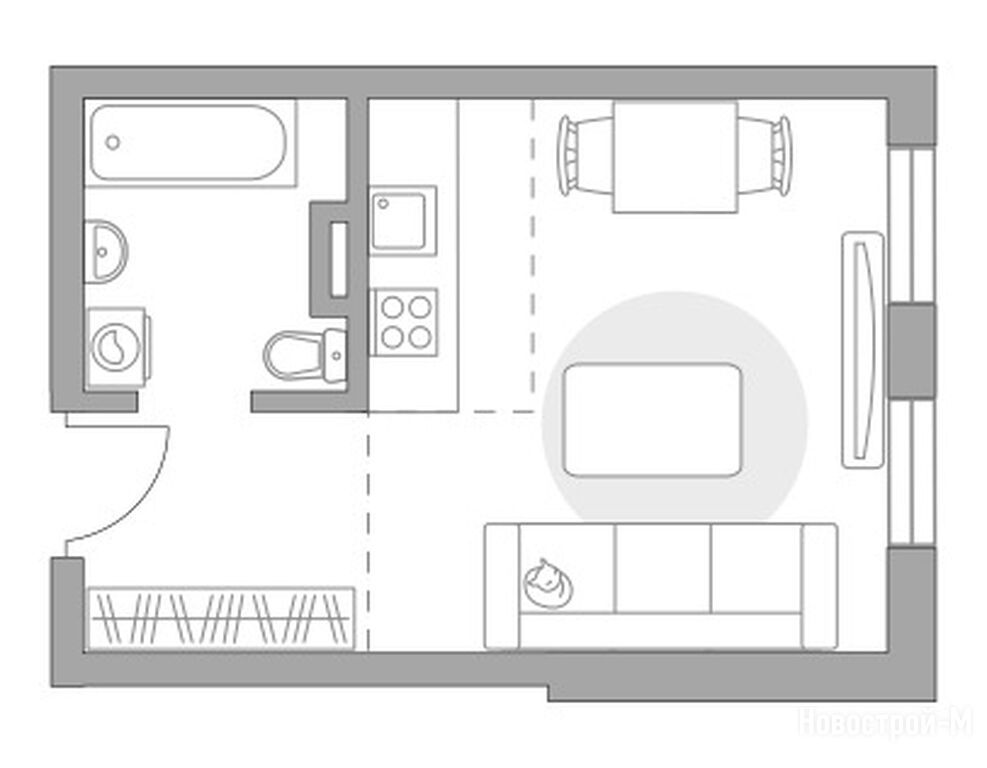
студия, 22.92 м2, 1 этаж
Срок сдачи 2 квартал 2028 года
4 587 381 
5 619 542
200 148 2
обновлено 19 марта

Описание студии

Новостройка
Застройщик
Срок ГК
2 квартал 2028 года
Стадия строительства
котлован/фундамент
Общая площадь
22.92 м2
Этаж
1 / 6
Отделка
нет

Расположение студии

Станция МЦД
Дом
9
Адрес
вблизи д. Николо-Урюпино, секция 7

Способы покупки

Особенности

Продается студия в новостройке ЖК «Аникеевский» по адресу Московская область, Красногорск городской округ, Красногорск, вблизи д. Николо-Урюпино. Общая площадь квартиры - 22.92 кв. м. Тип проекта, по которому построен дом — Монолитно-кирпичный, компания-застройщик — ГК «Гранель». Стоимость квартиры — 4 587 381 руб. Способы оплаты можно уточнить у продавца. Срок сдачи — 2 квартал 2028. Более подробная информация по телефону.

Правовые документы

Инфоцентр новостроек
Инфоцентр новостроек
+7 (499) 705-91-41
Время работы 9:00 — 21:00
Этаж 13/14
МО, ЖК «Аникеевский»
Аникеевка
5 мин.
Строится
студия 22,16 м2 6 091 684
Этаж 13/14
МО, ЖК «Аникеевский»
Аникеевка
5 мин.
Строится
студия 22,99 м2 5 958 067
Этаж 2/14
МО, ЖК «Аникеевский»
Аникеевка
5 мин.
Строится
студия 24,08 м2 5 482 685
Этаж 14/14
МО, ЖК «Аникеевский»
Аникеевка
5 мин.
Строится
Посмотреть 98 квартир в ЖК «Аникеевский»
1-комн. квартира 34,31 м2 7 440 723
Этаж 12/14
МО, ЖК «Аникеевский»
Аникеевка
5 мин.
Строится
2-комн. квартира 31,09 м2 6 421 343
Этаж 14/14
МО, ЖК «Аникеевский»
Аникеевка
5 мин.
Строится
2-комн. квартира 31,48 м2 6 749 584
Этаж 14/14
МО, ЖК «Аникеевский»
Аникеевка
5 мин.
Строится
2-комн. квартира 31,67 м2 6 603 432
Этаж 6/14
МО, ЖК «Аникеевский»
Аникеевка
5 мин.
Строится
2-комн. квартира 32,48 м2 7 011 911
Этаж 14/14
МО, ЖК «Аникеевский»
Аникеевка
5 мин.
Строится
Посмотреть 161 квартира в ЖК «Аникеевский»
Этаж 11/14
МО, ЖК «Аникеевский»
Аникеевка
5 мин.
Строится
3-комн. квартира 49,01 м2 9 833 332
Этаж 8/14
МО, ЖК «Аникеевский»
Аникеевка
5 мин.
Строится
Этаж 6/6
МО, ЖК «Аникеевский»
Аникеевка
5 мин.
Строится
3-комн. квартира 50,42 м2 10 116 233
Этаж 13/14
МО, ЖК «Аникеевский»
Аникеевка
5 мин.
Строится
Посмотреть 142 квартиры в ЖК «Аникеевский»
4-комн. квартира 70,63 м2 15 222 267
Этаж 2/6
МО, ЖК «Аникеевский»
Аникеевка
5 мин.
Строится
4-комн. квартира 71,11 м2 15 163 110
Этаж 1/6
МО, ЖК «Аникеевский»
Аникеевка
5 мин.
Строится
4-комн. квартира 71,49 м2 15 244 139
Этаж 1/6
МО, ЖК «Аникеевский»
Аникеевка
5 мин.
Строится
Этаж 4/5
МО, ЖК «Аникеевский»
Аникеевка
5 мин.
Строится
Посмотреть 20 квартир в ЖК «Аникеевский»

Скидки и спецпредложения от застройщиков

ЖК «Аникеевский» на карте

Выгодные предложения на новостройки

Отзывы о ЖК «Аникеевский»

Самый полезный отзыв
П
14 апреля 2022
Оценка:
Достоинства
Экология
Двор, окружение
Недавно ездили в офис продаж. Понравился проект, высота застройки до 6 этажей, первые этажи будут коммерческие, территорию благоустроят, рядом лес. До метро 8-10 минут на транспорте. раздумываем о покупке квартиры тут, для семьи идеальный вариант.
Показать все комментарии
Ответить
Самый новый отзыв
И
13 марта
Оценка:
Достоинства
Транспортная доступность
Живу в ЖК уже 1.5 года,очень довольна,что выбрали с мужем это направление.Чистый воздух,много разного транспорта.Спокойно,тихо,и очень красиво, вокруг лес.....
Ответить

Оставить отзыв

Добавьте отзыв, заполнив личные данные, или сначала войдите на сайт, тогда информация будет автоматически взята из личного профиля.
Оценка*